Prodej rodinného domu, Přeštice, 206 m2

Přeštice, Žerovice

8 690 000 Kč /za nemovitost HYPOTÉKA od 38 839 Kč /za měsíc
Doporučené firmy v Přešticích

Podlahy

Stěhovací služby

Informace k domu

Exkluzivně nabízíme k prodeji prostorný rodinný dům o podlahové ploše 205,85 m², dispozici 5+1 v atraktivní lokalitě Žerovice u Přeštic, jen kousek od Plzně.

Dům splňuje všechny představy o moderním a pohodlném bydlení – nabízí dostatek prostoru, promyšlené řešení interiéru a útulnou atmosféru, díky které se zde budete cítit jako doma od prvního okamžiku.

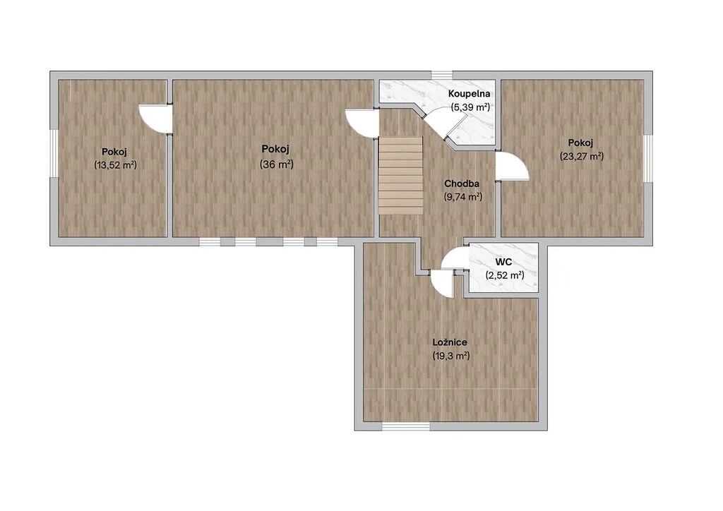
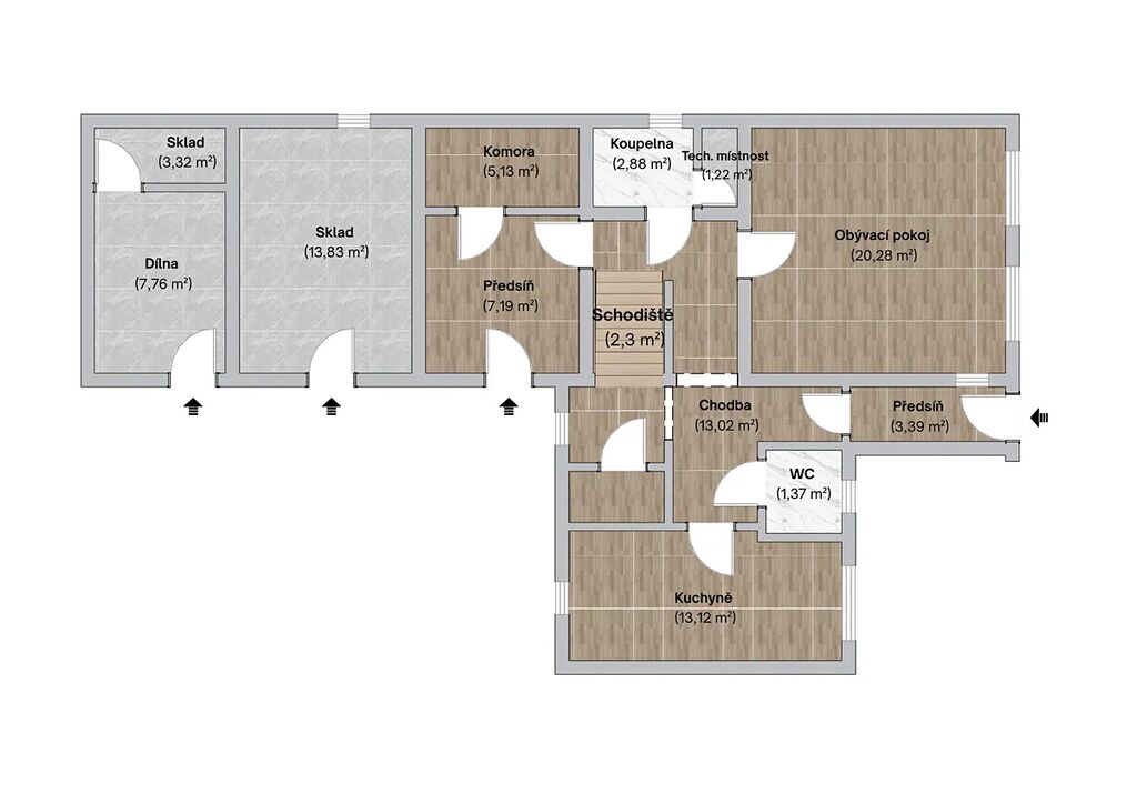
Dispozice:
Přízemí nabízí prostorný obývací pokoj, kuchyni s jídelnou s přímým vstupem na zahradu, předsíň, koupelnu se sprchovým koutem, samostatné WC, technické zázemí, šatnu a dvě další místnosti, které jsou aktuálně využívány jako dílna a kuchyň. Z přízemí se také pohodlně dostanete po schodech do sklepa.
Patro nabízí čtyři pokoje, druhou koupelnu s vanou a samostatné WC.

Dům prošel před několika lety rozsáhlou rekonstrukcí (nové rozvody, střecha, okna) a je připraven k okamžitému nastěhování bez nutnosti dalších investic.

Vytápění je řešeno ústředním topením – elektrokotlem nebo krbovými kamny s výměníkem.

Zahrada o rozloze 385 m² poskytuje dostatek prostoru pro odpočinek i volnočasové aktivity. Najdete zde vyhřívaný krytý bazén, prostornou pergolu a zahradní kuchyni s grilem, ideální pro setkávání s přáteli a rodinou.
Samozřejmostí je dostatek parkovacích míst před domem, k dispozici je také garáž s dílnou.

Lokalita je vhodná pro rodiny s dětmi – jen pár kroků od domu se nachází dětské hřiště. Velkou výhodou je také výborná dopravní dostupnost – z Přeštic vede přímé a rychlé spojení do Plzně, což ocení jak dojíždějící za prací, tak rodiny využívající městskou infrastrukturu.
Mateřská a základní škola jsou pohodlně dostupné autem jen pár minut od domu, v městě Přeštice.

Tento dům je ideální volbou pro každého, kdo hledá kombinaci moderního bydlení, bezpečného zázemí a klidného venkovského prostředí s výbornou dostupností do města.


Líbí se Vám tento dům? Stačí se ozvat – ráda Vám poskytnu více informací nebo rovnou domluvíme termín prohlídky. Těším se, až Vás tímto domem provedu osobně.

Vaše Lucie

Parametry domu

Cena
8 690 000 Kč /za nemovitost Spočítat hypotéku
Náklady na bydlení
8000 Kč
Aktualizováno
24. 9. 2025
Adresa
Přeštice, Žerovice
Stavba
Cihlová
Stav objektu
Po rekonstrukci
Vybaveno
Částečně
Druh objektu
Samostatný
Lokalita objektu
Klidná část obce
Užitná plocha
206 m2
Plocha pozemku
385 m2
Třída energetické náročnosti
G - Mimořádně nehospodárná
Ukazatel energetické náročnosti
289 kWh/m2 za rok
Elektřina
230V
Komunikace
Asfaltová
Telekomunikace
Internet
Doprava
Vlak, Dálnice, Silnice, Autobus
Voda
Studna
Zdroj topení
Elektrokotel, Krbová kamna
Garáž
Sklep
Parkování
Bazén

Kontaktovat makléře

Máte zájem o tento dům?

Tímto, v souladu s nařízením Evropského parlamentu a Rady (EU) 2016/679, v platném znění, prohlašuji, že mi je alespoň 16 let a uděluji tak svůj souhlas se zpracováním zadaných údajů (jméno, telefon, e-mail, ip adresa) společnosti B3 Technology, s.r.o., IČ: 07330600, se sídlem Novostavby 126/23, 435 11 Lom (správce dat), za účelem předání dotazu z tohoto formuláře Vámi vybranému inzerentovi a zpětného kontaktování mé osoby. Osobní údaje bude správce zpracovávat manuálně i automaticky přímo prostřednictvím svých zaměstnanců. Informace předané tímto formulářem budou uloženy v databázi správce maximálně po dobu 10 let. Odvolání souhlasu s uložením a zpracováním poskytnutých dat lze e-mailem na info@bydlisnami.cz. V případě podezření na neoprávněné použití Vámi poskytnutých údajů máte právo předat podnět k šetření Úřadu pro ochranu osobních údajů. Více informací
Chystáte se prodat nemovitost?
Pomůžeme Vám!

Inzerát si prohlédlo 3 lidí

Prodejce

Lucie Štemberová

Lucie Štemberová

Hlídací pes

Chcete dostávat emailem podobné nabídky prodeje rodinných domů v Přešticích?

Podobné nemovitosti