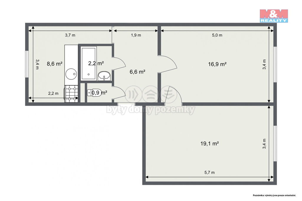
Prodej bytu 2+1, Rotava, Sídliště, 56 m2 (ID: 2420552)

Sídliště, Rotava

1 290 000 Kč /za nemovitost HYPOTÉKA od 5 766 Kč /za měsíc
Doporučené firmy v Rotavě

Informace k bytu

Prodej bytu 2+1, 56 m², Rotava, ul. Sídliště

Nabízíme k prodeji slunný byt 2+1 v Rotavě, v 1. patře zatepleného domu. Jednotka má nové revitalizované jádro, elektroinstalaci, omítky, moderní kuchyň a skvělý prostor k bydlení. Součástí je sklepní kóje. Veškerá občanská vybavenost je v blízkosti. Výborná poloha nedaleko německých hranic je ideální k bydlení i investici. Parkovaní je kousek od domu a v blízkosti je také autobusová zastávka. V okolí je mnoho přírody, protože město je součástí Krušných hor.
Doporučujeme prohlídku. Neváhejte nás kontaktovat.

Parametry bytu

Cena
1 290 000 Kč /za nemovitost Spočítat hypotéku
Aktualizováno
23. 9. 2025
Adresa
Sídliště, Rotava
ID
918459
Stavba
Panelová
Stav objektu
Po rekonstrukci
Vybaveno
Částečně
Lokalita objektu
Sídliště
Vlastnictví
Osobní
Užitná plocha
56 m2

Kontaktovat makléře

Realitní kancelář

Logo M&M reality

M&M reality

ulice Krakovská 583/9, Praha

Chystáte se prodat nemovitost?
Pomůžeme Vám!

Máte zájem o tento byt?

Tímto, v souladu s nařízením Evropského parlamentu a Rady (EU) 2016/679, v platném znění, prohlašuji, že mi je alespoň 16 let a uděluji tak svůj souhlas se zpracováním zadaných údajů (jméno, telefon, e-mail, ip adresa) společnosti B3 Technology, s.r.o., IČ: 07330600, se sídlem Novostavby 126/23, 435 11 Lom (správce dat), za účelem předání dotazu z tohoto formuláře Vámi vybranému inzerentovi a zpětného kontaktování mé osoby. Osobní údaje bude správce zpracovávat manuálně i automaticky přímo prostřednictvím svých zaměstnanců. Informace předané tímto formulářem budou uloženy v databázi správce maximálně po dobu 10 let. Odvolání souhlasu s uložením a zpracováním poskytnutých dat lze e-mailem na info@bydlisnami.cz. V případě podezření na neoprávněné použití Vámi poskytnutých údajů máte právo předat podnět k šetření Úřadu pro ochranu osobních údajů. Více informací
Chystáte se prodat nemovitost?
Pomůžeme Vám!

Inzerát si prohlédlo 3 lidí

Prodejce

Vlastimil Cigánek

Vlastimil Cigánek

Hlídací pes

Chcete dostávat emailem podobné nabídky prodeje bytů 2+1 v Rotavě?

Podobné nemovitosti