Prodej rodinného domu, Radim, 213 m2

Radim

5 320 000 Kč /za nemovitost HYPOTÉKA od 23 777 Kč /za měsíc

(včetně provize, včetně právního servisu)

Doporučené firmy v Radimi

Informace k domu

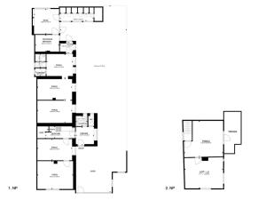
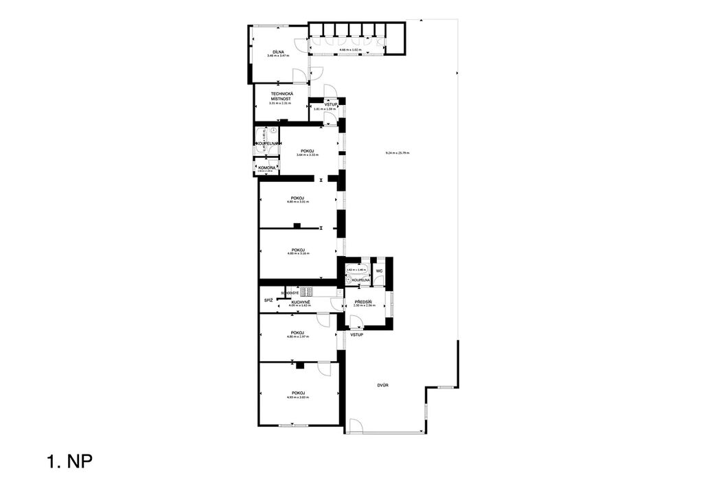
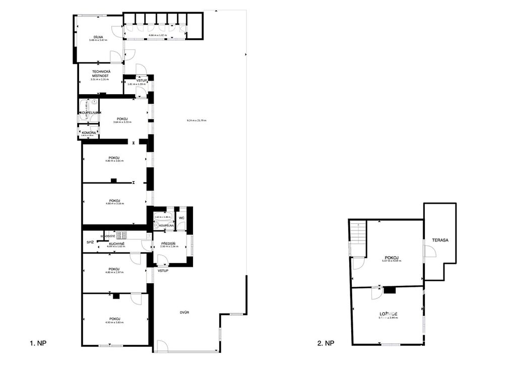
Dovoluji si vám nabídnout soubor staveb v obci Radim.
První stavbou je dům s č.p. postavený v roce 1971. Do domu vstoupíte verandou, ve které naleznete sociální zařízení. V chodbičce v přízemí je umístěna kuchyňská linka se dřezem, spíž a schody do 1.NP. Vlevo od kuchyňské linky jsou pak dva průchozí pokoje. V 1.NP naleznete dva další pokoje a vstup na balkon.
Na tento dům navazuje původní rodinný dům o dispozici 2+1, který je určen buď ke kompletní rekonstrukci, nebo demolici. Na pozemku se dále nachází vedlejší stavby - garáž, kotelna a dílny.
Veškeré stavby jsou určeny k rekonstrukci. Dům je napojen na plyn, obecní vodu, vytápění plynovým kotlem.

Největší devizou je však pozemek samotný. Umístěn je v klidné části obce, přesto v centru.
V obci naleznete základní občanskou vybavenost - dva obchody, poštu, MŠ a ZŠ do 5. třídy, ordinaci obvodního lékaře a box Zásilkovny.

Doporučuji prohlídku.
Majitel si vyhrazuje právo vybrat zájemce na základě jím zvolených kritérií.
Financování koupě této nemovitosti Vám ráda pomůžu zajistit.

Parametry domu

Cena
5 320 000 Kč /za nemovitost Spočítat hypotéku
Poznámka k ceně
včetně provize, včetně právního servisu
Aktualizováno
13. 11. 2025
Adresa
Radim
ID
00184
Stavba
Smíšená
Stav objektu
Před rekonstrukcí
Vybaveno
Ne
Druh objektu
Samostatný
Lokalita objektu
Klidná část obce
Užitná plocha
213 m2
Podlahová plocha
213 m2
Plocha pozemku
958 m2
Plocha zahrady
700 m2
Třída energetické náročnosti
G - Mimořádně nehospodárná
Elektřina
230V
Plyn
Plynovod
Odpad
Jímka
Komunikace
Asfaltová
Doprava
Vlak, Dálnice, Silnice, MHD, Autobus
Voda
Vodovod, Studna
Topné těleso
Radiátory, Krbová kamna
Zdroj topení
Plynový kotel, Krbová kamna
Zdroj teplé vody
Bojler - elektro
Garáž
Sklep
Výtah
Parkování

Kontaktovat makléře

Realitní kancelář

TOP MAKLÉŘKY

Politických vězňů 42, Kolín

Chystáte se prodat nemovitost?
Pomůžeme Vám!

Máte zájem o tento dům?

Tímto, v souladu s nařízením Evropského parlamentu a Rady (EU) 2016/679, v platném znění, prohlašuji, že mi je alespoň 16 let a uděluji tak svůj souhlas se zpracováním zadaných údajů (jméno, telefon, e-mail, ip adresa) společnosti B3 Technology, s.r.o., IČ: 07330600, se sídlem Novostavby 126/23, 435 11 Lom (správce dat), za účelem předání dotazu z tohoto formuláře Vámi vybranému inzerentovi a zpětného kontaktování mé osoby. Osobní údaje bude správce zpracovávat manuálně i automaticky přímo prostřednictvím svých zaměstnanců. Informace předané tímto formulářem budou uloženy v databázi správce maximálně po dobu 10 let. Odvolání souhlasu s uložením a zpracováním poskytnutých dat lze e-mailem na info@bydlisnami.cz. V případě podezření na neoprávněné použití Vámi poskytnutých údajů máte právo předat podnět k šetření Úřadu pro ochranu osobních údajů. Více informací
Chystáte se prodat nemovitost?
Pomůžeme Vám!

Inzerát si prohlédlo 11 lidí

Prodejce

Lenka Bitrmanová

Lenka Bitrmanová

Hlídací pes

Chcete dostávat emailem podobné nabídky prodeje rodinných domů v Radimi (okr. Kolín)?

Podobné nemovitosti