Prodej pozemku pro bydlení, Dobrochov, 173 m2 (ID: 2423334)

Dobrochov

1 190 000 Kč /za nemovitost HYPOTÉKA od 5 319 Kč /za měsíc
Doporučené firmy v Dobrochově

Informace k pozemku

Prodej pozemku k bydlení, stavební povolení, Dobrochov

Nabízíme k prodeji stavební pozemek o výměře 173 m² v obci Dobrochov (okres Prostějov). Pozemek se nachází v klidné lokalitě a je ideální pro výstavbu rodinného domu.

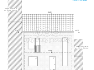
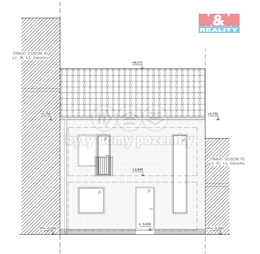
Součástí prodeje je projekt řadového rodinného domu o dispozici 5+kk a vydané, stále platné stavební povolení, což umožňuje okamžité zahájení výstavby.

Zastavěná plocha dle projektu činí cca 75 m², obytná plocha přibližně 117 m².

Hlavní výhody:
Inženýrské sítě na hranici pozemku.
Přístupová komunikace z přední i zadní strany pozemku.
Součástí pozemku je plechová garáž a mobilní toaleta.
Výborná dopravní dostupnost – rychlý dojezd do Prostějova, Vyškova i Olomouce.
Klidná obec s výbornou občanskou vybaveností v dosahu.

Pozemek je připraven k okamžité výstavbě, bez nutnosti další administrativy.

V případě zájmu o více informací nebo prohlídku mě neváhejte kontaktovat.

Parametry pozemku

Cena
1 190 000 Kč /za nemovitost Spočítat hypotéku
Aktualizováno
25. 9. 2025
Adresa
Dobrochov
ID
915632
Stav objektu
Dobrý
Vybaveno
Ne
Lokalita objektu
Klidná část obce
Vlastnictví
Osobní
Plocha pozemku
173 m2

Kontaktovat makléře

Realitní kancelář

Logo M&M reality

M&M reality

ulice Krakovská 583/9, Praha

Chystáte se prodat nemovitost?
Pomůžeme Vám!

Máte zájem o tento pozemek?

Tímto, v souladu s nařízením Evropského parlamentu a Rady (EU) 2016/679, v platném znění, prohlašuji, že mi je alespoň 16 let a uděluji tak svůj souhlas se zpracováním zadaných údajů (jméno, telefon, e-mail, ip adresa) společnosti B3 Technology, s.r.o., IČ: 07330600, se sídlem Novostavby 126/23, 435 11 Lom (správce dat), za účelem předání dotazu z tohoto formuláře Vámi vybranému inzerentovi a zpětného kontaktování mé osoby. Osobní údaje bude správce zpracovávat manuálně i automaticky přímo prostřednictvím svých zaměstnanců. Informace předané tímto formulářem budou uloženy v databázi správce maximálně po dobu 10 let. Odvolání souhlasu s uložením a zpracováním poskytnutých dat lze e-mailem na info@bydlisnami.cz. V případě podezření na neoprávněné použití Vámi poskytnutých údajů máte právo předat podnět k šetření Úřadu pro ochranu osobních údajů. Více informací
Chystáte se prodat nemovitost?
Pomůžeme Vám!

Inzerát si prohlédlo 2 lidí

Prodejce

Monika Gorná

Monika Gorná

Hlídací pes

Chcete dostávat emailem podobné nabídky prodeje pozemků pro bydlení v Dobrochově?

Podobné nemovitosti