Prodej výrobních prostor, Frenštát pod Radhoštěm, Martinská čtvrť, 663 m2

Martinská čtvrť, Frenštát pod Radhoštěm

Cena na vyžádání /za nemovitost Získejte výhodnou HYPOTÉKU

(Nabídky na odkoupení Předmětu prodeje tak mohou být podávány na kupní cenu bez DPH či na kupní cenu vč. DPH.)

Doporučené firmy v Frenštátu pod Radhoštěm

Informace k nemovitosti

Mgr. Michal Hanšpach, insolvenční správce, se sídlem Hybernská 1009/24, 110 00 Praha 1, IČO: 02965828 (dále jen „Insolvenční správce“), dlužníka Global Apis s.r.o., se sídlem Rudíkovy 51, 793 82 Třemešná, IČO: 08013713 (dále jen „Dlužník“), se kterým je vedeno insolvenční řízení u Krajského soudu v Ostravě pod sp. zn. KSOS 31 INS 12541/2024 vyhlašuje výběrové řízení (dále jen „Výběrové řízení“) za účelem zpeněžení níže uvedeného nemovitého majetku Dlužníka:
- pozemek parc. č. St. 1178 o výměře 315 m2, zastavěná plocha a nádvoří, jehož součástí je stavba Frenštát pod Radhoštěm č.p. 1706, jiná stavba;
- pozemek parc. č. 2741/5, o výměře 279 m2, ostatní plocha;
obec Frenštát pod Radhoštěm, katastrální území Frenštát pod Radhoštěm, LV 7486 (dále jen „Předmět prodeje“).

Předmět prodeje byl ze strany Dlužníka v letech 2020 – 2022 kompletně rekonstruován, přičemž byl využíván jako výrobní a prodejní prostor v oblasti včelařské výroby.

Předmět prodeje je napojen na vodovod a kanalizaci, vytápění je zajištěno tepelným čerpadlem a ohřev vody elektrickým bojlerem.
Zastavěná plocha Předmětu prodeje dosahuje 807,58 m2 a užitná plocha Předmětu prodeje dosahuje 662,72 m2.

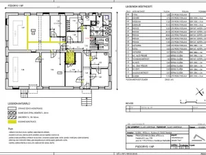
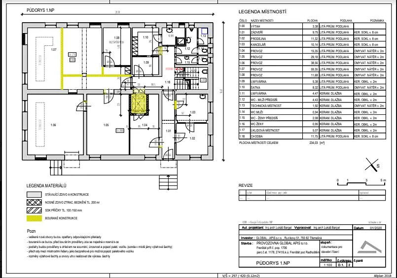
1. NP – o zastavěné ploše 296,99 m2 a podlahové ploše 233,27 m2 tvoří: zádveří 9,75 m2, výtah 3,38 m2, prodejna 11,32 m2, kancelář 10,14 m2, výrobní prostor 15,35 m2, výrobní prostor 29,60 m2, výrobní prostor 38,56 m2, výrobní prostor 59,35 m2, výrobní prostor 11,68 m2, výrobní prostor 5,38 m2, šatna 8,32 m2, umývárna 4,47 m2, WC muži předsíň 4,43 m2, technická místnost 1.92 m2, WC muži 0,94 m2, WC ženy předsíň 2,08 m2, WC ženy 0,95 m2, úklidová místnost 5,07 m2 a chodba 10,57 m2.

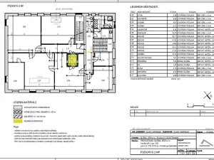
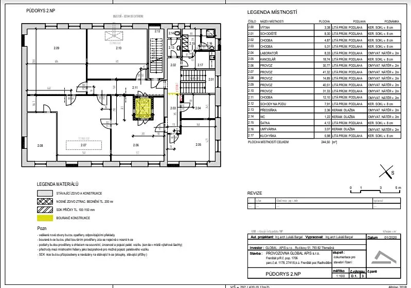
2. NP – o zastavěné ploše 296,99 m2 a podlahové ploše 244,52 m2 tvoří: schodiště 8,30 m2, výtah 3,38 m2, chodba 4,87 m2, chodba 5,14 m2, laboratoř 8,53 m2, kancelář 18,74 m2, výrobní prostor 30,77 m2, výrobní prostor 41,32 m2, výrobní prostor 14,89 m2, výrobní prostor 40,51 m2, výrobní prostor 31,33 m2, chodba 12,10 m2, schodiště 7,91 m2, předsíňka 2,36 m2, WC 1,22m2, šatna 4,12 m2, umývárna 3,07 m2 a kuchyňka 5,98 m2.

3. NP – o zastavěné ploše 213,60 m2 a podlahové ploše 184,93 m2 tvoří: výtah 3,38 m2, sklad 152,89 m2, sklad 12,66 m2, sklad 15,99 m2.

Tržní hodnota Předmětu prodeje byla znaleckým posudkem č. 058128/2023 ze dne 25.09.2023 stanovena na částku 14.454.290,- Kč.

Insolvenční správce případným zájemcům o koupi Předmětu prodeje sděluje, že v rámci Výběrového řízení mohou být po předchozí domluvě uskutečněny osobní prohlídky Předmětu prodeje.

Prodej Předmětu prodeje je realizován tzv. prodejem z volné ruky (mimo dražbu) dle ustanovení § 289 zákona č. 182/2006 Sb., o úpadku a způsobech jeho řešení, v platném znění.

Minimální nabídková cena na odkup Předmětu prodeje není stanovena, přičemž Insolvenční správce si vyhrazuje právo odmítnout všechny předložené nabídky.

Předmět prodeje může být zpeněžen v režimu § 56 odst. 1 a 3 zákona č. č. 235/2004 Sb., o dani z přidané hodnoty (dále jen „ZDPH“) jako plnění osvobozené od DPH, protože podstatná změna (rekonstrukce) Předmětu prodeje byla ze strany Dlužníka dokončena před více než 23 měsíci přede dnem prodeje. V takovém případě bude v souvislosti s prodejem Předmětu prodeje na straně Dlužníka nutno realizovat úpravu odpočtu DPH uplatněného na straně Dlužníka na vstupu v souvislosti s technickým zhodnocením a opravami (rekonstrukcí) Předmětu prodeje dle § 78d a § 78da ZDPH.

Stejně tak může být Předmět prodeje zpeněžován v režimu § 56 odst. 8 ZDPH, kterým je nadále zachována „dobrovolná“ možnost přistoupit k prodeji Předmětu prodeje Dlužníka za kupní cenu vč. DPH, tj. z dosažené kupní ceny odvést DPH 21 %.

Nabídky na odkoupení Předmětu prodeje tak mohou být podávány na kupní cenu bez DPH či na kupní cenu vč. DPH.

V návaznosti na podané nabídky a jejich výši bude ze strany Insolvenčního správce rozhodnuto, zda Předmět prodeje bude zpeněžován bez DPH či s DPH a to tak, aby byl prodej realizován za co nejvyšší čistou kupní cenu po splnění daňových povinností Dlužníka dle ZDPH.


Nabídky na odkoupení Předmětu prodeje je možné podávat:

písemně na adresu: Mgr. Michal Hanšpach, Hybernská 1009/24, Praha 1, PSČ 110 00

prostřednictvím datové schránky: ID datové schránky: sj7hak9

nebo elektronicky emailem na e-mailovou adresu uvedenou u tohoto inzerátu

a to nejpozději do 31.10.2025 do 15:00.

V předmětu zprávy musí být uvedeno: „GLOBAL APIS – NEMOVITOSTI FRENŠTÁT“ a nabídka musí obsahovat nabízenou kupní cenu za Předmět prodeje s uvedením, zda se jedná o kupní cenu bez DPH či s DPH, celé jméno a příjmení či název právnické osoby podávající nabídku, adresu a kontaktní telefon.

Kupní cena musí být uhrazena před převodem vlastnického práva k Předmětu prodeje, tj. před podáním návrhu na vklad vlastnického práva k Předmětu prodeje ve prospěch kupujícího do katastru nemovitostí.

Insolvenční správce si vyhrazuje právo odmítnout všechny předložené nabídky.

Parametry nemovitosti

Cena
Cena na vyžádání Spočítat hypotéku
Poznámka k ceně
Nabídky na odkoupení Předmětu prodeje tak mohou být podávány na kupní cenu bez DPH či na kupní cenu vč. DPH.
Aktualizováno
2. 10. 2025
Adresa
Martinská čtvrť, Frenštát pod Radhoštěm
Stavba
Cihlová
Stav objektu
Po rekonstrukci
Vybaveno
Ne
Lokalita objektu
Okraj obce
Užitná plocha
663 m2
Zastavěná plocha
297 m2
Podlahová plocha
594 m2
Odpad
Veřejná kanalizace
Komunikace
Asfaltová
Doprava
Silnice
Voda
Vodovod
Topné těleso
Radiátory
Zdroj topení
Tepelné čerpadlo
Zdroj teplé vody
Bojler - elektro
Výtah

Kontaktovat makléře

Máte zájem o tuto nemovistost?

Tímto, v souladu s nařízením Evropského parlamentu a Rady (EU) 2016/679, v platném znění, prohlašuji, že mi je alespoň 16 let a uděluji tak svůj souhlas se zpracováním zadaných údajů (jméno, telefon, e-mail, ip adresa) společnosti B3 Technology, s.r.o., IČ: 07330600, se sídlem Novostavby 126/23, 435 11 Lom (správce dat), za účelem předání dotazu z tohoto formuláře Vámi vybranému inzerentovi a zpětného kontaktování mé osoby. Osobní údaje bude správce zpracovávat manuálně i automaticky přímo prostřednictvím svých zaměstnanců. Informace předané tímto formulářem budou uloženy v databázi správce maximálně po dobu 10 let. Odvolání souhlasu s uložením a zpracováním poskytnutých dat lze e-mailem na info@bydlisnami.cz. V případě podezření na neoprávněné použití Vámi poskytnutých údajů máte právo předat podnět k šetření Úřadu pro ochranu osobních údajů. Více informací
Chystáte se prodat nemovitost?
Pomůžeme Vám!

Inzerát si prohlédlo 2 lidí

Prodejce

Mgr. MICHAL HANŠPACH

Mgr. MICHAL HANŠPACH

Hlídací pes

Chcete dostávat emailem podobné nabídky prodeje výrobních prostor v Frenštátu pod Radhoštěm?

Top nabídky

Podobné nemovitosti