Prodej rodinného domu, Vidče, 97 m2 (ID: 2423506)

Vidče

Cena na vyžádání /za nemovitost Získejte výhodnou HYPOTÉKU

(Cena u makléře.)

Doporučené firmy v Vidči

Informace k domu

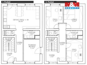
Prodej rodinného domu 4+kk, 97 m2, Vidče

Nabízíme Vám k prodeji rodinný dům 4+kk o celkové výměře 97 m2 s terasou 12 m2, orientovanou na západní stranu. Jedná se o dům ve výstavbě, s termínem předání do konce 2.Q r. 2025, v klidné části obce Vidče. Nemovitost je vytápěna podlahovým topením z tepelného čerpadla vzduch-voda, napojena na obecní vodovod a kanalizaci. PENB "B". Díky materiálům s odhlučněním až 58 dB si užijete klidné bydlení s minimálním ruchem. K dispozici 3 parkovací místa. Náš hypoteční poradce Vám nabídne nejvhodnější financování této nemovitosti. Doporučujeme prohlídku.

Parametry domu

Cena
Cena na vyžádání Spočítat hypotéku
Poznámka k ceně
Cena u makléře.
Aktualizováno
25. 9. 2025
Adresa
Vidče
ID
896307
Stavba
Cihlová
Stav objektu
Novostavba
Vybaveno
Ne
Druh objektu
Řadový
Lokalita objektu
Klidná část obce
Vlastnictví
Osobní
Užitná plocha
97 m2
Plocha pozemku
904 m2

Kontaktovat makléře

Realitní kancelář

Logo M&M reality

M&M reality

ulice Krakovská 583/9, Praha

Chystáte se prodat nemovitost?
Pomůžeme Vám!

Máte zájem o tento dům?

Tímto, v souladu s nařízením Evropského parlamentu a Rady (EU) 2016/679, v platném znění, prohlašuji, že mi je alespoň 16 let a uděluji tak svůj souhlas se zpracováním zadaných údajů (jméno, telefon, e-mail, ip adresa) společnosti B3 Technology, s.r.o., IČ: 07330600, se sídlem Novostavby 126/23, 435 11 Lom (správce dat), za účelem předání dotazu z tohoto formuláře Vámi vybranému inzerentovi a zpětného kontaktování mé osoby. Osobní údaje bude správce zpracovávat manuálně i automaticky přímo prostřednictvím svých zaměstnanců. Informace předané tímto formulářem budou uloženy v databázi správce maximálně po dobu 10 let. Odvolání souhlasu s uložením a zpracováním poskytnutých dat lze e-mailem na info@bydlisnami.cz. V případě podezření na neoprávněné použití Vámi poskytnutých údajů máte právo předat podnět k šetření Úřadu pro ochranu osobních údajů. Více informací
Chystáte se prodat nemovitost?
Pomůžeme Vám!

Inzerát si prohlédlo 1 lidí

Prodejce

Daniel Plinta

Daniel Plinta

Hlídací pes

Chcete dostávat emailem podobné nabídky prodeje rodinných domů v Vidči?

Top nabídky

Podobné nemovitosti