Pronájem restaurace, Praha - Strašnice, Zvěřinova, 89 m2

Zvěřinova, Praha, Strašnice

Cena na vyžádání /za měsíc Získejte výhodnou HYPOTÉKU

(info v RK, +poplatky 6250 kč + elektrína 8000 + odstupné, bez poplatků, + provize RK)

Doporučené firmy v Praze 3

Stěhovací služby

Výkup a prodej starého nábytku

Informace k nemovitosti

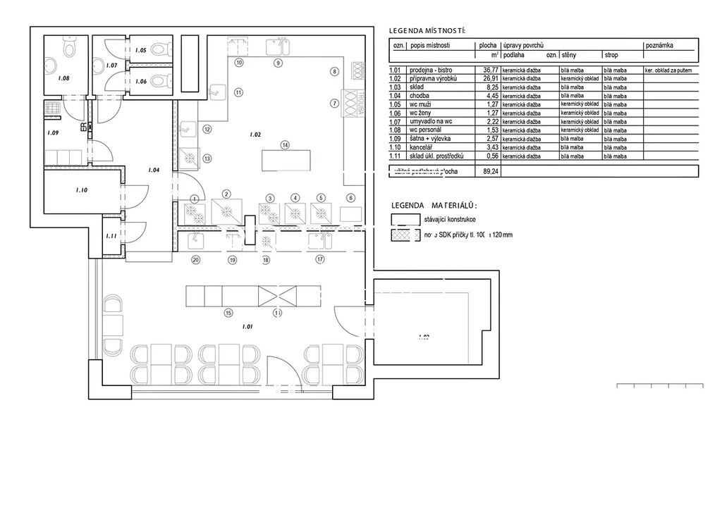
Nabízíme k pronájmu prostor vhodný pro restauraci, kavárnu, bistro a výrobnu v luxusní lokalitě Strašnice.

Prostor má celkovou plochu 89,24 m2 s promyšleným dispozičním řešením. V prostoru byla provedena moderní a útulná rekonstrukce, která vytváří ideální atmosféru pro hosty. 

Samostatný prostor zabírá kuchyně o velikosti 27 m2, vybavená veškerým potřebným profesionálním nerezovým vybavením, včetně digestoře, chladicích a mrazicích skříní a pracovních ploch. Kuchyně má všechna potřebná povolení pro teplou kuchyni, což výrazně zjednodušuje zahájení podnikání. Dále je v celé restauraci instalován výkonný ventilační systém.

Veškeré zařízení a spotřebiče zůstávají v prostorách, pronájem je možný pouze po zaplacení odstupného předchozímu nájemci.

Nájem prostor: Na vyžádání u RK
Poplatky: 6 250 Kč měsíčně
Elektřina: 8 000 Kč měsíčně
Vratná kauce: 1 měsíční nájem
Provize RK: Na vyžádání u RK
Odstupné: Na vyžádání u RK

Pokud vás nemovitost zaujala, neváhejte nás kontaktovat, rád vám prostor ukážu a podělím se o potřebné informace.

Parametry nemovitosti

Cena
Cena na vyžádání
Poznámka k ceně
info v RK, +poplatky 6250 kč + elektrína 8000 + odstupné, bez poplatků, + provize RK
Aktualizováno
4. 10. 2025
Adresa
Zvěřinova, Praha, Strašnice
ID
30522
Stavba
Panelová
Stav objektu
Velmi dobrý
Vybaveno
Ano
Užitná plocha
89 m2
Třída energetické náročnosti
B - Velmi úsporná
Ukazatel energetické náročnosti
120 kWh/m2 za rok
Parkování

Kontaktovat makléře

Máte zájem o tuto nemovistost?

Tímto, v souladu s nařízením Evropského parlamentu a Rady (EU) 2016/679, v platném znění, prohlašuji, že mi je alespoň 16 let a uděluji tak svůj souhlas se zpracováním zadaných údajů (jméno, telefon, e-mail, ip adresa) společnosti B3 Technology, s.r.o., IČ: 07330600, se sídlem Novostavby 126/23, 435 11 Lom (správce dat), za účelem předání dotazu z tohoto formuláře Vámi vybranému inzerentovi a zpětného kontaktování mé osoby. Osobní údaje bude správce zpracovávat manuálně i automaticky přímo prostřednictvím svých zaměstnanců. Informace předané tímto formulářem budou uloženy v databázi správce maximálně po dobu 10 let. Odvolání souhlasu s uložením a zpracováním poskytnutých dat lze e-mailem na info@bydlisnami.cz. V případě podezření na neoprávněné použití Vámi poskytnutých údajů máte právo předat podnět k šetření Úřadu pro ochranu osobních údajů. Více informací
Chystáte se prodat nemovitost?
Pomůžeme Vám!

Inzerát si prohlédlo 1 lidí

Prodejce

Nikita Kostikov

Nikita Kostikov

Hlídací pes

Chcete dostávat emailem podobné nabídky pronájmu restaurací v Praze 3?

Podobné nemovitosti