Prodej rodinného domu, Holýšov, Pod Lesem, 122 m2

Pod Lesem, Holýšov

8 680 000 Kč /za nemovitost HYPOTÉKA od 38 794 Kč /za měsíc

(včetně DPH, včetně poplatků, včetně provize, včetně právního servisu)

Doporučené firmy v Holýšově

Podlahy

Stěhovací služby

Informace k domu

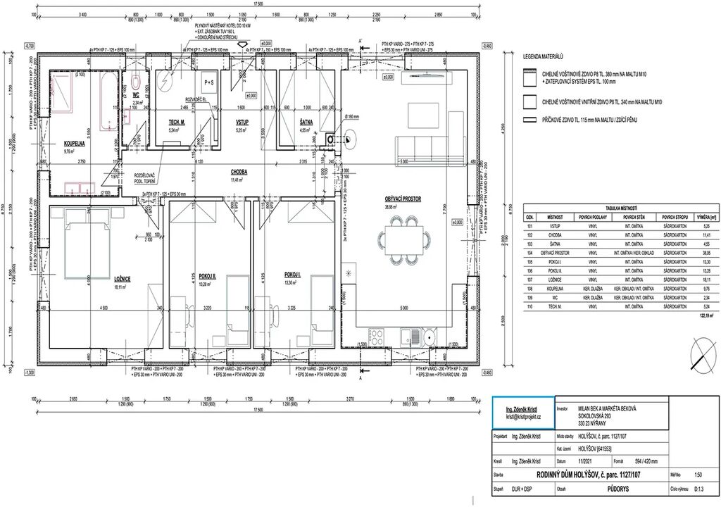
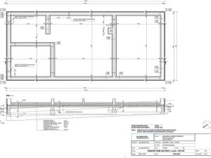
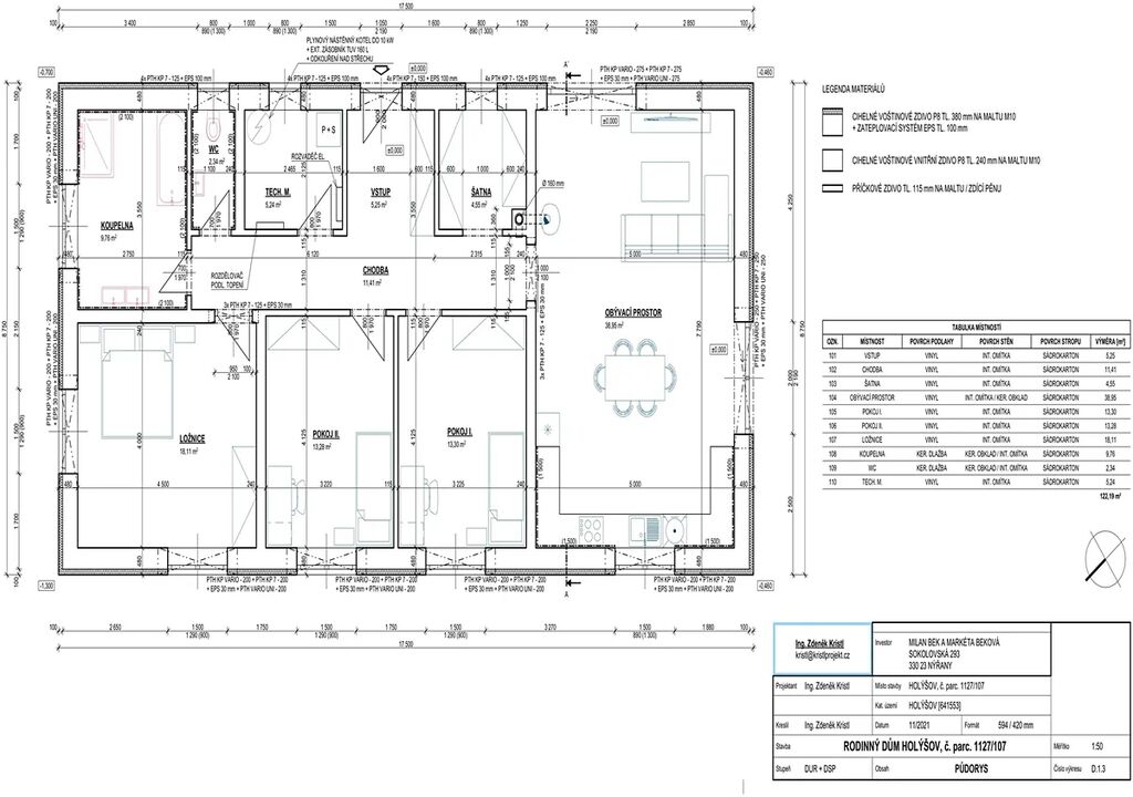
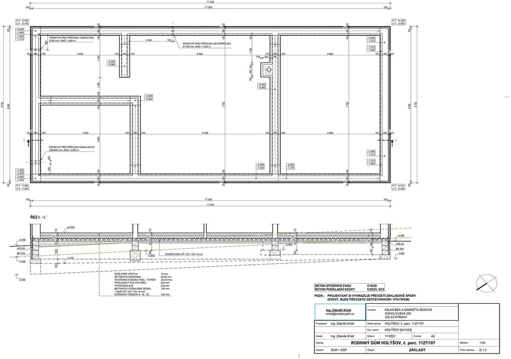
Nabízíme k prodeji novostavbu rodinného domu o celkové užitné ploše 122,2 m2 a zastavěné ploše 155 m2

- čistá užitná plocha obytných místností je 122,2 m2

- obývací pokoj s kuchyňským a jídelním koutem s vchodem na terasy domu
- 3 samostatné pokoje
- šatna
- koupelna, samostatná toaleta
- velká technická místnost s druhou toaletou

- vytápění a ohřev vody plynový kotel
- boiler obsah 120 l
- velmi nízké provozní náklady celého domu PENB C
- topení plyn - podlahového topení celého domu
- topení je možné doplnit i kombinací elektrokotel, či tepelné čerpadlo
- voda - městský vodovod
- odpady - obecní kanalizace

- možnost umístění krbu či krbových kamen
- kvalitní plastová okna s izolačními trojskly
- venkovní předokenní žaluzie "Z" na elektrické ovládání

Při výstavbě a celkové realizaci domu byl kladen velký důraz na použití kvalitních materiálů.
- výstavba 2024 , kolaudace 2025
- prodávající poskytne zájemci kompletní fotodokumentaci z průběhu výstavby, elektroinstalací,
instalace topení, vody, zateplovaní atd
- nový majitel dokončí nemovitost přesně dle svých představ a designu materiálů jako jsou krytiny podlah,
obklady a sanita koupelny a wc a realizace kuchyně, zahrady a oplocení

- poloha domu a umístění domu na pozemku poskytuje absolutní soukromí
- krásný pozemek v blízkosti lesa

- perfektní dostupnost dálnice D5, centra města Plzně a dalších měst

- velmi klidná část obce v dostupnosti přírody, cyklostezky a další možnosti aktivního odpočinku
- v blízkosti zároveň veškerá občanská vybavenost, školky, školy, lékárna, obchody, restaurace, kavárny a další
- minimální provoz v této lokalitě, vjezd pouze rezidenti

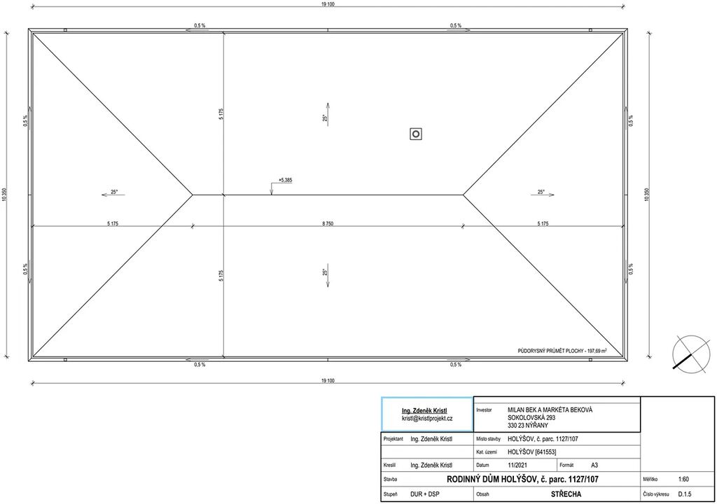
- použité plánky půdorysů jsou pouze s orientačními rozměry, zájemce obdrží přesné stavební výkresy a půdorysy

- prodávající si vyhrazuje právo vybrat a určit si kupujícího
- pro financování a dokončení realizace domu Vám doporučím odborníky v oboru

Parametry domu

Cena
8 680 000 Kč /za nemovitost Spočítat hypotéku
Poznámka k ceně
včetně DPH, včetně poplatků, včetně provize, včetně právního servisu
Aktualizováno
30. 9. 2025
Adresa
Pod Lesem, Holýšov
ID
00079
Stavba
Cihlová
Stav objektu
Novostavba
Vybaveno
Ne
Druh objektu
Samostatný
Lokalita objektu
Klidná část obce
Užitná plocha
122 m2
Zastavěná plocha
155 m2
Podlahová plocha
155 m2
Plocha pozemku
979 m2
Plocha zahrady
824 m2
Třída energetické náročnosti
C - Úsporná
Ukazatel energetické náročnosti
110 kWh/m2 za rok
Elektřina
230V
Plyn
Plynovod
Odpad
Veřejná kanalizace
Komunikace
Asfaltová
Telekomunikace
Telefon, Internet, Kabelové rozvody, Ostatní
Doprava
Vlak, Dálnice, Silnice, Autobus
Voda
Vodovod
Topné těleso
Podlahové vytápění, Krbová kamna, Kamna, Jiné
Zdroj topení
Plynový kondenzační kotel, Plynový kotel, Krbová kamna, Kamna, Jiné
Zdroj teplé vody
Plynový kondenzační kotel, Plynový kotel, Bojler - plyn, Jiné
Výtah
Bezbarierový přístup
Parkování

Kontaktovat makléře

Realitní kancelář

Hedvika Varcholková

Otýlie Beníškové 1695/16, Plzeň

Chystáte se prodat nemovitost?
Pomůžeme Vám!

Máte zájem o tento dům?

Tímto, v souladu s nařízením Evropského parlamentu a Rady (EU) 2016/679, v platném znění, prohlašuji, že mi je alespoň 16 let a uděluji tak svůj souhlas se zpracováním zadaných údajů (jméno, telefon, e-mail, ip adresa) společnosti B3 Technology, s.r.o., IČ: 07330600, se sídlem Novostavby 126/23, 435 11 Lom (správce dat), za účelem předání dotazu z tohoto formuláře Vámi vybranému inzerentovi a zpětného kontaktování mé osoby. Osobní údaje bude správce zpracovávat manuálně i automaticky přímo prostřednictvím svých zaměstnanců. Informace předané tímto formulářem budou uloženy v databázi správce maximálně po dobu 10 let. Odvolání souhlasu s uložením a zpracováním poskytnutých dat lze e-mailem na info@bydlisnami.cz. V případě podezření na neoprávněné použití Vámi poskytnutých údajů máte právo předat podnět k šetření Úřadu pro ochranu osobních údajů. Více informací
Chystáte se prodat nemovitost?
Pomůžeme Vám!

Inzerát si prohlédlo 2 lidí

Prodejce

Hedvika Varcholková

Hedvika Varcholková

Hlídací pes

Chcete dostávat emailem podobné nabídky prodeje rodinných domů v Holýšově?

Podobné nemovitosti