Pronájem bytu 3+1, Chrudim, Na Valech, 78 m2

Na Valech, Chrudim II

14 000 Kč /za měsíc Získejte výhodnou HYPOTÉKU
Doporučené firmy v Chrudimi

Informace k bytu

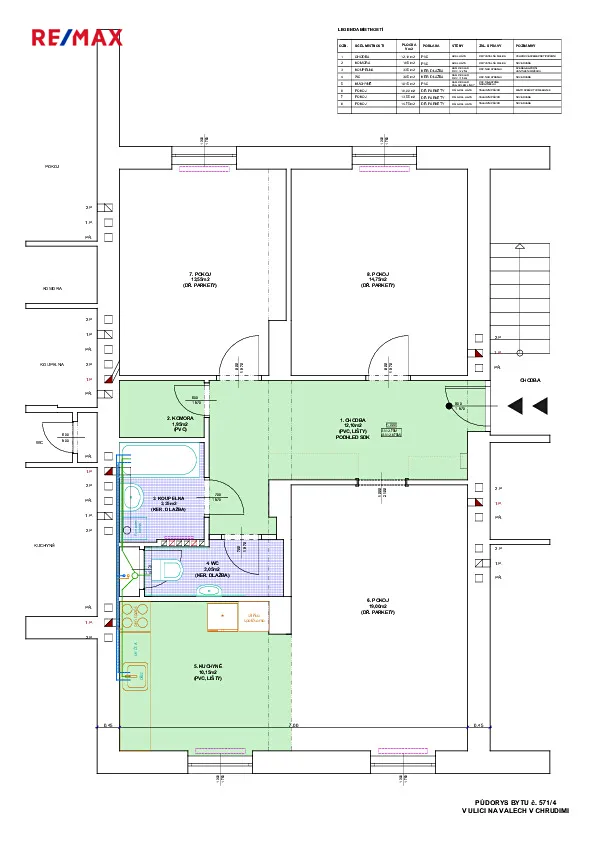
Pronájem krásného, v nedávné době zrekonstruovaného bytu 3+1, 78 m2 užitné plochy + 6 m2 sklepní kóje v Chrudimi. ul. Na Valech, č.p. 571.

Byt je nezařízený, nachází se ve 2.podlaží ze tří, zatepleného cihlového domu (PENB – C - úsporná) a skládá se ze vstupní, prostorné předsíně, ze které je přístup do velkorysého obývacího pokoje (19 m2), propojeného s kuchyní (10,15 m2), dvou pokojů (13,55 m2, 14,75 m2), koupelny s vanou a umyvadlem (3,35 m2), samostatného WC (3,05 m2) a komory (1,95 m2).

Obývací pokoj s kuchyní je situován na východ, oba pokoje na západ do klidného dvora. Byt je vytápěn samostatným kondenzačním, plynovým kotlem. V kuchyňce je kombinovaný sporák, s plynovými plotýnkami, el. troubou a odsavačem par. K bytu náleží sklep. V suterénu domu je kolárna - kočárkárna.

Velkým bonusem je bezplatné a bezproblémové parkování za domem, na soukromém dvoru opatřený závorou.

Historické centrum města, jakož i veškeré školy, státní úřady, obchodní centra a služby se nacházejí v bezprostřední blízkosti, pěšky na dosah. Byt se nachází v centru, zároveň však v absolutně klidové části tohoto královského města.

Cena pronájmu 14 000,-Kč + 3.000,-Kč zálohy na energie. Kauce je ve výši 28.000,-Kč. Provize RK 22.000,-Kč + DPH.

Nastěhování je možné ihned.

V případě více vážných zájemců bude kupující vybrán na základě parametrů stanovených pronajímatelem.

Pokud Vás tato nabídka zaujala a máte zájem se dozvědět více informací, tak mě neváhejte kontaktovat. Budu se těšit na osobní setkání během prohlídek nemovitosti.

Parametry bytu

Cena
14 000 Kč /za měsíc
Aktualizováno
26. 9. 2025
Adresa
Na Valech, Chrudim II
ID
0297-NP00253
Stavba
Smíšená
Stav objektu
Velmi dobrý
Patro
2. z 3
Vybaveno
Částečně
Lokalita objektu
Centrum obce
Vlastnictví
Osobní
Užitná plocha
78 m2
Zastavěná plocha
468 m2
Třída energetické náročnosti
C - Úsporná
Elektřina
230V
Plyn
Plynovod
Odpad
Veřejná kanalizace
Komunikace
Asfaltová
Telekomunikace
Telefon, Internet, Kabelová televize
Doprava
Vlak, Dálnice, Silnice, MHD, Autobus
Voda
Vodovod
Topné těleso
Radiátory
Zdroj topení
Plynový kotel, Centrální dálkové

Kontaktovat makléře

Realitní kancelář

RE/MAX Vox

Jana Palacha 324, Pardubice

Chystáte se prodat nemovitost?
Pomůžeme Vám!

Máte zájem o tento byt?

Tímto, v souladu s nařízením Evropského parlamentu a Rady (EU) 2016/679, v platném znění, prohlašuji, že mi je alespoň 16 let a uděluji tak svůj souhlas se zpracováním zadaných údajů (jméno, telefon, e-mail, ip adresa) společnosti B3 Technology, s.r.o., IČ: 07330600, se sídlem Novostavby 126/23, 435 11 Lom (správce dat), za účelem předání dotazu z tohoto formuláře Vámi vybranému inzerentovi a zpětného kontaktování mé osoby. Osobní údaje bude správce zpracovávat manuálně i automaticky přímo prostřednictvím svých zaměstnanců. Informace předané tímto formulářem budou uloženy v databázi správce maximálně po dobu 10 let. Odvolání souhlasu s uložením a zpracováním poskytnutých dat lze e-mailem na info@bydlisnami.cz. V případě podezření na neoprávněné použití Vámi poskytnutých údajů máte právo předat podnět k šetření Úřadu pro ochranu osobních údajů. Více informací
Chystáte se prodat nemovitost?
Pomůžeme Vám!

Inzerát si prohlédlo 2 lidí

Prodejce

Ing. Jiří Hác

Ing. Jiří Hác

Hlídací pes

Chcete dostávat emailem podobné nabídky pronájmu bytů 3+1 v Chrudimi?

Podobné nemovitosti