Prodej rodinného domu, Slušovice, 160 m2 (ID: 2424929)

Slušovice

9 520 000 Kč /za nemovitost HYPOTÉKA od 42 549 Kč /za měsíc
Doporučené firmy v Slušovicích

Informace k domu

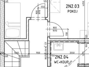
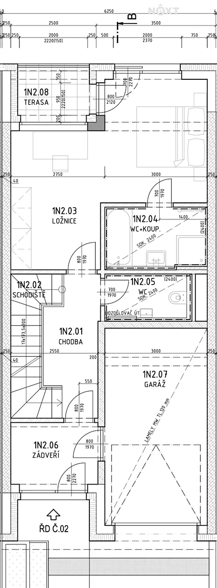
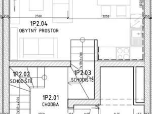
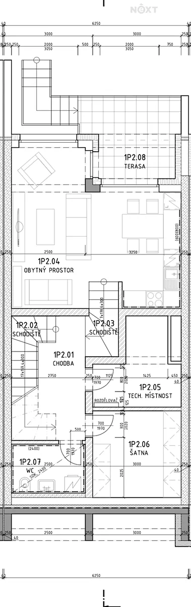
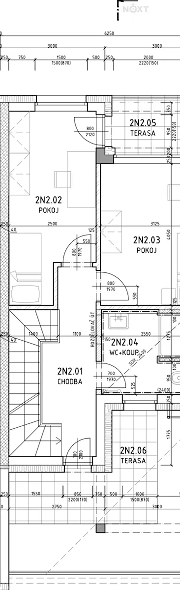
Nová výstavba - Slušovice Pod Sadem RD č. 2 Zprostředkujeme Vám výstavbu rodinného domu na klíč - RD č. 2 na pozemku s výměrou 450 m² ve Slušovicích. Projekt řeší stavbu celkem pěti dvoupodlažních řadových domů s jedním podzemím v ulici Pod Sadem ve městě Slušovice. Vstupy a vjezdy do garáží jsou ze strany západní, výstupy na terasy a na terén jsou na straně východní. Orientace ŘD umožňuje výhledy na dostihový areál a na město Slušovice. RD č. 2: - dispozice 4+kk - zastavěná plocha 124,73 m2 Užitná plocha: 162,47 + 40,51 (terasa) m2 1.PP 59,43 + 9,31 (terasa) m2 1.NP 64,49 + 3,71 (terasa) m2 2.NP 38,55 + 27,49 (terasa) m2 Součástí uvedené ceny je dům na klíč včetně DPH a pozemek. Bude se jednat o zděnou stavbu. V uvedené ceně můžete počítat s finálními povrchovými úpravami exteriéru i interiéru, a to včetně elektroinstalací, sanitárního vybavení s bateriemi, interiérovými dveřmi včetně obložek, podlahové vytápění tepelným čerpadlem. Doba výstavby 18 měsíců od vydání stavebního povolení. Stavba je od počátku řešena ve variantě na klíč až po kolaudaci. Každý dům je vybaven parkovacím stáním před garáží, odděleným pěším přístupem, malou předzahrádkou. Více informací u makléře. Pro komunikaci uvádějte evidenční číslo zakázky N109238.

Parametry domu

Cena
9 520 000 Kč /za nemovitost Spočítat hypotéku
Aktualizováno
27. 9. 2025
Adresa
Slušovice
ID
N109238
Stavba
Cihlová
Stav objektu
Projekt
Vybaveno
Ne
Druh objektu
Řadový
Lokalita objektu
Klidná část obce
Užitná plocha
160 m2
Zastavěná plocha
88 m2
Plocha pozemku
450 m2
Třída energetické náročnosti
B - Velmi úsporná
Elektřina
230V
Odpad
Veřejná kanalizace
Komunikace
Asfaltová
Doprava
Silnice, Autobus
Voda
Vodovod
Garáž
Sklep
Bezbarierový přístup
Parkování

Kontaktovat makléře

Máte zájem o tento dům?

Tímto, v souladu s nařízením Evropského parlamentu a Rady (EU) 2016/679, v platném znění, prohlašuji, že mi je alespoň 16 let a uděluji tak svůj souhlas se zpracováním zadaných údajů (jméno, telefon, e-mail, ip adresa) společnosti B3 Technology, s.r.o., IČ: 07330600, se sídlem Novostavby 126/23, 435 11 Lom (správce dat), za účelem předání dotazu z tohoto formuláře Vámi vybranému inzerentovi a zpětného kontaktování mé osoby. Osobní údaje bude správce zpracovávat manuálně i automaticky přímo prostřednictvím svých zaměstnanců. Informace předané tímto formulářem budou uloženy v databázi správce maximálně po dobu 10 let. Odvolání souhlasu s uložením a zpracováním poskytnutých dat lze e-mailem na info@bydlisnami.cz. V případě podezření na neoprávněné použití Vámi poskytnutých údajů máte právo předat podnět k šetření Úřadu pro ochranu osobních údajů. Více informací
Chystáte se prodat nemovitost?
Pomůžeme Vám!

Inzerát si prohlédlo 3 lidí

Prodejce

Pavla Jahodová

Pavla Jahodová

Hlídací pes

Chcete dostávat emailem podobné nabídky prodeje rodinných domů v Slušovicích?

Podobné nemovitosti