Prodej bytu 3+1, Ústí nad Labem, Hilarova, 74 m2

Hilarova, Ústí nad Labem-centrum

4 590 000 Kč /za nemovitost HYPOTÉKA od 20 515 Kč /za měsíc

(Včetně provize a právních služeb)

Doporučené firmy v Ústí nad Labem

Okna a dveře

Rekonstrukce

Zámečnické práce

Informace k bytu

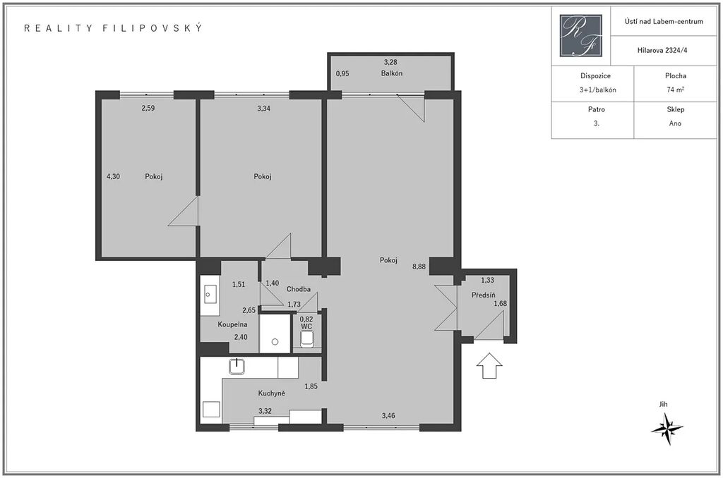
Ojedinělá nabídka bytu 3+1 s lodžií, který se nachází v jedné z nejžádanějších ústeckých lokalit, na Skřivánku, v ul. Hilarova.

Bytová jednotka je situována ve třetím patře kompletně zrekonstruovaného cihlového činžovního domu bez výtahu, ke kterému navíc náleží okolní pozemek o výměře 3963 m2, jehož příslušný podíl je součástí převodu vlastnických práv k jednotce.

Podstatná část bytu byla v minulosti zrekonstruována (kuchyně, koupelna, toaleta). Na rekonstrukci lze velmi dobře navázat a při té příležitosti můžete drobnou úpravou dispozice získat i neprůchozí prostřední pokoj viz. alternativní řešení dispozice ve fotogalerii. V případě využití plného potenciálu této jednotky si zde umím představit i realizaci dispozice 4+1. Velice se mi líbí balkón i výhled ze všech oken. K bytu také náleží prostorný zděný sklep, který by mohl být i malou dílnou. Dále je k dispozici velká společná místnost užívaná rovným dílem všemi vlastníky bytů.

Pochvalu zaslouží i příslušné SVJ, díky jehož činnosti se podařilo dům zrekonstruovat bez zadlužení. Výsledkem toho jsou, mimo jiné, velmi příznivé provozní náklady.

Uvedená energetická náročnost domu odpovídá stavu před kompletním dokončením zateplení obvodového pláště.

Neváhejte mě kontaktovat pro podrobnější informace.

Parametry bytu

Cena
4 590 000 Kč /za nemovitost Spočítat hypotéku
Poznámka k ceně
Včetně provize a právních služeb
Aktualizováno
28. 9. 2025
Adresa
Hilarova, Ústí nad Labem-centrum
ID
620
Stavba
Cihlová
Stav objektu
Velmi dobrý
Patro
4.
Vlastnictví
Osobní
Užitná plocha
74 m2
Třída energetické náročnosti
D - Méně úsporná
Elektřina
230V
Plyn
Plynovod
Odpad
Veřejná kanalizace
Voda
Vodovod
Topné těleso
Radiátory
Zdroj topení
Centrální dálkové
Zdroj teplé vody
Centrální dálkový ohřev
Balkon
Sklep

Kontaktovat makléře

Máte zájem o tento byt?

Tímto, v souladu s nařízením Evropského parlamentu a Rady (EU) 2016/679, v platném znění, prohlašuji, že mi je alespoň 16 let a uděluji tak svůj souhlas se zpracováním zadaných údajů (jméno, telefon, e-mail, ip adresa) společnosti B3 Technology, s.r.o., IČ: 07330600, se sídlem Novostavby 126/23, 435 11 Lom (správce dat), za účelem předání dotazu z tohoto formuláře Vámi vybranému inzerentovi a zpětného kontaktování mé osoby. Osobní údaje bude správce zpracovávat manuálně i automaticky přímo prostřednictvím svých zaměstnanců. Informace předané tímto formulářem budou uloženy v databázi správce maximálně po dobu 10 let. Odvolání souhlasu s uložením a zpracováním poskytnutých dat lze e-mailem na info@bydlisnami.cz. V případě podezření na neoprávněné použití Vámi poskytnutých údajů máte právo předat podnět k šetření Úřadu pro ochranu osobních údajů. Více informací
Chystáte se prodat nemovitost?
Pomůžeme Vám!

Inzerát si prohlédlo 5 lidí

Prodejce

Marek Filipovský - certifikovaný obchodník s nemovitostmi

Marek Filipovský - certifikovaný obchodník s nemovitostmi

Hlídací pes

Chcete dostávat emailem podobné nabídky prodeje bytů 3+1 v Ústí nad Labem?

Podobné nemovitosti