Pronájem bytu 1+1, Praha - Libeň, Novákových, 41 m2

Novákových, Libeň - Praha 8

21 000 Kč /za měsíc Získejte výhodnou HYPOTÉKU

(vratná jistota, náklady na bydlení 4800 Kč včetně elektřiny a plynu, poplatek za podnájem)

Doporučené firmy v Praze 8

Stěhovací služby

Výkup a prodej starého nábytku

Informace k bytu

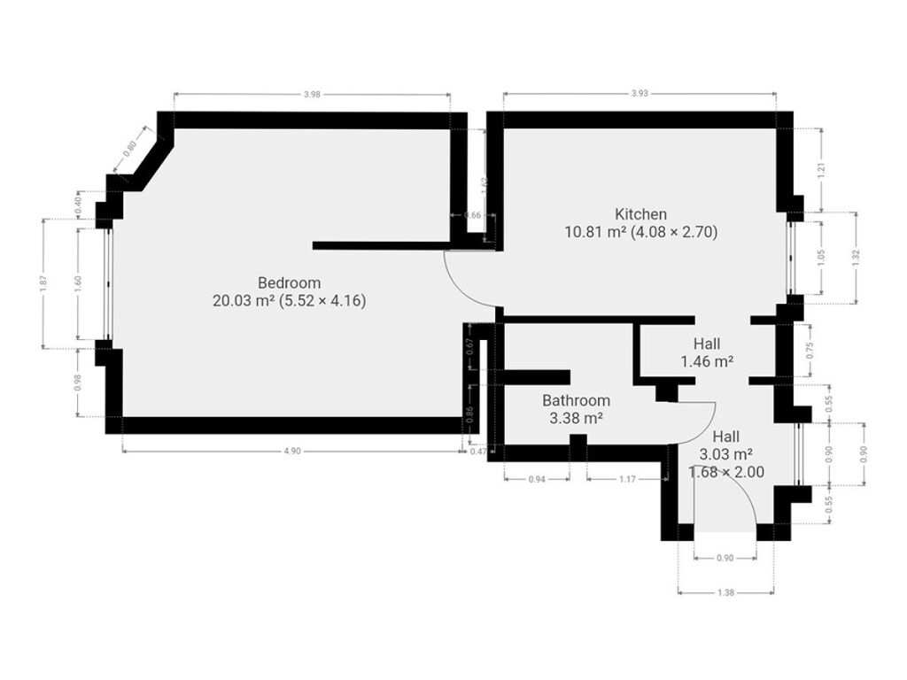
K dlouhodobému podnájmu nabízíme krásný byt po rekonstrukci o dispozici 1+1 v oblíbené lokalitě Praha - Palmovka. Byt o celkové výměře 41m2 se nachází ve druhém podlaží cihlového domu s výtahem.

Byt se nabízí částečně vybavený. Kuchyně disponuje myčkou, elektrickou troubou, varnou deskou, mikrovlnou troubou a digestoří. V ložnici je k dispozici prostorná šatní skříň a bude doplněna postel bez matrace. Navíc zde naleznete krásná krbová kamna. V koupelně je sprchový kout, umyvadlo a toaleta. V chodbě je pak k dispozici pračka a sušička.

V okolí domu najdeme restaurace, supermarket Albert, základní a mateřskou školu, lékárnu atd. Dvě minuty chůze od domu je vzdálená zastávka metra Palmovka.

Majitel preferuje zájemce bez domácích mazlíčků.

Byt je volný k nastěhování od 1.12.2025

Uvedena energetická kategorie G, jelikož nemáme k dispozici PENB.

Byt pronajímá Ideální nájemce - služba, se kterou budete bydlet bezstarostně a za férových podmínek. Když se něco přihodí, k dispozici jsou správci, kteří s vámi vše vyřeší. Pomůžeme s veškerou administrativou, s nastavením plateb a zajistíme vám speciální pojištění. Pojďte bydlet s námi!

Parametry bytu

Cena
21 000 Kč /za měsíc
Poznámka k ceně
vratná jistota, náklady na bydlení 4800 Kč včetně elektřiny a plynu, poplatek za podnájem
Aktualizováno
29. 9. 2025
Adresa
Novákových, Libeň - Praha 8
ID
N3755
Stavba
Cihlová
Stav objektu
Velmi dobrý
Patro
2. z 5
Vybaveno
Částečně
Typ objektu
Patrový
Lokalita objektu
Klidná část obce
Vlastnictví
Osobní
Užitná plocha
41 m2
Podlahová plocha
41 m2
Elektřina
230V
Topení
Lokální plynové
Výtah

Kontaktovat makléře

Máte zájem o tento byt?

Tímto, v souladu s nařízením Evropského parlamentu a Rady (EU) 2016/679, v platném znění, prohlašuji, že mi je alespoň 16 let a uděluji tak svůj souhlas se zpracováním zadaných údajů (jméno, telefon, e-mail, ip adresa) společnosti B3 Technology, s.r.o., IČ: 07330600, se sídlem Novostavby 126/23, 435 11 Lom (správce dat), za účelem předání dotazu z tohoto formuláře Vámi vybranému inzerentovi a zpětného kontaktování mé osoby. Osobní údaje bude správce zpracovávat manuálně i automaticky přímo prostřednictvím svých zaměstnanců. Informace předané tímto formulářem budou uloženy v databázi správce maximálně po dobu 10 let. Odvolání souhlasu s uložením a zpracováním poskytnutých dat lze e-mailem na info@bydlisnami.cz. V případě podezření na neoprávněné použití Vámi poskytnutých údajů máte právo předat podnět k šetření Úřadu pro ochranu osobních údajů. Více informací
Chystáte se prodat nemovitost?
Pomůžeme Vám!

Inzerát si prohlédlo 3 lidí

Prodejce

Miloslava Kačerová

Miloslava Kačerová

Hlídací pes

Chcete dostávat emailem podobné nabídky pronájmu bytů 1+1 v Praze 8?

Podobné nemovitosti