Prodej rodinného domu, Praha - Horní Měcholupy, U hostivařského nádraží, 189 m2

U Hostivařského nádraží, Praha, Horní Měcholupy

33 137 600 Kč /za nemovitost HYPOTÉKA od 148 105 Kč /za měsíc
Doporučené firmy v Praze 10

Stěhovací služby

Výkup a prodej starého nábytku

Pojištění a finance

Informace k domu

Hledáte dům v ustálené lokalitě, s moderní architekturou, bezpečným prostředím a okolní přírodou, jinými slovy, ideální bydlení s adresou Prahy? Zveme Vás do areálu Golf Hostivař, kde můžete najít balanc klidové zóny ve městě.

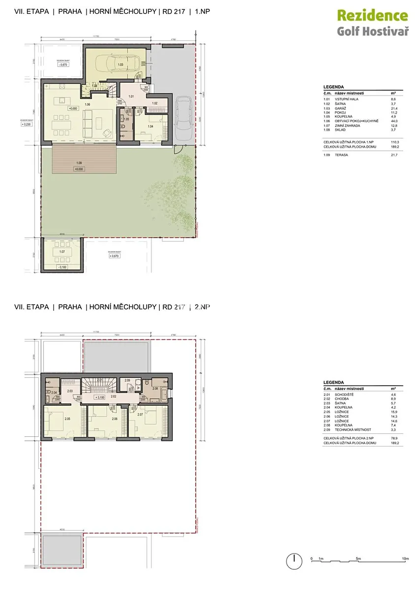
Nabídka domu 5+KK s pozemkem 340 m² s možností výběru interiéru dokončení podle Vašeho vkusu. Přízemí domu zahrnuje vstupní halu, obývací pokoj s kuchyní, ložnici, koupelnu a také garáž pro dva vozy. U obývacího pokoje je obdélníková terasa a navazující zahrada se samostatnou místností, kterou můžete využít podle Vašeho životního stylu. V prvním patře jsou dvě ložnice, koupelna (sprcha, vana), hlavní ložnice se šatnou a vlastní koupelnou a také samostatná místnost pro domácí práce.

Hrubá stavba domu je dokončená a můžete do konce příštího roku bydlet ve vlastním. Cena zahrnuje dokončení, včetně podlah, dveří a koupelen.


Dům má vytápění samostatným plynovým kotlem, hliníková okna s trojsklem, podlahové vytápění a je energetické třídě B. V rámci vlastnictví nemovitosti je také podíl na okolních komunikacích, kde je zajištěný pravidelný servis a údržba v rámci golfového areálu a minimálními náklady.


Rezidence Golf Hostivař je unikátní projekt v Praze 10 – Horních Měcholupech. Celý areál je koncipován jako soukromá čtvrť s kontrolovaným vjezdem, což zajišťuje maximální bezpečí a soukromí obyvatel. Součástí komplexu je 18-ti jamkové golfové hřiště, veřejná klubovna s restaurací a dětské hřiště. Velmi blízko najdete kompletní infrastrukturu a také zastávky MHD.

Parametry domu

Cena
33 137 600 Kč /za nemovitost Spočítat hypotéku
Aktualizováno
30. 9. 2025
Adresa
U Hostivařského nádraží, Praha, Horní Měcholupy
ID
532018
Stavba
Smíšená
Stav objektu
Ve výstavbě
Užitná plocha
189 m2
Plocha pozemku
340 m2
Třída energetické náročnosti
B - Velmi úsporná
Garáž
Výtah
Parkování

Kontaktovat makléře

Máte zájem o tento dům?

Tímto, v souladu s nařízením Evropského parlamentu a Rady (EU) 2016/679, v platném znění, prohlašuji, že mi je alespoň 16 let a uděluji tak svůj souhlas se zpracováním zadaných údajů (jméno, telefon, e-mail, ip adresa) společnosti B3 Technology, s.r.o., IČ: 07330600, se sídlem Novostavby 126/23, 435 11 Lom (správce dat), za účelem předání dotazu z tohoto formuláře Vámi vybranému inzerentovi a zpětného kontaktování mé osoby. Osobní údaje bude správce zpracovávat manuálně i automaticky přímo prostřednictvím svých zaměstnanců. Informace předané tímto formulářem budou uloženy v databázi správce maximálně po dobu 10 let. Odvolání souhlasu s uložením a zpracováním poskytnutých dat lze e-mailem na info@bydlisnami.cz. V případě podezření na neoprávněné použití Vámi poskytnutých údajů máte právo předat podnět k šetření Úřadu pro ochranu osobních údajů. Více informací
Chystáte se prodat nemovitost?
Pomůžeme Vám!
Theleadway banner

Inzerát si prohlédlo 16 lidí

Prodejce

Adéla Bukovská - recepce

Adéla Bukovská - recepce

Hlídací pes

Chcete dostávat emailem podobné nabídky prodeje rodinných domů v Praze 10?

Podobné nemovitosti