Prodej pozemku pro bydlení, Praha - Modřany, Ke Spofě, 935 m2 (ID: 2426841)

Ke Spofě, Praha, Modřany

27 500 Kč /za metr čtvereční HYPOTÉKA od 123 Kč /za měsíc
Doporučené firmy v Praze 4

Stěhovací služby

Výkup a prodej starého nábytku

Informace k pozemku

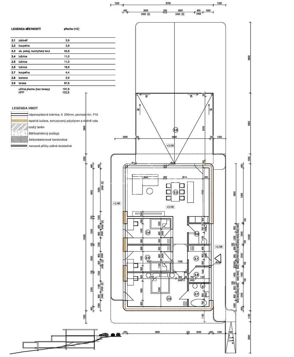
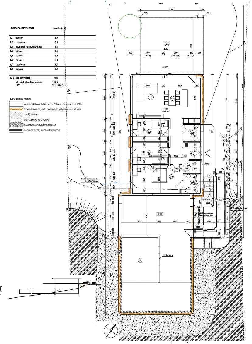
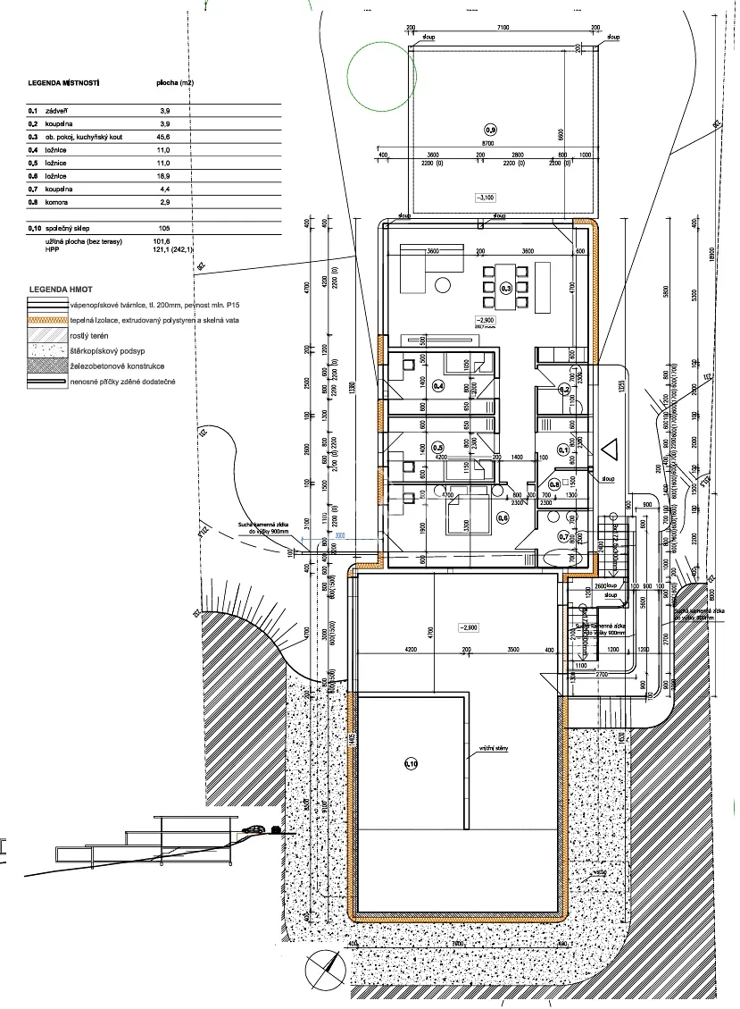
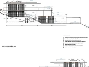
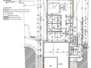
Nabízíme k prodeji pozemek o velikosti 935 m2 s vydaným stavebním povolením na výstavbu luxusního rodinného domu o 3 bytových jednotkách, který se nachází v klidné zástavbě rodinných vil v Modřanech. Mírně svažitý pozemek obdélníkového tvaru má krásné výhledy na údolí Vltavy a je kompletně zasíťovaný.

Dle územního plánu se jedná o OB-A čistě obytné, plochy pro bydlení. Vydané stavební povolení umožňuje výstavbu třípodlažní vily (včetně FVE na střeše) o užitné ploše 305 m2, 241 m2 teras a parkování pro 4 auta.
Projektovou dokumentaci poskytneme na vyžádání.

Modřany jsou známé svými přírodními prvky – v blízkosti se nachází Modřanská rokle nebo oblíbená cyklostezka podél Vltavy, ideální pro procházky, běh nebo cyklistiku. Lokalita s výbornou dopravní dostupností centra Prahy, které zajišťují autobusy či napojení na tramvaj. Dobré spojení na Jižní spojku či Pražský okruh. Veškerá občanská vybavenost je na dosah. V okolí jsou školy, školky, obchody, restaurace a sportovní areály. Nechybí ani zdravotnická zařízení a další služby. Klidná rezidenční lokalita s příjemnou atmosférou rodinného bydlení.

Parametry pozemku

Cena
27 500 Kč /za metr čtvereční Spočítat hypotéku
Aktualizováno
30. 9. 2025
Adresa
Ke Spofě, Praha, Modřany
ID
SPF-3
Plocha pozemku
935 m2
Elektřina
230V
Odpad
Veřejná kanalizace
Voda
Místní zdroj vody

Kontaktovat makléře

Máte zájem o tento pozemek?

Tímto, v souladu s nařízením Evropského parlamentu a Rady (EU) 2016/679, v platném znění, prohlašuji, že mi je alespoň 16 let a uděluji tak svůj souhlas se zpracováním zadaných údajů (jméno, telefon, e-mail, ip adresa) společnosti B3 Technology, s.r.o., IČ: 07330600, se sídlem Novostavby 126/23, 435 11 Lom (správce dat), za účelem předání dotazu z tohoto formuláře Vámi vybranému inzerentovi a zpětného kontaktování mé osoby. Osobní údaje bude správce zpracovávat manuálně i automaticky přímo prostřednictvím svých zaměstnanců. Informace předané tímto formulářem budou uloženy v databázi správce maximálně po dobu 10 let. Odvolání souhlasu s uložením a zpracováním poskytnutých dat lze e-mailem na info@bydlisnami.cz. V případě podezření na neoprávněné použití Vámi poskytnutých údajů máte právo předat podnět k šetření Úřadu pro ochranu osobních údajů. Více informací
Chystáte se prodat nemovitost?
Pomůžeme Vám!

Inzerát si prohlédlo 1 lidí

Prodejce

Ing. Zdeněk Jemelík

Ing. Zdeněk Jemelík

Hlídací pes

Chcete dostávat emailem podobné nabídky prodeje pozemků pro bydlení v Praze 4?

Podobné nemovitosti