Pronájem kanceláře, Praha - Karlín, Sokolovská, 288 m2 (ID: 2428688)

Sokolovská, Praha, Karlín

490 Kč /za metr čtvereční / měsíc Získejte výhodnou HYPOTÉKU

(+ služby dle spotřeby cca. 25.000Kč - 35.000Kč)

Doporučené firmy v Praze 8

Stěhovací služby

Výkup a prodej starého nábytku

Informace k nemovitosti

reprezentativní kancelářké prostory 288m2, Karolina Plazza, P-8 Karlín
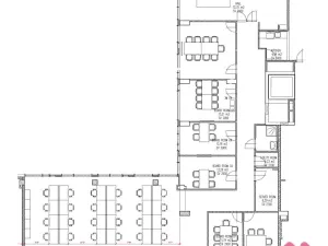
Prostory se nacházejí v 2.NP novostavby komplexu Karolina Plazza. Prostor se skládá z jedné centrální open-space místnosti pro 24 lidí, dále z 6ti samostatných vybavených zasedaček, kuchyňky, klimatizované serverovny, koupelny, a chillzony.
celková rozloha je 288,6m2
prostory mají centrální vzduchotechniku včetně chlazení.
Prostory se nabízí kompletně zařízené včetně pracovních stolů, kanc.židlí, vybavených zasedacích místností včetně TV, dále vybavena kuchyňka, chill zona, k dispozici je i akustická zvukotěsná budka. Projekt Karolína Plazza v pražském Karlíně je moderní rezidenční a komerční komplex dokončený v roce 2020. Projekt zahrnuje více než 200 bytů, ateliéry, kancelářské a obchodní prostory a podzemní parkování. Karolína Plazza 2 navazuje na tradiční činžovní zástavbu Karlína. Přízemí budov je určeno pro obchodní pasáž, zatímco podzemní podlaží slouží jako hromadné garáže.
Ke kancelářím jsou k dispozici 3ks parkovacích míst,
- Cena za kanceláře m2 490,-Kč x 288,6 = 141.500 + dph
- Cena za parkování 3550 + dph x 3 = 10.650,- + dph
-Cena za služby je dle spotřeby 25.000 - 30.000,-/ měsíčně
Pro další informace prosím kontaktujte makléře.

Parametry nemovitosti

Cena
490 Kč /za metr čtvereční / měsíc
Poznámka k ceně
+ služby dle spotřeby cca. 25.000Kč - 35.000Kč
Aktualizováno
1. 10. 2025
Adresa
Sokolovská, Praha, Karlín
ID
N39230
Stavba
Smíšená
Stav objektu
Novostavba
Patro
2.
Vybaveno
Ano
Užitná plocha
288 m2
Garáž
Parkování

Kontaktovat makléře

Máte zájem o tuto nemovistost?

Tímto, v souladu s nařízením Evropského parlamentu a Rady (EU) 2016/679, v platném znění, prohlašuji, že mi je alespoň 16 let a uděluji tak svůj souhlas se zpracováním zadaných údajů (jméno, telefon, e-mail, ip adresa) společnosti B3 Technology, s.r.o., IČ: 07330600, se sídlem Novostavby 126/23, 435 11 Lom (správce dat), za účelem předání dotazu z tohoto formuláře Vámi vybranému inzerentovi a zpětného kontaktování mé osoby. Osobní údaje bude správce zpracovávat manuálně i automaticky přímo prostřednictvím svých zaměstnanců. Informace předané tímto formulářem budou uloženy v databázi správce maximálně po dobu 10 let. Odvolání souhlasu s uložením a zpracováním poskytnutých dat lze e-mailem na info@bydlisnami.cz. V případě podezření na neoprávněné použití Vámi poskytnutých údajů máte právo předat podnět k šetření Úřadu pro ochranu osobních údajů. Více informací
Chystáte se prodat nemovitost?
Pomůžeme Vám!

Inzerát si prohlédlo 1 lidí

Prodejce

Musil Vojtěch

Musil Vojtěch

Hlídací pes

Chcete dostávat emailem podobné nabídky pronájmu kanceláří v Praze 8?

Podobné nemovitosti