Pronájem bytu 2+1, Pardubice - Černá za Bory, Na Rybníčkách, 42 m2

Na Rybníčkách, Pardubice IV

14 500 Kč /za měsíc Získejte výhodnou HYPOTÉKU
Doporučené firmy v Pardubicích

Informace k bytu

Byt 2+1 na pronájem | Pardubice – Černá za Bory

Máme pro Vás skvělou nabídku! Atraktivní byt o dispozici 2+1, ideální pro všechny věkové kategorie, ať už hledáte první nájemní bydlení nebo klidné místo pro život.

Byt se nachází v ulici Na Rybníčkách v části obce Černá za Bory v Pardubicích.

O nemovitosti:
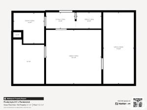
• celková plocha 43,4 m² včetně sklepní kóje
• umístění ve 4. patře ze 4
• dům po částečné revitalizaci – nové vstupní portály, výtah, stoupačky, plastová okna
• v přízemí naleznete společnou kolárnu a kočárkárnu
• některá okna opatřena sítěmi proti hmyzu a interiérovými žaluziemi
• kuchyňská linka vybavená volně stojícím sporákem se sklokeramickou varnou deskou a digestoří

Lokalita:
• klidné prostředí s rychlým dosahem do centra Pardubic a ještě lepším přímo na dálnici
• vlaková zastávka Černá za Bory pouhých 550 m od domu – přímé a rychlé spojení
• v blízkosti dětské hřiště a množství pracovních příležitostí (Foxconn, Jusda Europe, Nika a další)

Platby:
- nájem 14.500 Kč/měs.
- zálohy na energie 3.000 Kč pro 1-2 osoby
- kauce 14.500 Kč
- provize RK 25.000 Kč vč. DPH
- elektřina bude přepsána na nájemce

Byt je k dispozici od 1.11.2025.



Už se tady vidíte?

Parametry bytu

Cena
14 500 Kč /za měsíc
Aktualizováno
2. 10. 2025
Adresa
Na Rybníčkách, Pardubice IV
ID
3214
Stavba
Panelová
Stav objektu
Dobrý
Patro
4. z 4
Vybaveno
Částečně
Lokalita objektu
Okraj obce
Vlastnictví
Osobní
Užitná plocha
42 m2
Podlahová plocha
43 m2
Třída energetické náročnosti
G - Mimořádně nehospodárná
Elektřina
230V
Odpad
Veřejná kanalizace
Komunikace
Asfaltová
Telekomunikace
Internet
Doprava
Dálnice, Silnice, MHD, Autobus
Voda
Vodovod
Sklep
Výtah

Kontaktovat makléře

Realitní kancelář

Logo eDO reality

eDO reality

Na Pankráci 322/26, Praha

Chystáte se prodat nemovitost?
Pomůžeme Vám!

Máte zájem o tento byt?

Tímto, v souladu s nařízením Evropského parlamentu a Rady (EU) 2016/679, v platném znění, prohlašuji, že mi je alespoň 16 let a uděluji tak svůj souhlas se zpracováním zadaných údajů (jméno, telefon, e-mail, ip adresa) společnosti B3 Technology, s.r.o., IČ: 07330600, se sídlem Novostavby 126/23, 435 11 Lom (správce dat), za účelem předání dotazu z tohoto formuláře Vámi vybranému inzerentovi a zpětného kontaktování mé osoby. Osobní údaje bude správce zpracovávat manuálně i automaticky přímo prostřednictvím svých zaměstnanců. Informace předané tímto formulářem budou uloženy v databázi správce maximálně po dobu 10 let. Odvolání souhlasu s uložením a zpracováním poskytnutých dat lze e-mailem na info@bydlisnami.cz. V případě podezření na neoprávněné použití Vámi poskytnutých údajů máte právo předat podnět k šetření Úřadu pro ochranu osobních údajů. Více informací
Chystáte se prodat nemovitost?
Pomůžeme Vám!

Inzerát si prohlédlo 9 lidí

Prodejce

Bc. Jan Macek

Bc. Jan Macek

Hlídací pes

Chcete dostávat emailem podobné nabídky pronájmu bytů 2+1 v Pardubicích?

Podobné nemovitosti