Prodej rodinného domu, Ruda, Pražská, 400 m2

Pražská, Ruda

7 400 000 Kč /za nemovitost HYPOTÉKA od 33 074 Kč /za měsíc
Doporučené firmy v Rudě

Informace k domu

Nabídka prostorného rodinného domu v klidné ulici v obci Ruda u Nového Strašecí, okres Rakovník. Dům byl postaven v polovině devadesátých let, je v započaté rekonstrukci k dokončení dle vlastních představ. Dům kromě bydlení je možné využít také díky nebytovým prostorům – prostorné autodílny na podnikaní.

Pozemek včetně zastavěné plochy je o celkové rozloze 589 m², z toho zastavěná plocha domu je o rozloze 148 m2 (zahrada u domu 441m2). Dům má celkem 3 podlaží a je i částečně podsklepen.

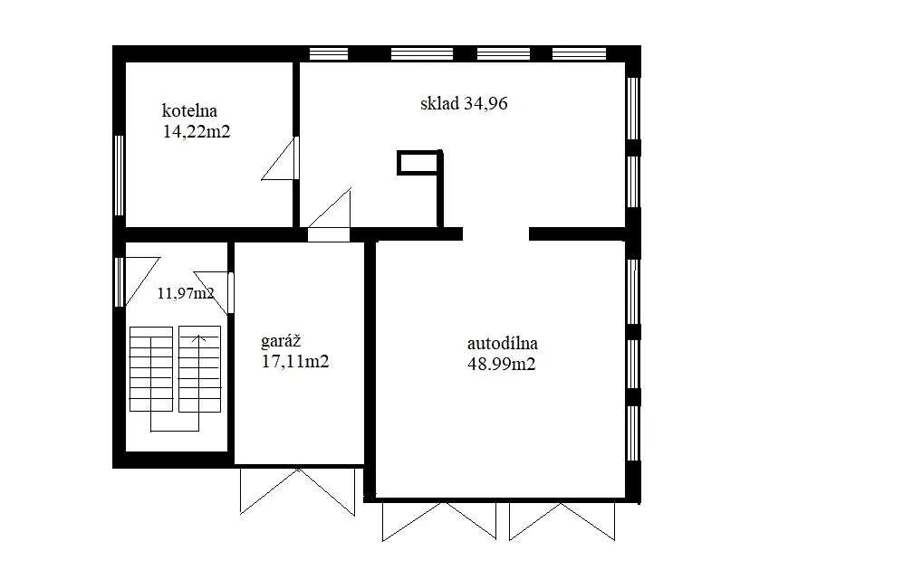
V 1 nadzemním podlaží se nachází kromě vstupní chodby se schodištěm, kotelna, sklad , garáž a dále prostorná autodílna s montážní jámou.

V 2. nadzemním podlaží se nachází se samostatným vstupem byt 3+1. Z bytu je vstupe na nedokončenou prostornou terasu.

V 3. nadzemním podlaží – podkroví ( výška stropu cca 2,1 m ) je v rekonstrukci – ve výstavbě další byt 3+1.

Dům je napojen na obecní vodovod a kanalizaci, plyn přiveden na hranici pozemku do vyzděného „antoníčku“. Na zahradě vlastní studna. Topení na pevná paliva – kotel.

V obci Ruda je mateřská škola, prodejna COOP, hostinec, obecní úřad. Dobrá dostupnost na D6 (Praha-Karlovy Vary), Hranice Prahy do 25 min. V okolí Křivoklátské lesy.

PENB = " F "

Parametry domu

Cena
7 400 000 Kč /za nemovitost Spočítat hypotéku
Aktualizováno
1. 10. 2025
Adresa
Pražská, Ruda
Stavba
Cihlová
Stav objektu
Před rekonstrukcí
Druh objektu
Samostatný
Užitná plocha
400 m2
Plocha pozemku
589 m2
Třída energetické náročnosti
F - Velmi nehospodárná
Elektřina
230V, 400V
Plyn
Plynovod
Odpad
Veřejná kanalizace
Doprava
Dálnice, Autobus
Voda
Vodovod, Studna
Topné těleso
Radiátory
Zdroj topení
Kotel na tuhá paliva
Garáž
Sklep
Parkování

Kontaktovat makléře

Máte zájem o tento dům?

Tímto, v souladu s nařízením Evropského parlamentu a Rady (EU) 2016/679, v platném znění, prohlašuji, že mi je alespoň 16 let a uděluji tak svůj souhlas se zpracováním zadaných údajů (jméno, telefon, e-mail, ip adresa) společnosti B3 Technology, s.r.o., IČ: 07330600, se sídlem Novostavby 126/23, 435 11 Lom (správce dat), za účelem předání dotazu z tohoto formuláře Vámi vybranému inzerentovi a zpětného kontaktování mé osoby. Osobní údaje bude správce zpracovávat manuálně i automaticky přímo prostřednictvím svých zaměstnanců. Informace předané tímto formulářem budou uloženy v databázi správce maximálně po dobu 10 let. Odvolání souhlasu s uložením a zpracováním poskytnutých dat lze e-mailem na info@bydlisnami.cz. V případě podezření na neoprávněné použití Vámi poskytnutých údajů máte právo předat podnět k šetření Úřadu pro ochranu osobních údajů. Více informací
Chystáte se prodat nemovitost?
Pomůžeme Vám!

Inzerát si prohlédlo 1 lidí

Prodejce

Vít Kadlec

Vít Kadlec

Hlídací pes

Chcete dostávat emailem podobné nabídky prodeje rodinných domů v Rudě (okr. Rakovník)?

Podobné nemovitosti