Prodej bytu 3+kk, České Budějovice, Dr. Tůmy, 89 m2

Dr. Tůmy, České Budějovice 3

7 990 000 Kč /za nemovitost HYPOTÉKA od 35 710 Kč /za měsíc
Doporučené firmy v Českých Budějovicích

Informace k bytu

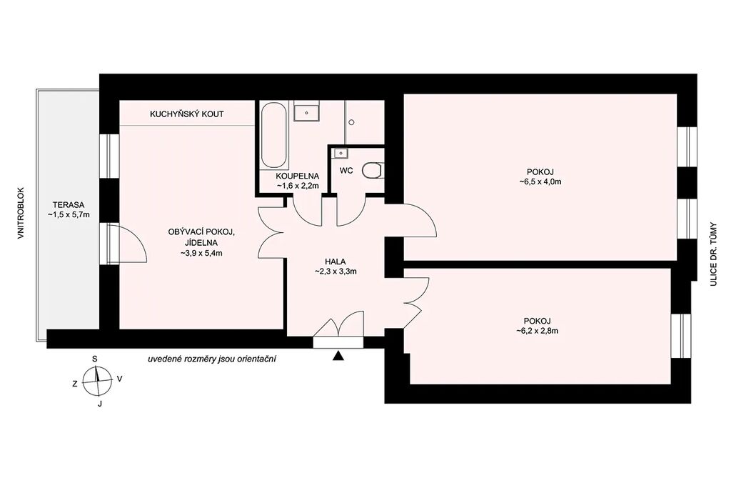
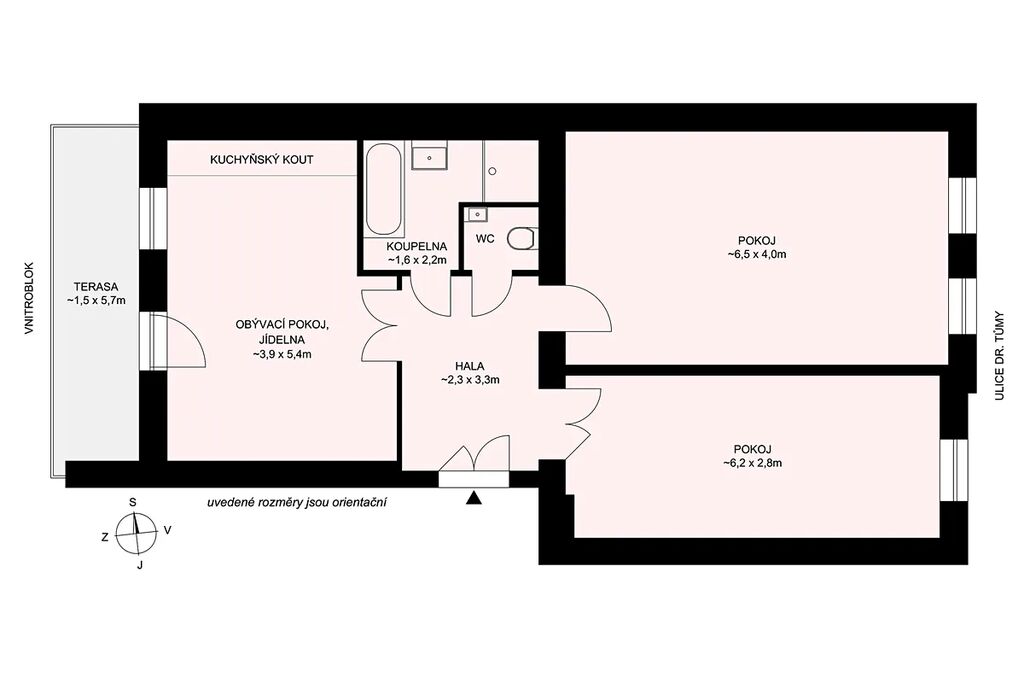
Exkluzivně nabízíme k prodeji velmi prostorný a světlý byt 3+kk o celkové užitné ploše 89 m² s terasou (9 m²) a sklepem (2 m²). K bytu náleží vlastní parkovací stání, které je součástí prodeje.

Bytová jednotka v osobním vlastnictví se nachází v 2. nadzemním podlaží zatepleného bytového domu s plastovými okny a výtahem. Výtahem se dostanete také až do suterénu, odkud je přístup ke sklepům.

Velkým bonusem je bezpochyby vlastní parkovací stání ve vnitrobloku o velikosti 13 m², což Vám ušetří starosti s parkováním. K parkovacímu stání do vnitrobloku se dostanete skrze vrata na dálkové ovládání přímo z ulice Dr. Tůmy.

Dispozice bytu se skládá z obývacího pokoje s novou kuchyňskou linkou, která je plně vybavena vestavnými spotřebiči. Dále pak ložnice, pokoj, prostorná vstupní chodba, koupelna se sprchovým koutem a samostatná toaleta.

U jednoho z pokojů, jehož rozloha činí 26 m² se nabízí tuto místnost rozdělit a rázem Vám vznikne bytová jednotka o dispozici 4+kk.

K bytu náleží prostorná terasa na kterou je přístup z obývacího pokoje. Terasa je orientována do klidné části dvora bytového domu a bez problému si zde posedíte s přáteli u grilu.

Nemovitost a její poloha se nachází pouhé 4 minuty chůze od náměstí Přemysla Otakara II. a zároveň v těsné blízkosti obchodního centra IGY. Během pár minut se také napojíte na sít cyklostezek.

Lokalita nabízí kompletní občanskou vybavenost – obchody, školy, školky, zdravotnická zařízení, restaurace i sportoviště. V bezprostřední blízkosti naleznete také zastávky MHD.

Opravdu velkým benefitem je kombinace klidného bydlení s výbornou dostupností do centra města.

Pro více informací nás neváhejte kontaktovat.
Budeme se těšit na prohlídky.

Parametry bytu

Cena
7 990 000 Kč /za nemovitost Spočítat hypotéku
Aktualizováno
1. 10. 2025
Adresa
Dr. Tůmy, České Budějovice 3
Stavba
Cihlová
Stav objektu
Dobrý
Patro
2.
Vybaveno
Ano
Lokalita objektu
Klidná část obce
Vlastnictví
Osobní
Užitná plocha
89 m2
Podlahová plocha
89 m2
Elektřina
230V
Plyn
Plynovod
Odpad
Veřejná kanalizace
Komunikace
Betonová, Zpevněná
Telekomunikace
Telefon, Internet
Doprava
Vlak, Silnice, MHD, Autobus
Voda
Vodovod
Zdroj topení
Plynový kotel
Zdroj teplé vody
Plynový kotel
Sklep
Terasa
Výtah
Parkování

Kontaktovat makléře

Realitní kancelář

REMONST Development

Rudolfovská tř. 460/93, České Budějovice

Chystáte se prodat nemovitost?
Pomůžeme Vám!

Máte zájem o tento byt?

Tímto, v souladu s nařízením Evropského parlamentu a Rady (EU) 2016/679, v platném znění, prohlašuji, že mi je alespoň 16 let a uděluji tak svůj souhlas se zpracováním zadaných údajů (jméno, telefon, e-mail, ip adresa) společnosti B3 Technology, s.r.o., IČ: 07330600, se sídlem Novostavby 126/23, 435 11 Lom (správce dat), za účelem předání dotazu z tohoto formuláře Vámi vybranému inzerentovi a zpětného kontaktování mé osoby. Osobní údaje bude správce zpracovávat manuálně i automaticky přímo prostřednictvím svých zaměstnanců. Informace předané tímto formulářem budou uloženy v databázi správce maximálně po dobu 10 let. Odvolání souhlasu s uložením a zpracováním poskytnutých dat lze e-mailem na info@bydlisnami.cz. V případě podezření na neoprávněné použití Vámi poskytnutých údajů máte právo předat podnět k šetření Úřadu pro ochranu osobních údajů. Více informací
Chystáte se prodat nemovitost?
Pomůžeme Vám!

Inzerát si prohlédlo 1 lidí

Prodejce

Miroslav Klimeš St.

Miroslav Klimeš St.

Hlídací pes

Chcete dostávat emailem podobné nabídky prodeje bytů 3+kk v Českých Budějovicích?

Podobné nemovitosti