Prodej bytu 3+1, Horní Bříza, Sídlištní, 59 m2

Sídlištní, Horní Bříza

4 200 000 Kč /za nemovitost HYPOTÉKA od 18 771 Kč /za měsíc
Doporučené firmy v Horní Bříze

Podlahy

Stěhovací služby

Informace k bytu

Prodej bytu 3+1 v Horní Bříze s garáží a zahradou

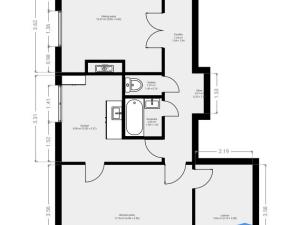
Nabízíme k prodeji byt o dispozici 3+1 a výměře 60 m² v katastrálním území Horní Bříza, ulice Sídlištní, okres Plzeň-sever.
Bytový dům prošel celkovou revitalizací – zateplení fasády, výměna plastových oken, nové rozvody tepla a vody v plastu a taktéž nové rozvody elektřiny v prostorech bytového domu. O dodávky tepla a teplé vody se stará místní teplárna, studená voda je z obecního řádu. Společné prostory domu jsou velmi dobře udržované, čisté a pravidelně malované.
Energetická náročnost budovy je ve třídě C a náklady na bydlení jsou nízké.

Bytová jednotka je v původním, ale udržovaném stavu s umakartovým jádrem. Byt je světlý, suchý a součástí jsou i dvě sklepní kóje.
Velkým benefitem této nabídky je řadová garáž o ploše 17 m², která se nachází přibližně 50 metrů od domu, a dále zahrada o výměře 86 m², v klidné části směrem k lesu, asi pět minut chůze od domu.

Okolí domu je příjemné a vhodné pro rodinné bydlení – před i za domem jsou dětská hřiště, v docházkové vzdálenosti je kompletní občanská vybavenost města Horní Bříza.
Mateřská škola je umístěna u lesa, cca 300 m od domu.

Horní Bříza má výbornou dopravní dostupnost do Plzně, ať už autem nebo veřejnou dopravou.

Pro více informací mě neváhejte kontaktovat.

Parametry bytu

Cena
4 200 000 Kč /za nemovitost Spočítat hypotéku
Aktualizováno
2. 10. 2025
Adresa
Sídlištní, Horní Bříza
ID
N397
Stavba
Cihlová
Stav objektu
Před rekonstrukcí
Patro
3. z 4
Typ objektu
Patrový
Lokalita objektu
Okraj obce
Vlastnictví
Osobní
Užitná plocha
59 m2
Podlahová plocha
60 m2
Plocha zahrady
86 m2
Třída energetické náročnosti
C - Úsporná
Elektřina
230V
Topení
Ústřední dálkové
Telekomunikace
Kabelová televize
Doprava
Silnice, MHD, Autobus
Voda
Vodovod
Garáž
Sklep
Výtah
Parkování

Kontaktovat makléře

Realitní kancelář

Logo MOJE Reality

MOJE Reality

Bezručova 153/9, Plzeň

Chystáte se prodat nemovitost?
Pomůžeme Vám!

Máte zájem o tento byt?

Tímto, v souladu s nařízením Evropského parlamentu a Rady (EU) 2016/679, v platném znění, prohlašuji, že mi je alespoň 16 let a uděluji tak svůj souhlas se zpracováním zadaných údajů (jméno, telefon, e-mail, ip adresa) společnosti B3 Technology, s.r.o., IČ: 07330600, se sídlem Novostavby 126/23, 435 11 Lom (správce dat), za účelem předání dotazu z tohoto formuláře Vámi vybranému inzerentovi a zpětného kontaktování mé osoby. Osobní údaje bude správce zpracovávat manuálně i automaticky přímo prostřednictvím svých zaměstnanců. Informace předané tímto formulářem budou uloženy v databázi správce maximálně po dobu 10 let. Odvolání souhlasu s uložením a zpracováním poskytnutých dat lze e-mailem na info@bydlisnami.cz. V případě podezření na neoprávněné použití Vámi poskytnutých údajů máte právo předat podnět k šetření Úřadu pro ochranu osobních údajů. Více informací
Chystáte se prodat nemovitost?
Pomůžeme Vám!

Inzerát si prohlédlo 1 lidí

Prodejce

Milan Brožek

Milan Brožek

Hlídací pes

Chcete dostávat emailem podobné nabídky prodeje bytů 3+1 v Horní Bříze?

Podobné nemovitosti