Prodej rodinného domu, Trutnov - Střední Předměstí, Oskara Nedbala, 206 m2

Oskara Nedbala, Střední Předměstí

5 900 000 Kč /za nemovitost HYPOTÉKA od 26 369 Kč /za měsíc

(Kupní cena vč. provize RK a právního servisu.)

Doporučené firmy v Trutnově

Informace k domu

Exkluzivně nabízíme k prodeji velký řadový dům v Trutnově - lokalitě Česká čtvrť, v ul. Oskara Nedbala. Rodinný dům je zděný, se 3 podlažími, s dispozicí obytných místností 4+1, se 2 lodžiemi a terasou, s garáží a technickým zázemím. Dům je prostorově větší (širší) než klasické řadové domy, a proto má celkovou výměru podlahové plochy 206 m2.

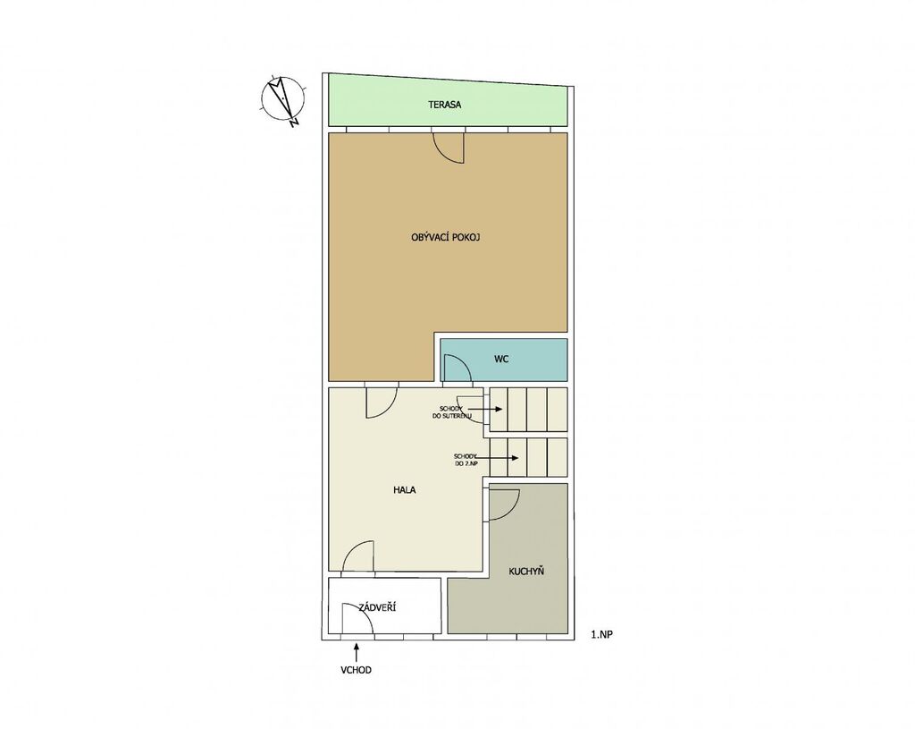
V 1. NP domu se nachází vchod, zádveří, hala, velký obývací pokoj se vstupem na terasu s krásným a na jih orientovaným výhledem na Trutnov, dále potom kuchyně, místnost wc a schodiště do 2. NP a suterénu.

Ve 2. NP jsou umístěny 2 pokoje se spojenou lodžií, velká ložnice také s lodžií, koupelna s vanou a wc, šatna a prádelna.

Suterén zahrnuje velkou garáž, 2 sklepy, 2 technické místnosti, prostor s přípravou pro saunu s ochlazovacím bazénkem, wc, koupelnu, pokoj se vstupem na zahradu za domem.

Dům je napojen na elektřinu, vodovod, plyn, kanalizaci. Vytápění domu a ohřev vody zajišťuje nový nástěnný kondenzační plynový kotel. PENB dosud nebyl vyhotoven, proto je dle zákona uváděna energetická třída G.

Pozemek je celkové výměry 273 m2. Za domem se nachází oplocená zahrada orientovaná na jih, je tedy celodenně zalita sluncem.

Dům je vhodný pro trvalé rodinné bydlení, je prostorný, s velkým množstvím úložného prostoru, s garáží a zahradou. Budova je v dobrém stavebně technickém stavu. Česká čtvrť je vyhledávanou lokalitou, dům je v klidné části, nedaleko centra města. V blízkosti domu se nachází zastávka MHD, základní škola, školka, lékař, sportoviště a další objekty občanské vybavenosti.

Právní servis, advokátní úschova kupní ceny, poplatky katastrálnímu úřadu a další rozsáhlé služby realitní kanceláře EVOLUCE jsou pro kupující zdarma. Rádi pro Vás též zdarma zajistíme financování koupě hypotečním úvěrem.

Parametry domu

Cena
5 900 000 Kč /za nemovitost Spočítat hypotéku
Poznámka k ceně
Kupní cena vč. provize RK a právního servisu.
Aktualizováno
5. 10. 2025
Adresa
Oskara Nedbala, Střední Předměstí
ID
CZK25136
Stavba
Cihlová
Stav objektu
Velmi dobrý
Typ objektu
Patrový
Druh objektu
Řadový
Užitná plocha
206 m2
Zastavěná plocha
92 m2
Podlahová plocha
206 m2
Plocha pozemku
273 m2
Plocha zahrady
108 m2
Elektřina
230V, 400V
Plyn
Plynovod
Odpad
Veřejná kanalizace
Topení
Ústřední plynové
Komunikace
Asfaltová
Doprava
Vlak, Silnice, MHD, Autobus
Voda
Vodovod
Topné těleso
Radiátory
Zdroj topení
Plynový kondenzační kotel
Zdroj teplé vody
Plynový kondenzační kotel
Balkon
Garáž
Terasa
Bezbarierový přístup
Parkování

Kontaktovat makléře

Máte zájem o tento dům?

Tímto, v souladu s nařízením Evropského parlamentu a Rady (EU) 2016/679, v platném znění, prohlašuji, že mi je alespoň 16 let a uděluji tak svůj souhlas se zpracováním zadaných údajů (jméno, telefon, e-mail, ip adresa) společnosti B3 Technology, s.r.o., IČ: 07330600, se sídlem Novostavby 126/23, 435 11 Lom (správce dat), za účelem předání dotazu z tohoto formuláře Vámi vybranému inzerentovi a zpětného kontaktování mé osoby. Osobní údaje bude správce zpracovávat manuálně i automaticky přímo prostřednictvím svých zaměstnanců. Informace předané tímto formulářem budou uloženy v databázi správce maximálně po dobu 10 let. Odvolání souhlasu s uložením a zpracováním poskytnutých dat lze e-mailem na info@bydlisnami.cz. V případě podezření na neoprávněné použití Vámi poskytnutých údajů máte právo předat podnět k šetření Úřadu pro ochranu osobních údajů. Více informací
Chystáte se prodat nemovitost?
Pomůžeme Vám!

Inzerát si prohlédlo 1 lidí

Prodejce

Mgr. Petr Čížek

Mgr. Petr Čížek

Hlídací pes

Chcete dostávat emailem podobné nabídky prodeje rodinných domů v Trutnově?

Podobné nemovitosti