Pronájem bytu 3+kk, Praha - Břevnov, Bělohorská, 64 m2 (ID: 2433980)

Bělohorská, Praha, Břevnov

26 500 Kč /za měsíc Získejte výhodnou HYPOTÉKU

(+ 6 800 Kč poplatky + provize RK Vratná kauce : 26 500,-Kč + služby)

Doporučené firmy v Praze 6

Stěhovací služby

Výkup a prodej starého nábytku

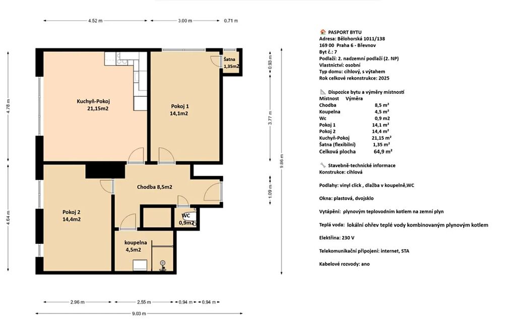
Informace k bytu

Nabízíme k dlouhodobému pronájmu, designový byt 3+kk o velikosti 64,90m², po právě dokončené rekonstrukci (vše je nové).


Byt se nachází ve 2.podlaží činžovního domu s výtahem a žádané lokalitě na Praze 6 – Břevnov, ul. Bělohorská. Byt má dispozici 3+kk a skládá se z předsíně, koupelny se sprchovým koutem , umyvadlem, otopným žebříkem a přípojkou na pračku. Toaleta je samostatně. Obývací pokoj je propojen s kuchyní, která je vybavena kuchyňskou linkou se spotřebiči (horkovzdušná el. trouba, indukční varná deska, myčka, odsavač par, kombinovaná lednice). Oba další pokoje jsou neprůchozí. Součástí bytu a jednoho z pokojů je komora (úložný prostor). Vytápění bytu i ohřev vody je zajištěno vlastním plynovým kotlem v bytě. Okna jsou plastová, dvojsklo. Na podlahách byla použita dlažba, vinyl click. K bytu nenáleží sklep. Byt je nekuřácký a bez domácích mazlíčků. V okolí veškerá občanská vybavenost : lokalita s výbornou dopravní dostupností (tramvajová zastávka U Kaštanu, přímo před domem) nedaleko Pražský hrad či Břevnovský klášter, možné spojení do centra i na letiště Václava Havla. V blízkosti sportovní vyžití na Ladronce, koupaliště Petynka , obora Hvězda, park Šafránka a jiné. Na metro Hradčanská je to pouhých 11 minut a Pražský hrad 7 minut MHD. V okolí veškerá občanská vybavenost – ZŠ a MŠ, restaurace, kavárny, obchody, Billa, pošta , nedaleko poliklinika Pod Marjánkou.


Provize RK: 26 500,-Kč


Cena pronájmu činí měsíčné:
pro 1 osobu: 26 500,- Kč + 6 800,- Kč
pro 2 osoby: 26 500,- Kč + 7 600,- Kč

Měsíční poplatky rozpis (nepřevádí se na nájemce) :
Elektřina: 2 500,- Kč / byt, 2 500,- Kč topení / byt, 800,- Kč voda / osoba
Paušál - nezúčtovatelné poplatky: 1 000,- Kč/byt (Úhrady za plnění spojená s užíváním Bytu jako jsou úklid společných prostor; odvoz komunálního odpadu; osvětlení společných prostor; provoz a čištění komínů; revize výtahu, spotřebičů a spalinových cest)



Vratná kauce : 26 500,-Kč + služby

Parametry bytu

Cena
26 500 Kč /za měsíc
Poznámka k ceně
+ 6 800 Kč poplatky + provize RK Vratná kauce : 26 500,-Kč + služby
Náklady na bydlení
6800
Aktualizováno
7. 10. 2025
Adresa
Bělohorská, Praha, Břevnov
Stavba
Cihlová
Stav objektu
Po rekonstrukci
Patro
2. z 5
Vybaveno
Částečně
Vlastnictví
Osobní
Užitná plocha
64 m2
Třída energetické náročnosti
D - Méně úsporná
Elektřina
230V
Zdroj teplé vody
Plynový kotel
Výtah

Kontaktovat makléře

Máte zájem o tento byt?

Tímto, v souladu s nařízením Evropského parlamentu a Rady (EU) 2016/679, v platném znění, prohlašuji, že mi je alespoň 16 let a uděluji tak svůj souhlas se zpracováním zadaných údajů (jméno, telefon, e-mail, ip adresa) společnosti B3 Technology, s.r.o., IČ: 07330600, se sídlem Novostavby 126/23, 435 11 Lom (správce dat), za účelem předání dotazu z tohoto formuláře Vámi vybranému inzerentovi a zpětného kontaktování mé osoby. Osobní údaje bude správce zpracovávat manuálně i automaticky přímo prostřednictvím svých zaměstnanců. Informace předané tímto formulářem budou uloženy v databázi správce maximálně po dobu 10 let. Odvolání souhlasu s uložením a zpracováním poskytnutých dat lze e-mailem na info@bydlisnami.cz. V případě podezření na neoprávněné použití Vámi poskytnutých údajů máte právo předat podnět k šetření Úřadu pro ochranu osobních údajů. Více informací
Chystáte se prodat nemovitost?
Pomůžeme Vám!

Inzerát si prohlédlo 1 lidí

Prodejce

Jana Haeringová

Jana Haeringová

Hlídací pes

Chcete dostávat emailem podobné nabídky pronájmu bytů 3+kk v Praze 6?

Podobné nemovitosti