Pronájem kanceláře, Ostrava - Slezská Ostrava, Občanská, 106 m2

Občanská, Slezská Ostrava

18 868 Kč /za měsíc Získejte výhodnou HYPOTÉKU

(+ služby dle spotřeby, kauce 2x nájem včetně služeb a DPH, odměna za zprostředkování 1x nájem + DPH)

Doporučené firmy v Ostravě

Informace k nemovitosti

Pronájem reprezentativních kanceláří s možností parkování, 106 m², ul. Občanská Slezská Ostrava

Pro domluvení termínu prohlídky kontaktujte makléře emailem.
K dlouhodobému pronájmu nabízíme ucelenou kancelářskou jednotku ideálně umístěnou v 1NP s možností zřízení skladu nebo spisovny v přízemí, možnost parkování na privátním parkovišti přímo u budovy. Velmi klidné a příjemné místo pro práci.
Budova se nachází v atraktivní, bezpečné a klidné lokalitě na ul. Občanská ve Slezské Ostravě v bezprostřední blízkosti centra Ostravy a u lesoparku bývalé haldy Ema.
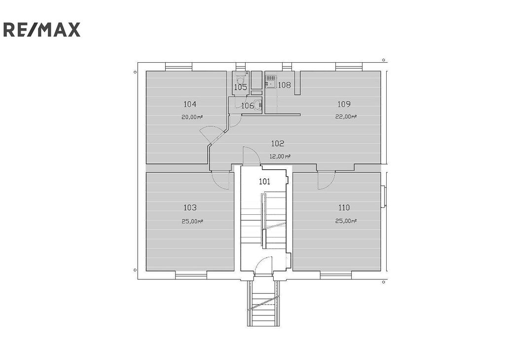
Kancelářské prostory o výměře 106 m² zahrnují:
-4 větší kanceláře od 24 m² do 19 m² v 1NP, ucelená kancelářská jednotka s vchodem,
- vstupní otevřená místnost s možností zřízení recepce,
-sociální zařízení WC s umyvadlem, samostatná kuchyňka,
-vyhrazené parkování,
-IT rozvaděč a rozvody slaboproudu do všech místností,
-instalován elektronický zabezpečovací systém EZS 24/7 napojeným na pult ochrany.
Možnost vyhrazených parkovací stání na privátním parkovišti přímo u budovy.
V přízemí budovy je možno si pronajmout další nebytové místnosti-sklady od 22 do 28 m² pro skladování, spisovnu nebo jiné účely.
Objekt je po rekonstrukci, nový plynový kondenzační kotel s automatickou regulací, moderní LED podhledové osvětlení, celkově nízká spotřeba nákladů na energie.
Další výhody nabízeného objektu:
• výborná dopravní dostupnost, v blízkosti MHD, ale současně velmi klidná a zelená lokalita, v okolí nové rezidenční budovy,
• možnost klientských úprav,
• údržbu a úklid společných prostor a parkoviště zajišťuje pronajímatel,
• v blízkosti restaurace s obědovým menu, supermarket, služby,
• výborná dostupnost do centra Ostravy na výpadovky a na dálnici.

Parametry nemovitosti

Cena
18 868 Kč /za měsíc
Poznámka k ceně
+ služby dle spotřeby, kauce 2x nájem včetně služeb a DPH, odměna za zprostředkování 1x nájem + DPH
Aktualizováno
12. 10. 2025
Adresa
Občanská, Slezská Ostrava
ID
344-NP00531
Stavba
Smíšená
Stav objektu
Dobrý
Vybaveno
Ne
Užitná plocha
106 m2
Třída energetické náročnosti
E - Nehospodárná

Kontaktovat makléře

Máte zájem o tuto nemovistost?

Tímto, v souladu s nařízením Evropského parlamentu a Rady (EU) 2016/679, v platném znění, prohlašuji, že mi je alespoň 16 let a uděluji tak svůj souhlas se zpracováním zadaných údajů (jméno, telefon, e-mail, ip adresa) společnosti B3 Technology, s.r.o., IČ: 07330600, se sídlem Novostavby 126/23, 435 11 Lom (správce dat), za účelem předání dotazu z tohoto formuláře Vámi vybranému inzerentovi a zpětného kontaktování mé osoby. Osobní údaje bude správce zpracovávat manuálně i automaticky přímo prostřednictvím svých zaměstnanců. Informace předané tímto formulářem budou uloženy v databázi správce maximálně po dobu 10 let. Odvolání souhlasu s uložením a zpracováním poskytnutých dat lze e-mailem na info@bydlisnami.cz. V případě podezření na neoprávněné použití Vámi poskytnutých údajů máte právo předat podnět k šetření Úřadu pro ochranu osobních údajů. Více informací
Chystáte se prodat nemovitost?
Pomůžeme Vám!

Inzerát si prohlédlo 0 lidí

Prodejce

MSc. Michaela Schwarzová BA

MSc. Michaela Schwarzová BA

Hlídací pes

Chcete dostávat emailem podobné nabídky pronájmu kanceláří v Ostravě?

Podobné nemovitosti