Na Poříčí, Praha 1 - Nové Město
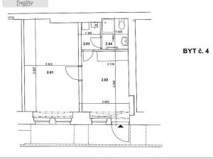
Nabízíme k dlouhodobému pronájmu krásný, rekonstruovaný byt 1+1 o celkové výměře 36m² v Praze 1, ulice Na Poříčí. Byt se nachází v 1. patře rezidenčního domu po kompletní rekonstrukci, s výtahem a čipovým systémem pro vstupy. Byt je částečně zařízený, vybavený kvalitní kuchyňskou linkou se všemi spotřebiči (myčka, sklokeramická deska, trouba, lednice, odsavač par). Koupelna se sprchových koutem, umyvadlem a s WC. Byt je díky svému umístění velmi klidný a nabízí pohodlné bydlení v samém centru hlavního města. 
Při rekonstrukci domu i bytu byly použity nadstandardní materiály , úsporný kotel pro topení a ohřev teplé vody, který je samostatný pro tento byt. 
Citlivě renovovaný historický dům tak spojuje příjemné bydlení, nadstandardní dopravní obslužnost, pěší dostupnost do centra Prahy i blízkost obchodů, restaurací a služeb. Volné od 1.11.2025
Měsíční náklady 1650/os. /měs. + spotřeba el. energie a plynu.
Žádáme zájemce o krátký informační email a představení vč. počtu osob.
Máte zájem o tento byt?
Inzerát si prohlédlo 14 lidí
 
                                Irena Kučerová
Chcete dostávat emailem podobné nabídky pronájmu bytů 1+1 v Praze 1?