Prodej pozemku pro bydlení, Kozlov, 1381 m2

Kozlov

3 300 Kč /za metr čtvereční HYPOTÉKA od 15 Kč /za měsíc
Doporučené firmy v Kozlově

Informace k pozemku

Chcete koupit pozemek a obratem začít stavět? Zde je díky platnému stavebnímu povolení taková příležitost.

Nabízíme k prodeji rovinatý pozemek v obci Kozlov u Jihlavy. Jedná se o velmi atraktivní lokalitu, která kombinuje klid venkovského prostředí s výbornou dostupností do krajského města Jihlava, kam se pohodlně dostanete během několika minut jízdy. To samé platí i o nájezdu na dálnici D1. Pozemek se nachází v obci s funkčním zázemím najdete zde mateřskou a základní školu, hospodu, obchod nebo sportovní areál.

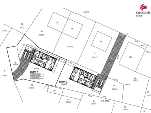
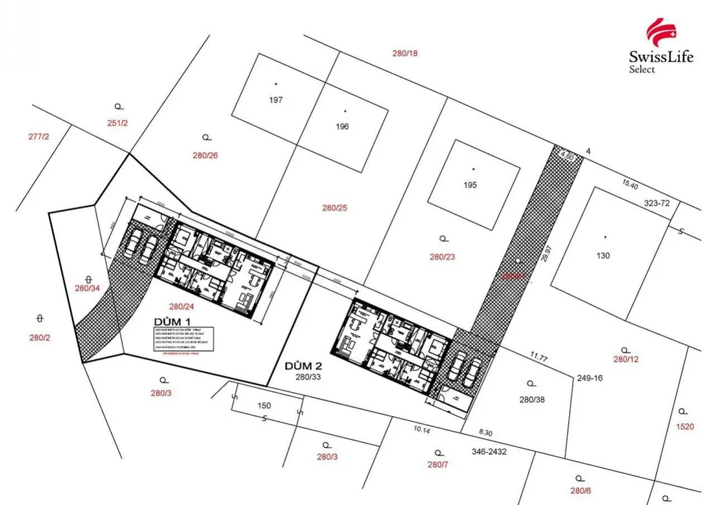
Veškeré inženýrské sítě se nacházejí na hranici pozemku, což výrazně usnadňuje napojení a snižuje náklady na budoucí výstavbu. Samotný pozemek je rovinatý, s kvalitní půdou a nabízí ideální podmínky pro výstavbu rodinného domu. Možností je také na již rozděleném pozemku postavit dva rodinné domy s tím, že každý by měl svoje napojení na sítě a svůj příjezd, jak je patrno z mapky a přiložené studie.

Na pozemku je k dispozici dřevěná kůlna k uložení nářadí, což se na stavbě vždy hodí.

Kozlov je vyhledávanou lokalitou díky své poloze, příjemné atmosféře a okolní přírodě. Místo je ideální pro ty, kteří hledají klidné bydlení s veškerým komfortem a rychlým spojením do města.

Pro více informací nebo sjednání prohlídky nás neváhejte kontaktovat. Rádi Vám poskytneme veškeré detaily a pomůžeme i s kompletním právním a finančním servisem.

Parametry pozemku

Cena
3 300 Kč /za metr čtvereční Spočítat hypotéku
Aktualizováno
16. 4. 2026
Adresa
Kozlov
ID
24653
Plocha pozemku
1381 m2
Plyn
Plynovod
Odpad
Veřejná kanalizace
Voda
Vodovod
Bezbarierový přístup

Kontaktovat makléře

Máte zájem o tento pozemek?

Tímto, v souladu s nařízením Evropského parlamentu a Rady (EU) 2016/679, v platném znění, prohlašuji, že mi je alespoň 16 let a uděluji tak svůj souhlas se zpracováním zadaných údajů (jméno, telefon, e-mail, ip adresa) společnosti B3 Technology, s.r.o., IČ: 07330600, se sídlem Novostavby 126/23, 435 11 Lom (správce dat), za účelem předání dotazu z tohoto formuláře Vámi vybranému inzerentovi a zpětného kontaktování mé osoby. Osobní údaje bude správce zpracovávat manuálně i automaticky přímo prostřednictvím svých zaměstnanců. Informace předané tímto formulářem budou uloženy v databázi správce maximálně po dobu 10 let. Odvolání souhlasu s uložením a zpracováním poskytnutých dat lze e-mailem na info@bydlisnami.cz. V případě podezření na neoprávněné použití Vámi poskytnutých údajů máte právo předat podnět k šetření Úřadu pro ochranu osobních údajů. Více informací
Chystáte se prodat nemovitost?
Pomůžeme Vám!

Inzerát si prohlédlo 12 lidí

Prodejce

Petr Mašek

Petr Mašek

Hlídací pes

Chcete dostávat emailem podobné nabídky prodeje pozemků pro bydlení v Kozlově (okr. Jihlava)?

Podobné nemovitosti