Pronájem rodinného domu, Olomouc, Větrná, 127 m2

Větrná, Olomouc, Nedvězí

33 000 Kč /za měsíc Získejte výhodnou HYPOTÉKU
Doporučené firmy v Olomouci

Informace k domu

Exkluzivně nabízíme k pronájmu rodinný dům v klidné a zajímavé městské části Nedvězí, na ulici Větrná.

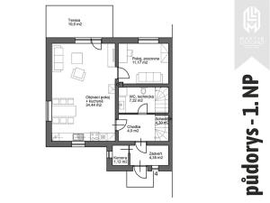
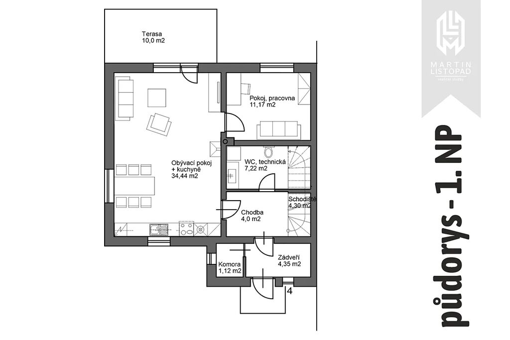
Rodinný dům je nízkoenergetická stavba v tradičním stylu, umístěním řešena jako dvojdomek se sedlovou střechou. Okna a vstupní dveře jsou plastová s trojskly. Dům je dispozičně řešen jako 5+kk o celkové užitné ploše 127 m² + venkovní kryté parkovací stání pro dva automobily. V přízemí se nachází obývací pokoj s kuchyňským koutem, pracovna, technická místnost se sprchovým koutem, umyvadlem a WC, zádveří, šatna a schodiště. V druhém nadzemním podlaží jsou situovány 2 pokoje, ložnice a prostorná koupelna se sprchovým koutem, vanou, umyvadlem a WC. Nemovitost má následující zařízení interiérů: kuchyňskou linku osazenou kvalitními vestavěnými spotřebiči (myčka, lednice s mrazákem, indukční sklokeramická deska, elektrická a mikrovlnná trouba, plovoucí podlahy kombinované s dlažbou, moderní zařizovací prvky koupelen, nadstandardní interiérové dveře vč. zárubní a vestavěné skříně v pokojích. Topení je teplovodní radiátorové v kombinaci s kondenzačním plynovým kotlem, v koupelně a technické místnosti jsou umístěny otopné žebříky.

Dům stojí na samostatném pozemku o velikosti 385 m². Součástí terénních úprav jsou zpevněné plochy ze zámkové dlažby pro parkování dvou automobilů, příjezdová cesta k parkovacímu stání, chodník k hlavnímu vstupu do domu a krytá terasa se vstupem do obývacího pokoje. Zahrada bude v průběhu měsíce srpna zatravněna a osazena zelení.
Nabízíme vám moderní bydlení v nízkoenergetickém rodinném domě ve velmi klidné a zajímavé lokalitě s dojezdovou vzdáleností 5 minut do centra Olomouce, v blízkosti hlavního dálničního tahu na Brno, Ostravu a Hradec Králové.

Dům se pronajímá jako částečně zařízený a bude připraven k nastěhování 01.11.2025.

Nájemné činí: 33.000,- Kč
Zálohy na energie a služby: převádí se na nájemce
Vratná kauce 50.000,- Kč
Provize RK 35.000,- Kč + DPH

Pro více informací kontaktujte makléře.

Parametry domu

Cena
33 000 Kč /za měsíc
Aktualizováno
14. 10. 2025
Adresa
Větrná, Olomouc, Nedvězí
ID
PN-251001
Stavba
Cihlová
Stav objektu
Novostavba
Užitná plocha
127 m2
Plocha pozemku
385 m2
Garáž

Kontaktovat makléře

Máte zájem o tento dům?

Tímto, v souladu s nařízením Evropského parlamentu a Rady (EU) 2016/679, v platném znění, prohlašuji, že mi je alespoň 16 let a uděluji tak svůj souhlas se zpracováním zadaných údajů (jméno, telefon, e-mail, ip adresa) společnosti B3 Technology, s.r.o., IČ: 07330600, se sídlem Novostavby 126/23, 435 11 Lom (správce dat), za účelem předání dotazu z tohoto formuláře Vámi vybranému inzerentovi a zpětného kontaktování mé osoby. Osobní údaje bude správce zpracovávat manuálně i automaticky přímo prostřednictvím svých zaměstnanců. Informace předané tímto formulářem budou uloženy v databázi správce maximálně po dobu 10 let. Odvolání souhlasu s uložením a zpracováním poskytnutých dat lze e-mailem na info@bydlisnami.cz. V případě podezření na neoprávněné použití Vámi poskytnutých údajů máte právo předat podnět k šetření Úřadu pro ochranu osobních údajů. Více informací
Chystáte se prodat nemovitost?
Pomůžeme Vám!

Inzerát si prohlédlo 0 lidí

Prodejce

Martin Listopad

Martin Listopad

Hlídací pes

Chcete dostávat emailem podobné nabídky pronájmu rodinných domů v Olomouci?

Podobné nemovitosti