Prodej rodinného domu, Uherské Hradiště, Na Hraničkách, 235 m2

Na Hraničkách, Uherské Hradiště

Cena na vyžádání /za nemovitost Získejte výhodnou HYPOTÉKU

(cena k jednání, včetně poplatků, včetně provize, včetně právního servisu)

Doporučené firmy v Uherském Hradišti

Informace k domu

Na prodej dvě hrubé stavby, luxusní prostorné dvoupodlažní domy ve vyhledávané vilové lokalitě Na Hraničkách v Mařaticích. Jedná se o funkcionalistické minimalistické vily inspirované stylem Le Corbusiera, které spojují moderní technologie, nadčasovou architekturu a promyšlené dispoziční řešení.

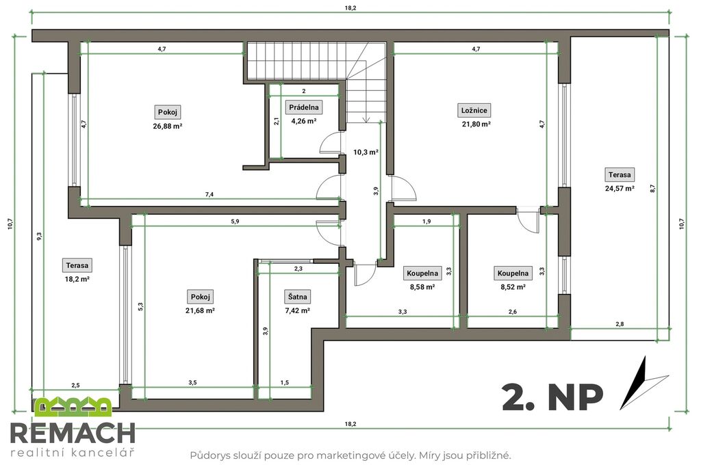
Základní údaje:
• Zastavěná plocha: 171 m²
• Celková plocha pozemku: 327 m²
• Zahrada za domem: 156 m²
• Plocha pro parkování před domem: 80 m² (až pro tři vozy)

Dispozice domu:

Přízemí
• 95 m² - obytný prostor, kuchyně, jídelna, zázemí, toaleta
• 40 m² dvougaráž (s nízkým spádem 1,5 %, vhodná i pro supersporty)
• 30 m² terasa

1. patro
• 100 m² obytné plochy - 3 pokoje, 2x koupelna se sprchou i vanou, 2x šatna, prádelna, žehlírna
• zadní terasa 25 m² (u hlavní ložnice)
• přední terasa 18 m² (přístupná ze dvou pokojů)

Vybavení a standard:
Dům je velkoryse prostorově navržen. Každý pokoj má vlastní šatnu s plánovanými vestavěnými skříněmi, nechybí dvě koupelny (každá s vanou i sprchou), prádelna a žehlírna.
Stropy se světlou výškou 2,65 m nabídnou infinity podhled – prosklení od podlahy ke stropu a interiérové dveře o výšce 2,3 m. Do podhledu (výška 30 cm) budou integrovány rozvody rekuperace a klimatizace s tichým potrubím.
Příprava je i pro prosklený krb (ve tvaru U nebo L) a ustupující podlaží s krytou terasou. Na střeše bude umístěno tepelné čerpadlo v akustickém krytu.

Technologie a konstrukce
Domy jsou navrženy jako nízkoenergetické – obvodové zdivo tvoří tvárnice Porotherm 38T Profi uložené na maltové lože, doplněné o termo omítku.

Lokalita a výhody
Jedná se o jeden z posledních volných pozemků ve vilové části Mařatic – klidné, bezpečné a žádané čtvrti.

• dům stojí na kopci - rozhled a nehrozí záplavy
• 12–15 minut chůzí do centra města
• 300 metrů od domu škola, školka, obchod a sportoviště, autobusová zastávka oběma směry

Stav výstavby:
Do poloviny listopadu bude dokončena hrubá stavba.

Tento dům představuje jedinečné spojení luxusu, funkčnosti a moderního designu v jedné z nejatraktivnějších lokalit města. PENB s třídou B a hodnotou 73 kWh/m² byla počítána bez rekuperace. Po instalaci rekuperace bude výsledná hodnota A.

V ceně 14.900.000 Kč je pozemek, hrubá stavba, včetně přípojek a včetně vydaného a právoplatného stavebního povolení a stavební dokumentace, včetně právního servisu a provize. V případě přání budoucího klienta je možná dohoda se stavební firmou kompletní dokončení celého domu a pan architekt provede veškeré zabezpečení a stoprocentní dodělání stavby přivede až ke kolaudaci.

Parametry domu

Cena
Cena na vyžádání Spočítat hypotéku
Poznámka k ceně
cena k jednání, včetně poplatků, včetně provize, včetně právního servisu
Aktualizováno
10. 11. 2025
Adresa
Na Hraničkách, Uherské Hradiště
ID
03352
Stavba
Cihlová
Stav objektu
Ve výstavbě
Typ objektu
Patrový
Druh objektu
Rohový
Lokalita objektu
Klidná část obce
Užitná plocha
235 m2
Zastavěná plocha
171 m2
Plocha pozemku
327 m2
Plocha zahrady
156 m2
Třída energetické náročnosti
A - Mimořádně úsporná
Ukazatel energetické náročnosti
43 kWh/m2 za rok
Elektřina
230V, 400V
Odpad
Veřejná kanalizace
Komunikace
Betonová, Asfaltová
Doprava
Vlak, Dálnice, Silnice, MHD, Autobus
Voda
Vodovod
Balkon
Garáž
Terasa
Parkování
Nízkoenergetický

Kontaktovat makléře

Realitní kancelář

Logo REMACH s.r.o.

REMACH s.r.o.

Palackého náměstí 175, Uherské Hradiště

Chystáte se prodat nemovitost?
Pomůžeme Vám!

Máte zájem o tento dům?

Tímto, v souladu s nařízením Evropského parlamentu a Rady (EU) 2016/679, v platném znění, prohlašuji, že mi je alespoň 16 let a uděluji tak svůj souhlas se zpracováním zadaných údajů (jméno, telefon, e-mail, ip adresa) společnosti B3 Technology, s.r.o., IČ: 07330600, se sídlem Novostavby 126/23, 435 11 Lom (správce dat), za účelem předání dotazu z tohoto formuláře Vámi vybranému inzerentovi a zpětného kontaktování mé osoby. Osobní údaje bude správce zpracovávat manuálně i automaticky přímo prostřednictvím svých zaměstnanců. Informace předané tímto formulářem budou uloženy v databázi správce maximálně po dobu 10 let. Odvolání souhlasu s uložením a zpracováním poskytnutých dat lze e-mailem na info@bydlisnami.cz. V případě podezření na neoprávněné použití Vámi poskytnutých údajů máte právo předat podnět k šetření Úřadu pro ochranu osobních údajů. Více informací
Chystáte se prodat nemovitost?
Pomůžeme Vám!

Inzerát si prohlédlo 64 lidí

Prodejce

Ing. Michal Macháček

Ing. Michal Macháček

Hlídací pes

Chcete dostávat emailem podobné nabídky prodeje rodinných domů v Uherském Hradišti?

Podobné nemovitosti