Pronájem bytu 3+kk, Praha - Dejvice, Komornická, 78 m2

Komornická, Dejvice - Praha 6

32 400 Kč /za měsíc Získejte výhodnou HYPOTÉKU

(vratná jistota, náklady na bydlení 6.000,-Kč poplatek za podnájem)

Doporučené firmy v Praze 6

Stěhovací služby

Výkup a prodej starého nábytku

Informace k bytu

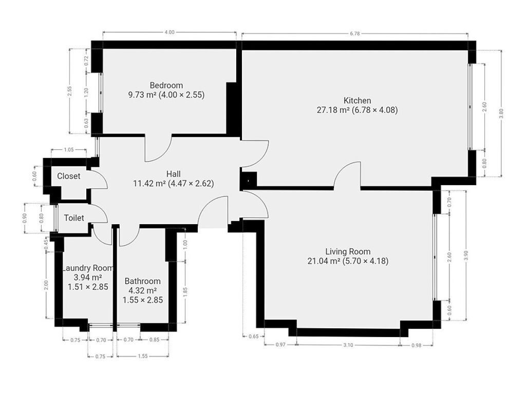
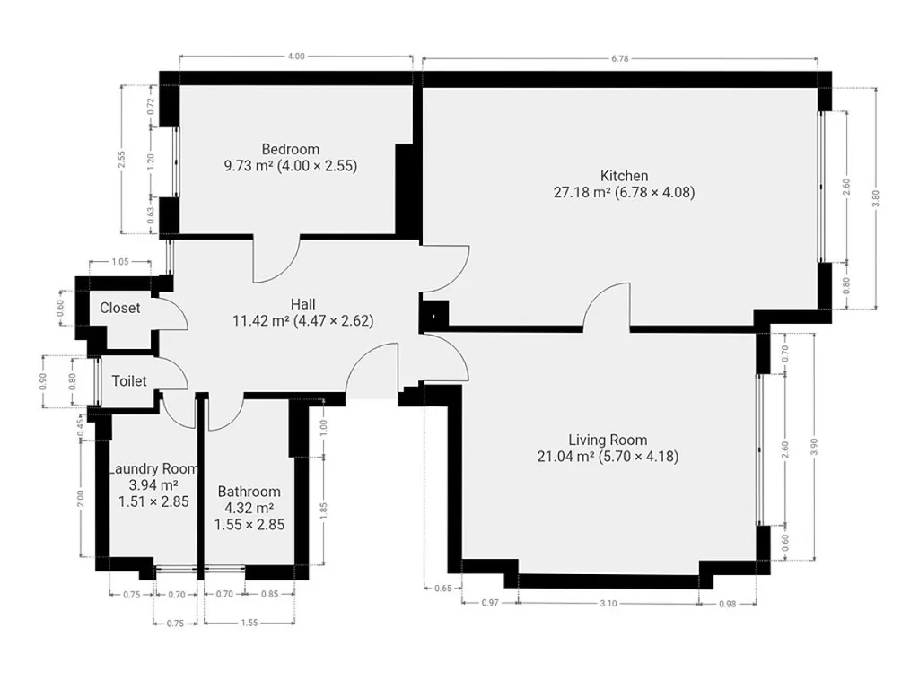
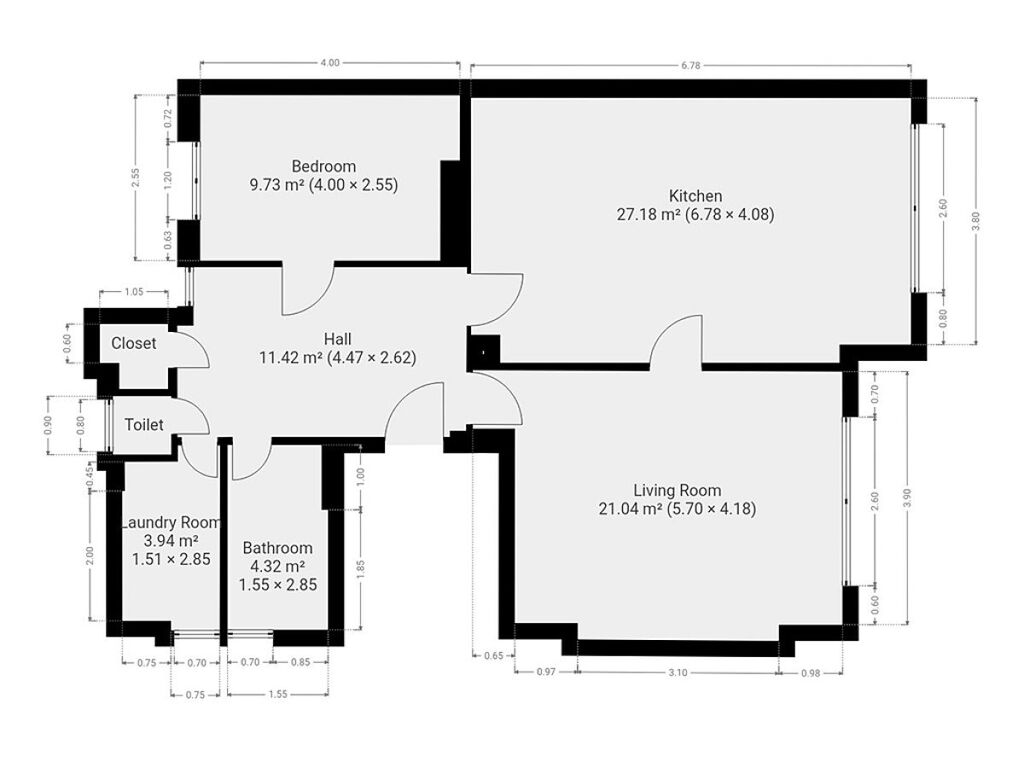
K dlouhodobému pronájmu nabízíme moderní a světlý byt 3+kk v klidné a atraktivní lokalitě Praha 6 – Dejvice. Byt o celkové ploše 78 m² se nachází v přízemí udržovaného domu bez výtahu. Součástí bytu je praktický sklep a parkovací stání na oploceném pozemku.

Byt je nabízen nezařízený, což umožňuje zařídit si interiér podle vlastního vkusu. Kuchyň je vybavena indukční varnou deskou, myčkou, elektrickou troubou, digestoří a dostatkem úložného prostoru. Obývací část nabízí světlý a prostorný prostor vhodný jak pro sedací soupravu, tak například pro jídelní kout. K dispozici je také jeden samostatný pokoj, který může sloužit jako ložnice. Koupelna je vybavena vanou a umyvadlem, toaleta je samostatná. Součástí bytu je i praktická šatna či úložná místnost.

V okolí domu je kompletní občanská vybavenost – obchod s potravinami Žabka, pošta, školy a školky, sportoviště, restaurace a lékařská péče. Pro volný čas je ideální Přírodní park Šárka, jen pár minut chůze od domu. Výbornou dopravní dostupnost zajišťují blízké zastávky autobusů a tramvají.

Byt je k nastěhování ihned.

Energetická třída: G (průkaz nedodán).

Parametry bytu

Cena
32 400 Kč /za měsíc
Poznámka k ceně
vratná jistota, náklady na bydlení 6.000,-Kč poplatek za podnájem
Aktualizováno
7. 11. 2025
Adresa
Komornická, Dejvice - Praha 6
ID
N6850
Stavba
Kamenná
Stav objektu
Po rekonstrukci
Vybaveno
Ne
Typ objektu
Patrový
Lokalita objektu
Klidná část obce
Vlastnictví
Osobní
Užitná plocha
78 m2
Podlahová plocha
78 m2
Třída energetické náročnosti
G - Mimořádně nehospodárná
Elektřina
230V
Topení
Lokální plynové
Doprava
Silnice, MHD, Autobus
Sklep
Výtah
Bezbarierový přístup
Parkování

Kontaktovat makléře

Máte zájem o tento byt?

Tímto, v souladu s nařízením Evropského parlamentu a Rady (EU) 2016/679, v platném znění, prohlašuji, že mi je alespoň 16 let a uděluji tak svůj souhlas se zpracováním zadaných údajů (jméno, telefon, e-mail, ip adresa) společnosti B3 Technology, s.r.o., IČ: 07330600, se sídlem Novostavby 126/23, 435 11 Lom (správce dat), za účelem předání dotazu z tohoto formuláře Vámi vybranému inzerentovi a zpětného kontaktování mé osoby. Osobní údaje bude správce zpracovávat manuálně i automaticky přímo prostřednictvím svých zaměstnanců. Informace předané tímto formulářem budou uloženy v databázi správce maximálně po dobu 10 let. Odvolání souhlasu s uložením a zpracováním poskytnutých dat lze e-mailem na info@bydlisnami.cz. V případě podezření na neoprávněné použití Vámi poskytnutých údajů máte právo předat podnět k šetření Úřadu pro ochranu osobních údajů. Více informací
Chystáte se prodat nemovitost?
Pomůžeme Vám!

Inzerát si prohlédlo 16 lidí

Prodejce

Miloslava Kačerová

Miloslava Kačerová

Hlídací pes

Chcete dostávat emailem podobné nabídky pronájmu bytů 3+kk v Praze 6?

Podobné nemovitosti