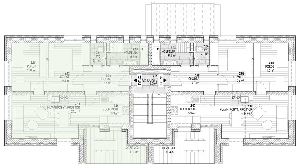
Prodej bytu 3+kk, Kunčice nad Labem, 88 m2 (ID: 2442707)

Kunčice nad Labem

5 990 000 Kč /za nemovitost HYPOTÉKA od 26 772 Kč /za měsíc
Doporučené firmy v Kunčicích nad Labem

Informace k bytu

Nabízíme k prodeji moderní a útulný byt 3 + kk 88,6m2 s lodžií 11,4m2 v novostavbě domu v obci Kunčice nad Labem, ideální pro rodiny s dětmi. Nachází se v klidné lokalitě, pouhých 5 minut autem od Vrchlabí, a nabízí jedinečné spojení pohodlí a přírody, s blízkostí lyžařských středisek Herlíkovice a Špindlerův Mlýn, či Černý Důl nebo Janské Lázně v dojezdové vzdálenosti.

Byt o celkové ploše 88 m² se nachází ve druhém patře domu a poskytuje dostatek prostoru pro každodenní rodinný život. Pokoje přirozeně vytváří prostor pro hravost a fantazii vašich nejmenších, zatímco obývací místnost s moderní architekturou a příjemným prosvětlením vytváří ideální prostředí pro rodinné chvíle. V bytě je příprava na kuchyňskou linku.
S vybavením bytu vám rádi pomůžeme.
Pro uložení sportovního či jiného vybavení má byt k dispozici prostorný sklep a parkovací místo pro vůz máte na privátním parkovišti na pozemku před domem.

Jedním z největších benefitů této nemovitosti je rozsáhlá zahrada, kde děti mohou běhat, hrát si a objevovat přírodu, zatímco rodiče mohou trávit čas a užívat si klid a pohodu. Zahrada je dostatečně prostorná pro pořádání rodinných oslav a setkání s přáteli.
Dům je vytápěn moderním tepleným čerpadlem, které zajišťuje plný komfort během celého roku.

Lokalita nabízí možnosti koupání v Labi, které navazuje přímo na pozemek, což je dokonalá aktivita pro letní dny. A okolí nabízí širokou škálu příležitostí pro výlety a rekreaci v přírodě. Ideální místo pro rodiny hledající bezpečné a přátelské prostředí pro své děti, či vás - sportovně laděné cyklisty, turisty nebo lyžaře.

V případě zájmu o prohlídku nás neváhejte kontaktovat.

Parametry bytu

Cena
5 990 000 Kč /za nemovitost Spočítat hypotéku
Aktualizováno
27. 10. 2025
Adresa
Kunčice nad Labem
ID
17655
Stavba
Cihlová
Stav objektu
Novostavba
Patro
2. z 2
Vybaveno
Ne
Lokalita objektu
Klidná část obce
Vlastnictví
Osobní
Užitná plocha
88 m2
Zastavěná plocha
88 m2
Podlahová plocha
88 m2
Plocha zahrady
400 m2
Třída energetické náročnosti
B - Velmi úsporná
Sklep
Lodžie
Parkování

Kontaktovat makléře

Realitní kancelář

Logo QARA, s.r.o.

QARA, s.r.o.

Šafaříkova 201/17, Praha

Chystáte se prodat nemovitost?
Pomůžeme Vám!

Máte zájem o tento byt?

Tímto, v souladu s nařízením Evropského parlamentu a Rady (EU) 2016/679, v platném znění, prohlašuji, že mi je alespoň 16 let a uděluji tak svůj souhlas se zpracováním zadaných údajů (jméno, telefon, e-mail, ip adresa) společnosti B3 Technology, s.r.o., IČ: 07330600, se sídlem Novostavby 126/23, 435 11 Lom (správce dat), za účelem předání dotazu z tohoto formuláře Vámi vybranému inzerentovi a zpětného kontaktování mé osoby. Osobní údaje bude správce zpracovávat manuálně i automaticky přímo prostřednictvím svých zaměstnanců. Informace předané tímto formulářem budou uloženy v databázi správce maximálně po dobu 10 let. Odvolání souhlasu s uložením a zpracováním poskytnutých dat lze e-mailem na info@bydlisnami.cz. V případě podezření na neoprávněné použití Vámi poskytnutých údajů máte právo předat podnět k šetření Úřadu pro ochranu osobních údajů. Více informací
Chystáte se prodat nemovitost?
Pomůžeme Vám!

Inzerát si prohlédlo 1 lidí

Prodejce

Hana Křemenová

Hana Křemenová

Hlídací pes

Chcete dostávat emailem podobné nabídky prodeje bytů 3+kk v Kunčicích nad Labem?

Podobné nemovitosti