Prodej rodinného domu, Chlístovice, 200 m2 (ID: 2443168)

Chlístovice

5 990 000 Kč /za nemovitost HYPOTÉKA od 26 772 Kč /za měsíc
Doporučené firmy v Chlístovicích

Informace k domu

Chlístovice, prodej pozemku s rozestavěným rodinným domem před kolaudací

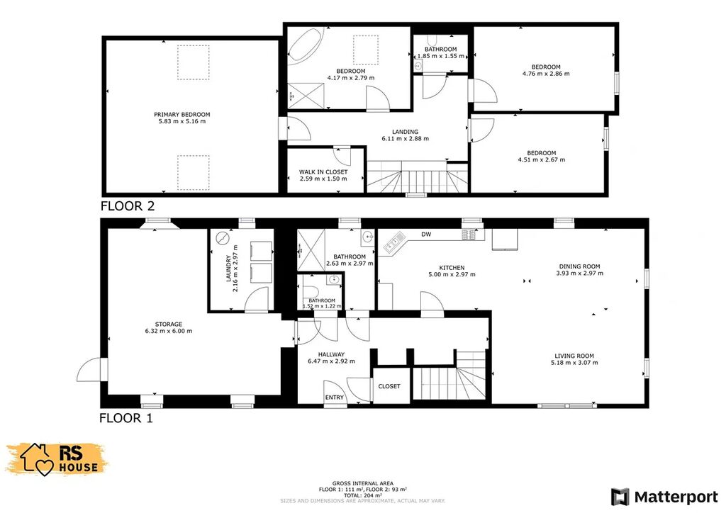
Uvažujete nad výstavbou domu, ale nechce se Vám čekat na stavební povolení? Rádi byste se brzy stěhovali, avšak nechcete se ochudit o dokončení podle svého gusta? V tom případě mám pro Vás řešení. Nově mám v nabídce tento pozemek s rozestavěným, téměř dokončeným rodinným domem o dispozici 5+kk před kolaudací (Stavební povolení s termínem dokončení stavby do 31.12.2025).

Rodinný dům je postaven místo původního domu, jehož obytná část byla zbořena a vystavěna nově z dutých cihel. Z původního stavení bylo ponecháno sklepení a navazující neobytné části jako stodola, technické místnosti a jeden obytný pokoj v patře. V nové části je velký obývací pokoj s kuchyňským koutem, 2 koupelny, 2 toalety, dva pokoje a šatna.

Interiéry jsou téměř dokončeny s výjimkou světel, kuchyňské linky (nyní je umístěna pouze dočasná), zábradlí u schodiště, podlahových lišt a výmalby klubovny a prádelny. V exteriéru je zapotřebí dokončit barevnou finální vrstvu fasády a hromosvod. Střecha je z poloviny s novými krovy a pálenými taškami, druhá polovina má ponechány trámy, které byli v hezkém stavu, včetně betonových tašek.

Vytápění v nemovitosti je řešeno podlahovým topením s tepelným čerpadlem umístěným za domem, aby nenarušovalo klidnou atmosféru na zahradě. Dům je připojen na obecní vodovod a kanalizaci, navíc využívá vlastní studny pro splachování a zalévání na zahradě (v domě jsou dva vodovodní okruhy). Elektřina je vedena v mědi a voda a odpady v plastu. Dům je zateplen polystyrenem o tloušťce 10 cm, průkaz náročnosti budovy PENB: skupina C. Náklady na provoz jsou přibližně 7.300,- Kč (elektřina 6.280 Kč, voda 420 Kč, internet 589 Kč).

Obec Chlístovice leží 12 km od Kutné Hory a 17 km od Čáslavi. V kraji, který vždy lákal k romantickým procházkám a výletům, leží obec v nadmořské výšce 392 metrů a žije zde 755 stálých obyvatel (včetně deseti satelitními osadami). V obci se nachází potraviny a hostinec. Vše ostatní naleznete v přilehlých obcích, kam jezdí autobusové spoje. Dojezd do Prahy autem je po dálnici přibližně za hodinu.

V případě dalších dotazů, či zájmu o prohlídku se na mě neváhejte obrátit.

Parametry domu

Cena
5 990 000 Kč /za nemovitost Spočítat hypotéku
Aktualizováno
16. 10. 2025
Adresa
Chlístovice
ID
000076
Stavba
Cihlová
Stav objektu
Ve výstavbě
Vybaveno
Částečně
Druh objektu
Samostatný
Užitná plocha
200 m2
Zastavěná plocha
252 m2
Podlahová plocha
250 m2
Plocha pozemku
643 m2
Plocha zahrady
391 m2
Třída energetické náročnosti
C - Úsporná
Elektřina
230V, 400V
Odpad
Veřejná kanalizace
Topení
Ústřední elektrické, Jiné
Komunikace
Asfaltová, Zpevněná
Telekomunikace
Internet
Doprava
Silnice, Autobus
Voda
Místní zdroj vody, Vodovod
Zdroj topení
Elektrokotel
Garáž
Sklep
Bezbarierový přístup
Parkování

Kontaktovat makléře

Máte zájem o tento dům?

Tímto, v souladu s nařízením Evropského parlamentu a Rady (EU) 2016/679, v platném znění, prohlašuji, že mi je alespoň 16 let a uděluji tak svůj souhlas se zpracováním zadaných údajů (jméno, telefon, e-mail, ip adresa) společnosti B3 Technology, s.r.o., IČ: 07330600, se sídlem Novostavby 126/23, 435 11 Lom (správce dat), za účelem předání dotazu z tohoto formuláře Vámi vybranému inzerentovi a zpětného kontaktování mé osoby. Osobní údaje bude správce zpracovávat manuálně i automaticky přímo prostřednictvím svých zaměstnanců. Informace předané tímto formulářem budou uloženy v databázi správce maximálně po dobu 10 let. Odvolání souhlasu s uložením a zpracováním poskytnutých dat lze e-mailem na info@bydlisnami.cz. V případě podezření na neoprávněné použití Vámi poskytnutých údajů máte právo předat podnět k šetření Úřadu pro ochranu osobních údajů. Více informací
Chystáte se prodat nemovitost?
Pomůžeme Vám!

Inzerát si prohlédlo 10 lidí

Prodejce

Alena  Šulcová

Alena Šulcová

Hlídací pes

Chcete dostávat emailem podobné nabídky prodeje rodinných domů v Chlístovicích?

Podobné nemovitosti