Pronájem bytu 2+1, Brno - Černovice, Spáčilova, 54 m2

Spáčilova, Brno, Černovice

15 500 Kč /za měsíc Získejte výhodnou HYPOTÉKU

(+ zálohy na energie a služby 5.300,- Kč/měsíčně)

Doporučené firmy v Brně

Informace k bytu

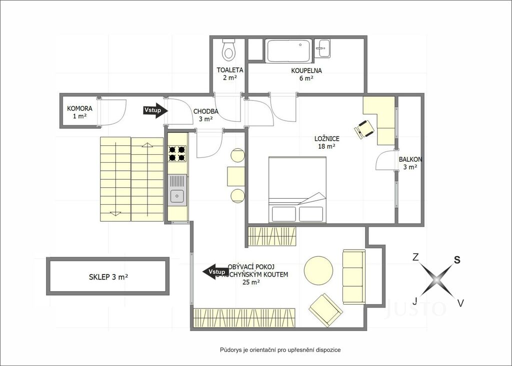
V zastoupení majitele Vám nabízíme k pronájmu byt o dispozicích 2+1 s balkónem a klasickým sklepem.

Byt je částečně zařízen nábytkem a elektrospotřebiči - lednice s mrazničkou, nový plynový sporák s troubou, 2 šatní skříně, jídelní stůl se 3 židlemi a kuchyňskou linkou.

Byt se skládá ze dvou neprůchozích pokojů, průchozí kuchyně, koupelny se sprchovým koutem a samostatnou toaletou. Ložnice disponuje balkónem. Na chodbě u schodiště do bytu je samostatná spíž s úložným policovým systémem. V přízemí domu lze využít samostatný sklep 3 m². Byt se nachází v druhém a zároveň také v posledním patře domu jako jediný, díky čemuž nedochází k rušivému hluku od sousedů.

Po dohodě lze využít možnost parkovacího stání před domem.

Předností umístění bytu v lokalitě je výborná dostupnost do centra města Brna a to jak autem cca 5 min., tak MHD 8 min. Zastávka MHD je přímo před domem.

Dlouhodobý pronájem je vhodný pro jednotlivce či pár.

Prohlídkový den se koná v pondělí 20.10.2025. Rezervujte si včas termín Vaší prohlídky.

Pronajímatel si vyhrazuje právo vybrat nájemce na základě pronajímatelem zvolených kritérií.

Parametry bytu

Cena
15 500 Kč /za měsíc
Poznámka k ceně
+ zálohy na energie a služby 5.300,- Kč/měsíčně
Aktualizováno
18. 10. 2025
Adresa
Spáčilova, Brno, Černovice
ID
J11242
Stavba
Cihlová
Stav objektu
Dobrý
Patro
3. z 3
Vybaveno
Částečně
Lokalita objektu
Centrum obce
Vlastnictví
Osobní
Užitná plocha
54 m2
Podlahová plocha
61 m2
Třída energetické náročnosti
G - Mimořádně nehospodárná
Odpad
Veřejná kanalizace
Topení
Ústřední plynové
Telekomunikace
Internet, Kabelová televize
Voda
Vodovod
Balkon
Sklep
Výtah
Bezbarierový přístup
Parkování

Kontaktovat makléře

Realitní kancelář

Logo JUSTO Česká republika

JUSTO Česká republika

Korunní 2569/108, Vinohrady, Praha

Chystáte se prodat nemovitost?
Pomůžeme Vám!

Máte zájem o tento byt?

Tímto, v souladu s nařízením Evropského parlamentu a Rady (EU) 2016/679, v platném znění, prohlašuji, že mi je alespoň 16 let a uděluji tak svůj souhlas se zpracováním zadaných údajů (jméno, telefon, e-mail, ip adresa) společnosti B3 Technology, s.r.o., IČ: 07330600, se sídlem Novostavby 126/23, 435 11 Lom (správce dat), za účelem předání dotazu z tohoto formuláře Vámi vybranému inzerentovi a zpětného kontaktování mé osoby. Osobní údaje bude správce zpracovávat manuálně i automaticky přímo prostřednictvím svých zaměstnanců. Informace předané tímto formulářem budou uloženy v databázi správce maximálně po dobu 10 let. Odvolání souhlasu s uložením a zpracováním poskytnutých dat lze e-mailem na info@bydlisnami.cz. V případě podezření na neoprávněné použití Vámi poskytnutých údajů máte právo předat podnět k šetření Úřadu pro ochranu osobních údajů. Více informací
Chystáte se prodat nemovitost?
Pomůžeme Vám!

Inzerát si prohlédlo 1 lidí

Prodejce

Filip Mlčoch

Filip Mlčoch

Hlídací pes

Chcete dostávat emailem podobné nabídky pronájmu bytů 2+1 v Brně?

Podobné nemovitosti