třída Tomáše Bati, Zlín
(+ zálohy na energie a služby 2.800,- Kč + DPH/měs. NEPLATÍTE PROVIZI RK!)
Hledáte reprezentativní prostory pro své podnikání v srdci Zlína s možností soukromého zázemí? Máme pro vás exkluzivní nabídku!
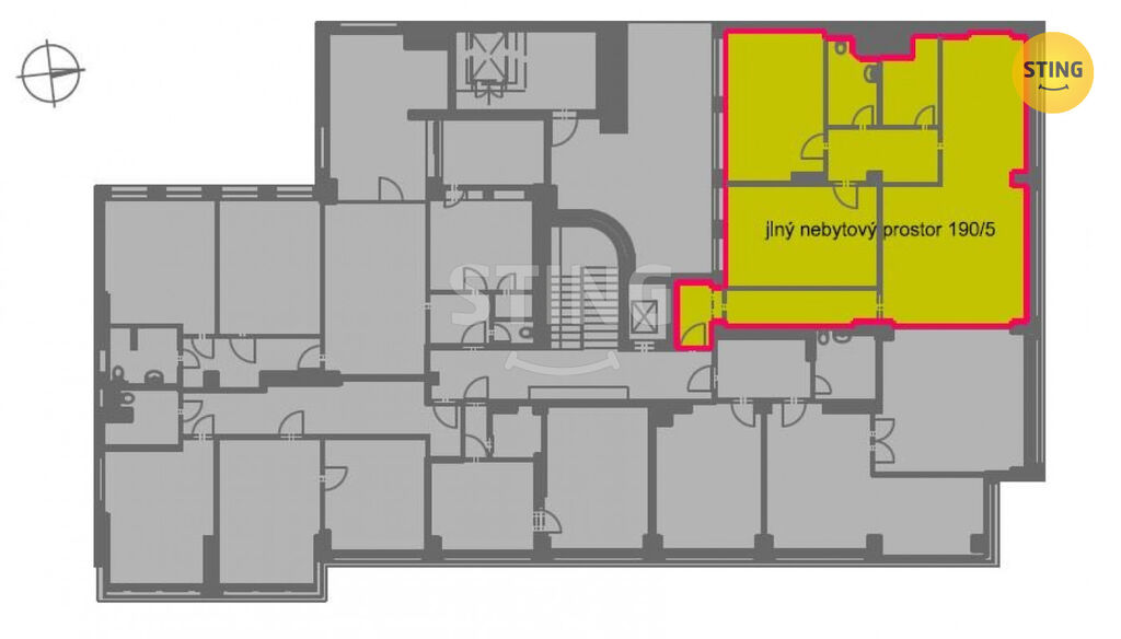
K pronájmu nabízíme atraktivní prostory o celkové užitné ploše 108 m2, umístěné ve 3. nadzemním podlaží budovy s výtahem. Součástí jsou 3 samostatné místnosti, z toho jedna s velkým kuchyňským koutem, koupelna se sprchovým koutem a toaletou, technická místnost, ideální kombinace pro kancelářské, poradenské či kreativní využití s případným zázemím pro bydlení.
Prostory budou k dispozici po  rekonstrukci od 1.2.2026  -  bude zde nová koupelna, kuchyňská linka vč. vestavných spotřebičů - viz vizualizace kuchyně ve fotogalerii.
Rekonstrukci lze přizpůsobit požadavkům budoucího nájemce!
Lokalita, která pracuje za vás
Budova se nachází přímo v centru města, naproti divadlu, na hlavní tepně s vysokou frekvencí chodců i automobilové dopravy – ideální místo pro setkávání s klienty.
Jedná se o jednu z nejvýznamnějších funkcionalistických staveb nebaťovské architektury, jejímž autorem je ak. arch. Miroslav Lorenc, projektant budov pro Tomáše Baťu.
Stav budovy a služby
 - reprezentativní nemovitost ve velmi dobrém stavu
 - pravidelně udržovaná a rekonstruovaná
 - veškerý provoz zajišťuje správce budovy
 - možnost vyhrazeného parkovacího místa přímo u domu za cenu 2.480,- Kč + DPH
Informace k nabízeným prostorům 
 - 2 místnosti jsou klimatizovány
 - prostory (jsou vedeny jako samostatná nebytová jednotka) mají vlastní hlavní elektroměr
 - jsou osazeny podružnými měřidly  s dálkovým odečtem vodoměru i  tepelných indikátorů
 - teplo je řízeno  termostaty v jednotlivých místnostech
 - radiátory jsou osazeny elektronickými hlavicemi s účelem optimalizace nákladů na vytápění        (mobilní aplikace pro automatické či ruční nastaveni teploty)
Finanční podmínky
nájemné:	              29.900 Kč + 21 % DPH/měsíc
zálohy na služby:      2.800 Kč + DPH (teplo, vodné, stočné, spol. elektřina aj.)
elektřina:	              vlastní spotřeba – samostatné měření
kauce:	              1× měsíční nájem
provize:	              Neplatíte provizi RK 
Prostory jsou vhodné pro plátce DPH.
Tato nabídka kombinuje prestižní adresu, komfort a flexibilitu – ideální pro vaše podnikání.
Pro více informací nebo sjednání prohlídky kontaktujte realitní kancelář.
 
                                        Realitní kancelář STING, s.r.o.
1. máje 540, Třinec
Máte zájem o tuto nemovistost?
Inzerát si prohlédlo 4 lidí
 
                                Ing. Olga Vaculíková
Chcete dostávat emailem podobné nabídky pronájmu kanceláří v Zlíně?