Kramolna
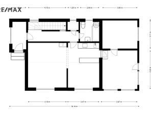
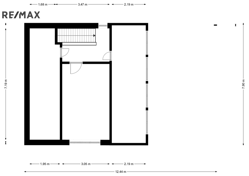
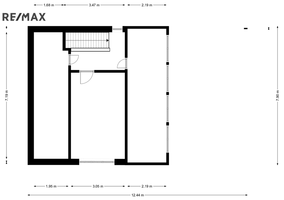
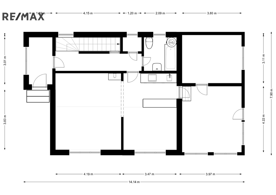
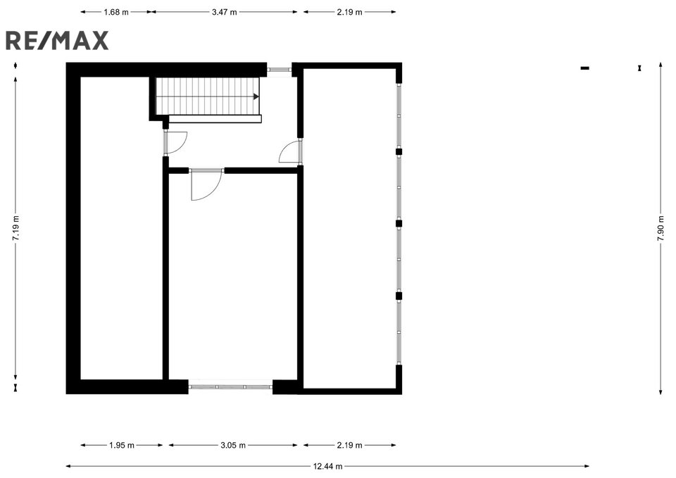
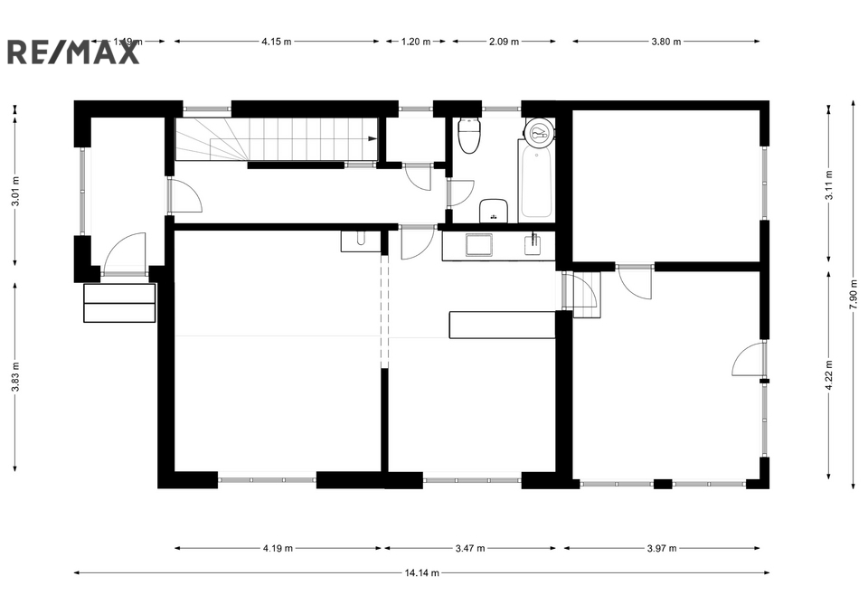
Nabízíme k prodeji starší, ale zachovalý rodinný dům, nacházející se v malebné obci Kramolna, č. p. 131 v těsné blízkosti města Náchod. Tento patrový objekt s jedním podlažím se pyšní zastavěnou plochou 214 m² a užitnou plochou 84 m², což zajišťuje dostatek prostoru pro pohodlné bydlení. Dům je částečně vybavený a jeho součástí je také sklep o ploše 6,4 m².
Nemovitost se nachází na parcele o celkové ploše 1097 m², která nabízí krásnou zahradu a dostatek prostoru pro příjemné venkovní aktivity. V okolí se rozprostírá krásná příroda, lesy a klidná místa, ideální pro relaxaci a odpočinek od městského ruchu.
Dům disponuje třemi prostornými pokoji a jeho zařízení zahrnuje radiátory, krbová kamna, bojler na elektřinu pro ohřev teplé vody, prostornou kuchyň s keramickou varnou deskou. K dispozici je také jedno parkoviště pro pohodlné parkování. Odpad je napojen na kanalizaci a přívod vody zajišťuje vodovod.
Jednou z výhod nemovitosti je její poloha v žádané lokalitě, kde je snadná dostupnost MHD a autobusové dopravy, což usnadňuje každodenní cestování. Dřevěné přístavby v okolí domu dodávají nemovitosti na charakteru a přispívají k příjemné atmosféře.
V případě zájmu o prohlídku mě neváhejte kontaktovat.
Masarykovo náměstí 392/14, Hradec Králové
Máte zájem o tento dům?
Inzerát si prohlédlo 2 lidí
 
                                Ing. Boris Oláh
Chcete dostávat emailem podobné nabídky prodeje rodinných domů v Kramolně?