Prodej rodinného domu, Praha - Zbraslav, Boženy Stárkové, 300 m2

Boženy Stárkové, Praha 5

15 000 000 Kč /za nemovitost HYPOTÉKA od 67 041 Kč /za měsíc
Doporučené firmy v Praze 5

Stěhovací služby

Výkup a prodej starého nábytku

Informace k domu

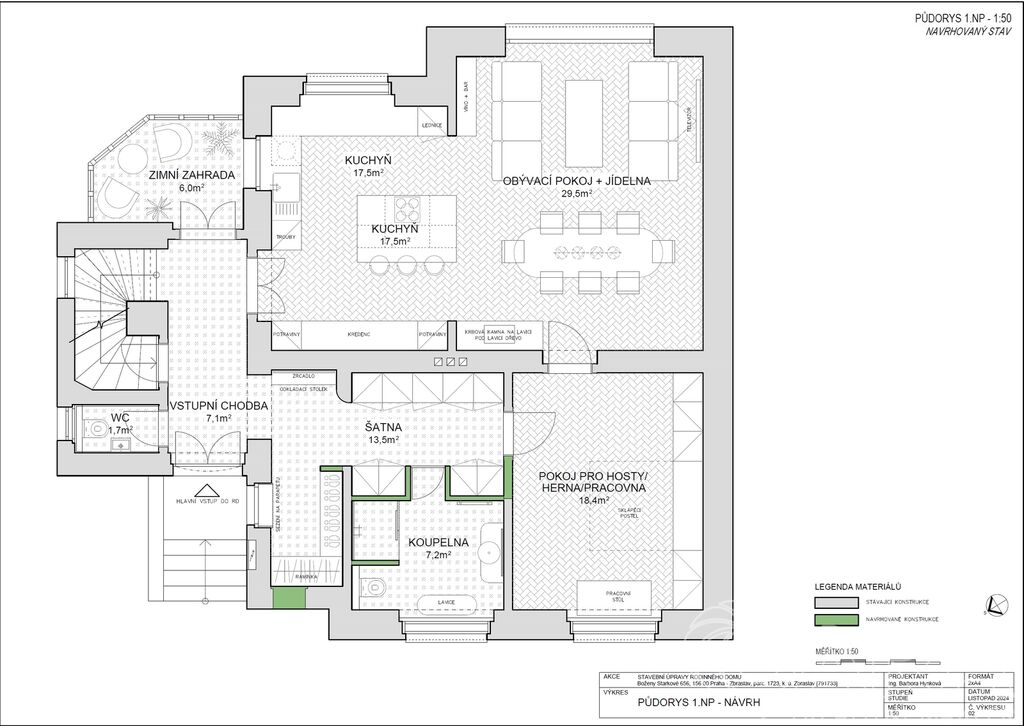
Nabízíme k prodeji jedinečnou prvorepublikovou vilu určenou k rekonstrukci, která se nachází v klidné a vyhledávané lokalitě Prahy 5 – Zbraslav, v ulici Boženy Stárkové. Vila je situována v málo frekventované ulici a díky své vyvýšené poloze nabízí krásný výhled na protilehlý břeh Vltavy na Břežanského údolí, který vytváří příjemnou přírodní kulisu a pocit otevřeného prostoru.

Dům je v současnosti ve stavu před rekonstrukcí – je zcela vyklizený, zbaven vnitřních omítek a podlah, provedena sanace dřevěných trámů. Dům je připravený na okamžité zahájení stavebních prací. K nemovitosti je zpracovaný architektonický návrh a vydané platné stavební povolení na přestavbu vily o třech obytných podlažích. Projekt počítá také s dvěma parkovacími místy na vlastním pozemku, což je v této oblasti výrazné plus. Pozemek má příjemnou výměru, je dostatečně prostorný pro menší zahradu s venkovním posezením, ale zároveň nenáročný na údržbu.

Nemovitost nabízí výjimečné spojení soukromí, výborné dopravní dostupnosti a blízkosti přírody. Díky své poloze, orientaci a otevřenému výhledu je ideální volbou pro klidné rodinné bydlení s charakterem, ale zároveň se jedná i o zajímavou investici s potenciálem zhodnocení.

Lokalita Zbraslav je oblíbená díky svému rezidenčnímu charakteru, občanské vybavenosti a dobré dostupnosti do centra Prahy. V docházkové vzdálenosti se nachází MHD, školy, obchody i zdravotní služby.

Parametry domu

Cena
15 000 000 Kč /za nemovitost Spočítat hypotéku
Aktualizováno
23. 10. 2025
Adresa
Boženy Stárkové, Praha 5
ID
OP-25-00028
Stavba
Cihlová
Stav objektu
Velmi dobrý
Vybaveno
Ne
Typ objektu
Přízemní
Druh objektu
Řadový
Lokalita objektu
Klidná část obce
Užitná plocha
300 m2
Zastavěná plocha
146 m2
Podlahová plocha
300 m2
Plocha pozemku
521 m2
Plocha zahrady
375 m2
Třída energetické náročnosti
G - Mimořádně nehospodárná
Elektřina
230V
Plyn
Plynovod
Odpad
Veřejná kanalizace
Voda
Vodovod
Převod do OV

Kontaktovat makléře

Máte zájem o tento dům?

Tímto, v souladu s nařízením Evropského parlamentu a Rady (EU) 2016/679, v platném znění, prohlašuji, že mi je alespoň 16 let a uděluji tak svůj souhlas se zpracováním zadaných údajů (jméno, telefon, e-mail, ip adresa) společnosti B3 Technology, s.r.o., IČ: 07330600, se sídlem Novostavby 126/23, 435 11 Lom (správce dat), za účelem předání dotazu z tohoto formuláře Vámi vybranému inzerentovi a zpětného kontaktování mé osoby. Osobní údaje bude správce zpracovávat manuálně i automaticky přímo prostřednictvím svých zaměstnanců. Informace předané tímto formulářem budou uloženy v databázi správce maximálně po dobu 10 let. Odvolání souhlasu s uložením a zpracováním poskytnutých dat lze e-mailem na info@bydlisnami.cz. V případě podezření na neoprávněné použití Vámi poskytnutých údajů máte právo předat podnět k šetření Úřadu pro ochranu osobních údajů. Více informací
Chystáte se prodat nemovitost?
Pomůžeme Vám!

Inzerát si prohlédlo 11 lidí

Prodejce

Bc. Jana Kuželíková

Bc. Jana Kuželíková

Hlídací pes

Chcete dostávat emailem podobné nabídky prodeje rodinných domů v Praze 5?

Podobné nemovitosti