Prodej bytu 2+kk, Ivančice, 44 m2 (ID: 2446505)

Ivančice

5 480 000 Kč /za nemovitost HYPOTÉKA od 24 492 Kč /za měsíc

(včetně DPH, včetně provize, včetně právního servisu)

Doporučené firmy v Ivančicích

Informace k bytu

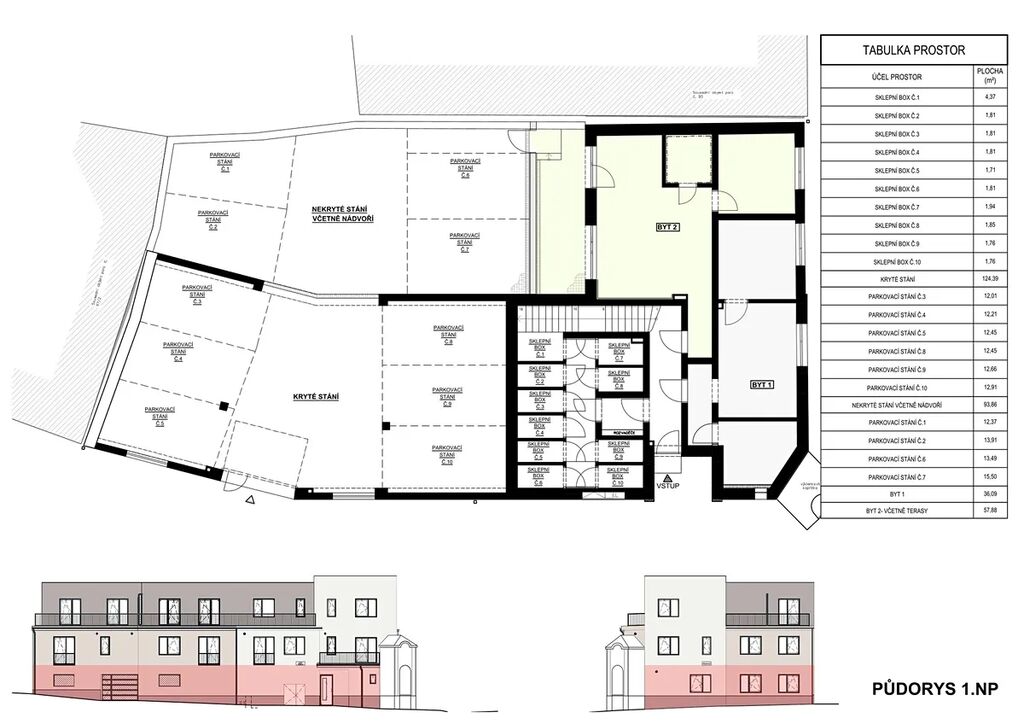
Nabízíme k prodeji byt 2+kk s prostornou terasou v novostavbě bytového domu o 10 jednotkách v bezprostředním centru města Ivančic, na nároží ulic Kounická a Jana Fibicha.
Bytová jednotka o dispozici 2+kk a podlahové ploše 43,92 m² se nachází v 1. nadzemním podlaží nízkoenergetického bytového domu situovaného v klidné části města Ivančice. Součástí bytu je terasová plocha o výměře 13,96 m², která nabízí příjemný prostor pro relaxaci nebo posezení. Součástí ceny bytu je sklepní kóje a nekryté parkovací stání.

Dispozice bytu:
– hala: 2,40 m²
– obývací pokoj s kuchyňským koutem: 27,48 m²
– ložnice: 10,35 m²
– koupelna s WC: 3,69 m²
– terasa: 13,96 m²

Byt je součástí novostavby bytového domu o pouhých 10 jednotkách, což zajišťuje klidné a komfortní bydlení bez rušného prostředí rozsáhlých rezidenčních komplexů.

K bytu náleží sklepní kóje (cca 1,8 m²) a nekryté parkovací stání, které poskytuje pohodlí a ochranu vozidla v průběhu celého roku. Dům se nachází v atraktivní lokalitě s výbornou dostupností do centra města a kompletní občanskou vybaveností – v okolí najdete školy, školky, obchody, zdravotnická zařízení, sportoviště i zastávky MHD.

Vybavení bytu:
– kvalitní vinylové podlahy a dlažba
– příprava na kuchyňskou linku
– plastová okna s izolačními trojskly
– předokenní žaluzie u oken orientovaných do ulice (jižní/západní strana)
– moderní sanitární vybavení

Bytový dům je aktuálně ve fázi dokončovacích prací, probíhá realizace koupelen a pokládka podlah, instalují se zařizovací předměty. Předpokládaný termín k nastěhování je 01/2026.

Pro více informací, půdorysy nebo sjednání prohlídky nás neváhejte kontaktovat.
Prodej přímo od investora – neplatíte provizi.

Parametry bytu

Cena
5 480 000 Kč /za nemovitost Spočítat hypotéku
Poznámka k ceně
včetně DPH, včetně provize, včetně právního servisu
Aktualizováno
28. 10. 2025
Adresa
Ivančice
ID
10247
Stavba
Cihlová
Stav objektu
Ve výstavbě
Patro
1. z 3
Vybaveno
Ne
Lokalita objektu
Centrum obce
Vlastnictví
Osobní
Užitná plocha
44 m2
Třída energetické náročnosti
B - Velmi úsporná
Ukazatel energetické náročnosti
118 kWh/m2 za rok
Sklep
Terasa
Výtah
Bezbarierový přístup
Parkování

Kontaktovat makléře

Máte zájem o tento byt?

Tímto, v souladu s nařízením Evropského parlamentu a Rady (EU) 2016/679, v platném znění, prohlašuji, že mi je alespoň 16 let a uděluji tak svůj souhlas se zpracováním zadaných údajů (jméno, telefon, e-mail, ip adresa) společnosti B3 Technology, s.r.o., IČ: 07330600, se sídlem Novostavby 126/23, 435 11 Lom (správce dat), za účelem předání dotazu z tohoto formuláře Vámi vybranému inzerentovi a zpětného kontaktování mé osoby. Osobní údaje bude správce zpracovávat manuálně i automaticky přímo prostřednictvím svých zaměstnanců. Informace předané tímto formulářem budou uloženy v databázi správce maximálně po dobu 10 let. Odvolání souhlasu s uložením a zpracováním poskytnutých dat lze e-mailem na info@bydlisnami.cz. V případě podezření na neoprávněné použití Vámi poskytnutých údajů máte právo předat podnět k šetření Úřadu pro ochranu osobních údajů. Více informací
Chystáte se prodat nemovitost?
Pomůžeme Vám!

Inzerát si prohlédlo 10 lidí

Prodejce

Bc. Lucie Hajdová, MBA. DiS.

Bc. Lucie Hajdová, MBA. DiS.

Hlídací pes

Chcete dostávat emailem podobné nabídky prodeje bytů 2+kk v Ivančicích?

Podobné nemovitosti