Pronájem bytu 3+kk, Praha - Břevnov, Bělohorská, 64 m2 (ID: 2447278)

Bělohorská, Praha, Břevnov

26 000 Kč /za měsíc Získejte výhodnou HYPOTÉKU

(+ 6 800 Kč poplatky + provize RK Vratná kauce : 26 000,-Kč + služby)

Doporučené firmy v Praze 6

Stěhovací služby

Výkup a prodej starého nábytku

Informace k bytu

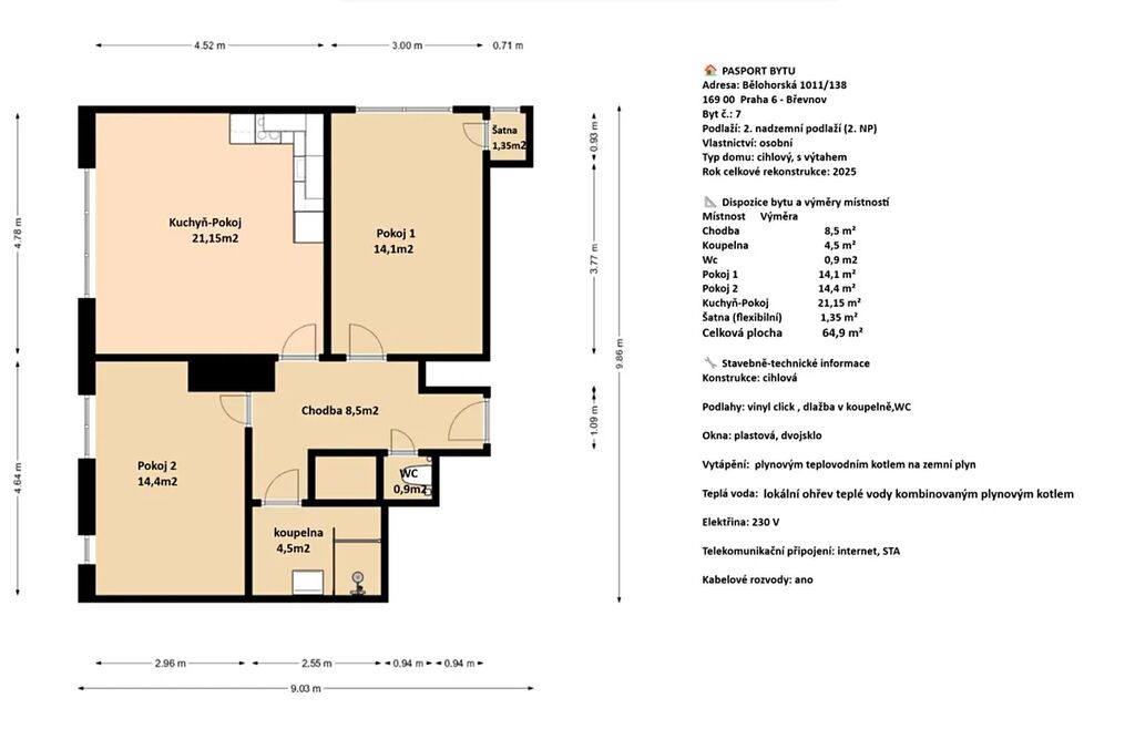
Nabízíme dlouhodobý pronájem bytu 3+kk po celkové rekonstrukci o rozloze 64,90m².


Byt se nachází ve 2.podlaží činžovního domu s výtahem a žádané lokalitě na Praze 6 – Břevnov, ul. Bělohorská. Byt se skládá z předsíně, koupelny se sprchovým koutem , umyvadlem, otopným žebříkem a přípojkou na pračku. Toaleta je samostatně. Obývací pokoj je propojen s kuchyní, která je vybavena kuchyňskou linkou se spotřebiči (horkovzdušná el. trouba, indukční varná deska, myčka, odsavač par, kombinovaná lednice). Oba další pokoje jsou neprůchozí. Součástí bytu a jednoho z pokojů je komora (úložný prostor). Vytápění bytu i ohřev vody je zajištěno vlastním plynovým kotlem v bytě. Okna jsou plastová, dvojsklo. Na podlahách byla použita dlažba, vinyl click. K bytu nenáleží sklep. Byt je nekuřácký a bez domácích mazlíčků. V okolí veškerá občanská vybavenost : lokalita s výbornou dopravní dostupností (tramvajová zastávka U Kaštanu, přímo před domem) nedaleko Pražský hrad či Břevnovský klášter, možné spojení do centra i na letiště Václava Havla. V blízkosti sportovní vyžití na Ladronce, koupaliště Petynka , obora Hvězda, park Šafránka a jiné. Na metro Hradčanská je to pouhých 11 minut a Pražský hrad 7 minut MHD. V okolí veškerá občanská vybavenost – ZŠ a MŠ, restaurace, kavárny, obchody, Billa, pošta , nedaleko poliklinika Pod Marjánkou.


Provize RK: 26 000,-Kč


Cena pronájmu činí měsíčně:

pro 1 osobu: 26 000,- Kč + 6 800,- Kč
pro 2 osoby: 26 000,- Kč + 7 600,- Kč

Měsíční poplatky rozpis (nepřevádí se na nájemce) :
Elektřina: 2 500,- Kč / byt, 2 500,- Kč topení / byt, 800,- Kč voda / osoba
Paušál - nezúčtovatelné poplatky: 1 000,- Kč/byt (Úhrady za plnění spojená s užíváním Bytu jako jsou úklid společných prostor; odvoz komunálního odpadu; osvětlení společných prostor; provoz a čištění komínů; revize výtahu, spotřebičů a spalinových cest)



Vratná kauce : 26 000,-Kč + služby

Parametry bytu

Cena
26 000 Kč /za měsíc
Poznámka k ceně
+ 6 800 Kč poplatky + provize RK Vratná kauce : 26 000,-Kč + služby
Náklady na bydlení
6800
Aktualizováno
24. 10. 2025
Adresa
Bělohorská, Praha, Břevnov
Stavba
Cihlová
Stav objektu
Po rekonstrukci
Patro
2. z 5
Vybaveno
Částečně
Vlastnictví
Osobní
Užitná plocha
64 m2
Třída energetické náročnosti
D - Méně úsporná
Elektřina
230V
Zdroj teplé vody
Plynový kotel
Výtah

Kontaktovat makléře

Máte zájem o tento byt?

Tímto, v souladu s nařízením Evropského parlamentu a Rady (EU) 2016/679, v platném znění, prohlašuji, že mi je alespoň 16 let a uděluji tak svůj souhlas se zpracováním zadaných údajů (jméno, telefon, e-mail, ip adresa) společnosti B3 Technology, s.r.o., IČ: 07330600, se sídlem Novostavby 126/23, 435 11 Lom (správce dat), za účelem předání dotazu z tohoto formuláře Vámi vybranému inzerentovi a zpětného kontaktování mé osoby. Osobní údaje bude správce zpracovávat manuálně i automaticky přímo prostřednictvím svých zaměstnanců. Informace předané tímto formulářem budou uloženy v databázi správce maximálně po dobu 10 let. Odvolání souhlasu s uložením a zpracováním poskytnutých dat lze e-mailem na info@bydlisnami.cz. V případě podezření na neoprávněné použití Vámi poskytnutých údajů máte právo předat podnět k šetření Úřadu pro ochranu osobních údajů. Více informací
Chystáte se prodat nemovitost?
Pomůžeme Vám!

Inzerát si prohlédlo 12 lidí

Prodejce

Jana Haeringová

Jana Haeringová

Hlídací pes

Chcete dostávat emailem podobné nabídky pronájmu bytů 3+kk v Praze 6?

Podobné nemovitosti