Prodej bytu 4+1, Trutnov, Lesní, 93 m2

Lesní, Kryblice

7 950 000 Kč /za nemovitost HYPOTÉKA od 35 532 Kč /za měsíc

(Včetně provize RK a právních služeb.)

Doporučené firmy v Trutnově

Informace k bytu

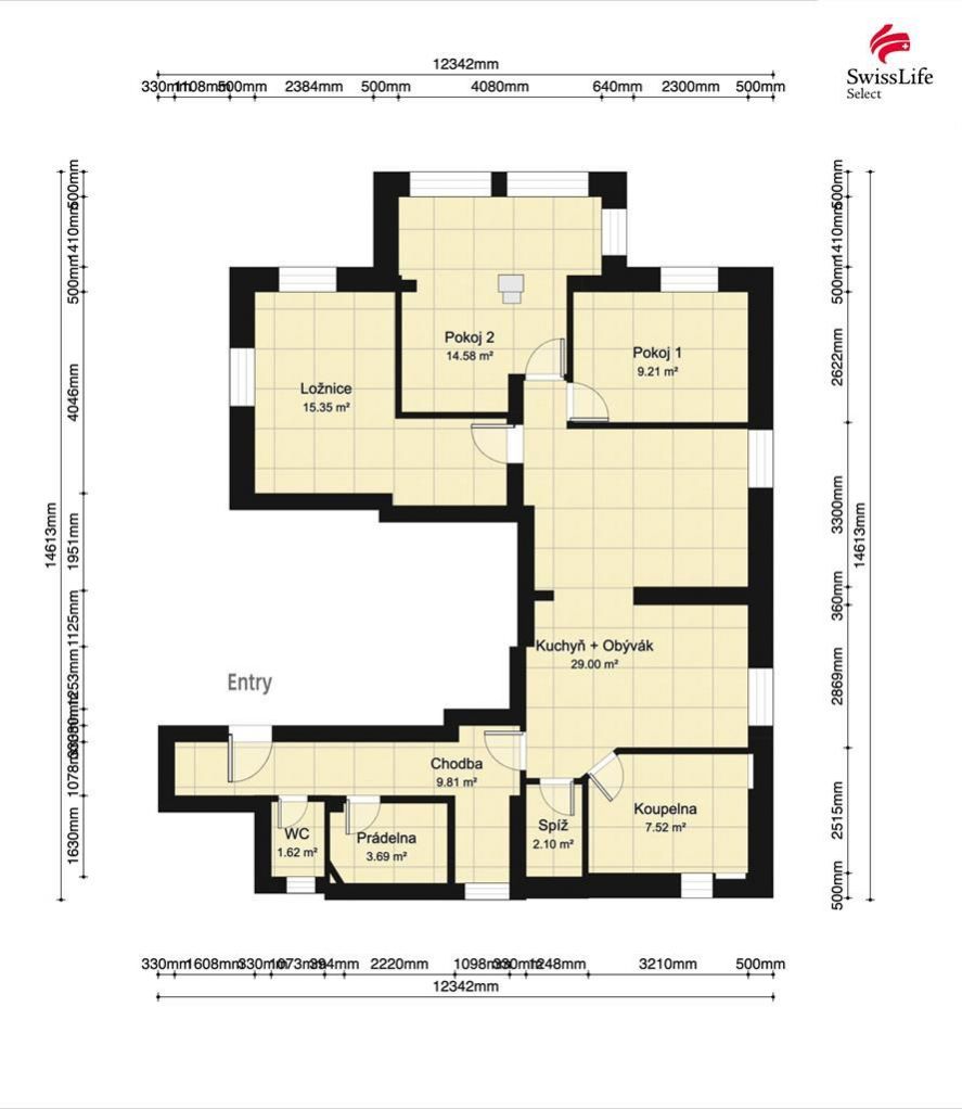
Nabízíme k prodeji moderní byt 4+1 po kompletní rekonstrukci s vlastní zahradou, který se nachází v jedné z nejžádanějších částí Trutnova Kryblice. Nachází se v přízemí zděného domu. Byt je v osobním vlastnictví a podlahová plocha je 93,25 m.

Dispozice: vstupní chodba, obývací pokoj, kuchyň s kuchyňskou linkou a vestavnými spotřebiči, tři samostatné pokoje, technická místnost, koupelna s wc a samostatné wc. K bytu náleží sklep a vlastní zahrada o výměře 325 m, která je přístupná přímo z bytu.

Byt prošel kompletní rekonstrukcí - nové rozvody elektřiny, vody a odpady, nová kuchyňská linka se spotřebiči, modernizována koupelna, plastová okna, nové stropy a omítky, nové vinylové podlahy. Dům je nově zateplený. Vytápění je řešeno podlahovým topením napojeným na horkovod. Ohřev vody el. bojler. PENB zatím třídy E probíhá finalizace rekonstrukce (zateplení fasády, střechy a nová okna). Po dokončení bude nový energetický štítek s nižší energetickou třídou.

Výborná lokalita - v pěší vzdálenosti základní a mateřská škola, obchod s potravinami, zastávka MHD, nemocnice ad.. Centrum města a náměstí je vzdálené 5 min. chůze.

Pro více informací nebo sjednání prohlídky nás neváhejte kontaktovat. Rádi Vám zajistíme financování koupě tohoto bytu. Budeme se těšit u prohlídky.

Parametry bytu

Cena
7 950 000 Kč /za nemovitost Spočítat hypotéku
Poznámka k ceně
Včetně provize RK a právních služeb.
Aktualizováno
24. 10. 2025
Adresa
Lesní, Kryblice
ID
24706
Stavba
Cihlová
Stav objektu
Po rekonstrukci
Patro
1. z 3
Vybaveno
Částečně
Typ objektu
Patrový
Vlastnictví
Osobní
Užitná plocha
93 m2
Podlahová plocha
93 m2
Plocha zahrady
325 m2
Třída energetické náročnosti
E - Nehospodárná
Elektřina
230V
Odpad
Veřejná kanalizace
Topení
Ústřední dálkové
Komunikace
Asfaltová
Telekomunikace
Internet, Kabelové rozvody
Doprava
Vlak, Silnice, MHD, Autobus
Voda
Vodovod
Sklep
Terasa
Bezbarierový přístup
Parkování

Kontaktovat makléře

Máte zájem o tento byt?

Tímto, v souladu s nařízením Evropského parlamentu a Rady (EU) 2016/679, v platném znění, prohlašuji, že mi je alespoň 16 let a uděluji tak svůj souhlas se zpracováním zadaných údajů (jméno, telefon, e-mail, ip adresa) společnosti B3 Technology, s.r.o., IČ: 07330600, se sídlem Novostavby 126/23, 435 11 Lom (správce dat), za účelem předání dotazu z tohoto formuláře Vámi vybranému inzerentovi a zpětného kontaktování mé osoby. Osobní údaje bude správce zpracovávat manuálně i automaticky přímo prostřednictvím svých zaměstnanců. Informace předané tímto formulářem budou uloženy v databázi správce maximálně po dobu 10 let. Odvolání souhlasu s uložením a zpracováním poskytnutých dat lze e-mailem na info@bydlisnami.cz. V případě podezření na neoprávněné použití Vámi poskytnutých údajů máte právo předat podnět k šetření Úřadu pro ochranu osobních údajů. Více informací
Chystáte se prodat nemovitost?
Pomůžeme Vám!

Inzerát si prohlédlo 12 lidí

Prodejce

Zdeněk Štěpán

Zdeněk Štěpán

Hlídací pes

Chcete dostávat emailem podobné nabídky prodeje bytů 4+1 v Trutnově?

Top nabídky

Podobné nemovitosti