Václavské náměstí, Praha, Nové Město
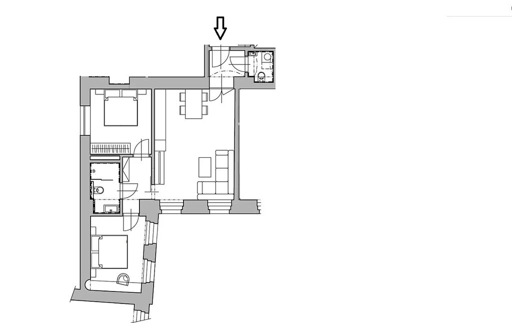
Nově zrekonstruovaný moderní byt 3+kk (2 ložnice, 1 koupelna), o celkové ploše 63,63 m²,  je situovaný ve 2.NP s výtahem, v budově v klidném vnitrobloku, která se nachází se ve vyhledávané lokalitě v Praze 1, na Václavském náměstí. 
Interiér bytu je částečně zařízený a dispozice bytu nabízí předsíň (3,45m2) v bytě, se vstupem do obývacího pokoje (25,94m2) spojeného s kuchyní vybavenou novou kuchyňskou linkou se spotřebiči ( varná deska, trouba, vestavěná lednice s mrazákem a myčka). Dále přes chodbu (4,33m2) je vstup do 2 samostatných ložnic (11,95m2 a 11,58m2) zařízených vestavěnými skříněmi, a moderní koupelnu (4,20m2) s komfortním sprchovým koutem a toaletou. Další samostatná toaleta (2,17m2) má vstup z předsíně. Možnost dovybavit byt pračkou/sušičkou. Podlahy: vinylová a keramická dlažba. Topení v bytě: podlahové. K bytu náleží sklep. K dispozici je i kolárna a kočárkárna. 
Interiér bytu poskytuje přívětivou atmosféru, která ocení především ti, kteří hledají pohodlí ve středu městského ruchu. Díky velkým oknům je zde dostatek denního světla. Celkový stav bytu je po rekonstrukci, což zaručuje moderní vzhled a funkčnost vybavení. Poloha bytu je ideální pro ty, kteří hledají život v centru metropole. Václavské náměstí nabízí množství možností kulturního vyžití, obchodů, restaurací a kaváren. Z hlediska dopravní dostupnosti je lokalita naprosto ideální, v blízkosti se nachází stanice metra i množství tramvajových a autobusových linek, které vám umožní pohodlný přístup do různých částí Prahy.
Zálohové poplatky za služby a energie (včetně topení) činí 6.500, Kč/měsíčně. Elektřinu za byt hradí nájemce přímo dodavateli. Vratná kauce 2 platby nájmů. Provize RK.
Možnost pronájmu parkovacího stání v garážích, v blízkém okolí formou zakladače za poplatek, dle volných kapacit. 
Pozn. použité jsou fotky úplně identického bytu z jiného podlaží. Plán odpovídá bytu.
Vinohradská 939/39, Praha 2
Máte zájem o tento byt?
Inzerát si prohlédlo 1 lidí
 
                                Eva Cinculová
Chcete dostávat emailem podobné nabídky pronájmu bytů 3+kk v Praze 1?