Soccer reality

Prodej rodinného domu, Stříbrná Skalice, 681 m2

Stříbrná Skalice, Kostelní Střimelice

15 900 000 Kč /za nemovitost HYPOTÉKA od 71 063 Kč /za měsíc
Doporučené firmy v Stříbrné Skalici

Informace k domu

Nabízíme Vám ke koupi rodinný dům v rámci uzavřeného komplexu obytných a hospodářských budov s celkovou užitnou plochou 681 m2 a pozemkem o výměře 3572 m2 v obci Kostelní Střimelice (u Mnichovic).
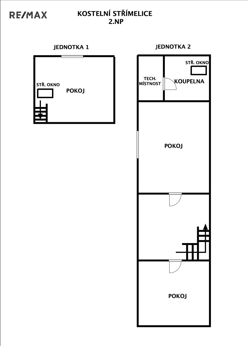
Komplex budov sestává z rodinného domu o třech jednotkách se samostatnými vchody přímo ze dvora, hospodářské budovy ve fázi rekonstrukce a přestavby na obytnou budovu a dále prostorné stodoly.
Nemovitost je vhodná k vícegeneračnímu bydlení, podnikání či kombinaci obojího.
Rodinný dům:
Tři samostatné jednotky 3+kk, 2+kk, 1+kk, možnost další půdní vestavby.
Výměry: 1.NP - 117 m², 2NP - 75 m².
Budova prošla zásadní rekonstrukcí a má charakter novostavby. Bytová část je zděná z plných cihel a kamene, stropy cihelné klenbové a dřevěné trámové. Střecha sedlová s novou betonovou střešní krytinou, oprava fasády, výměna oken a rozvody všech inženýrských sítí (rozvody elektřiny, vody, odpadů, topení).
Vytápění domu je zajištěno elektrickým kotlem do radiátorů a krbovými (kachlovými) kamny. Ohřev vody elektrickými bojlery.

Hospodářská budova:
Stavba prošla dílčí rekonstrukcí zahrnující výměnu střešní krytiny a zateplení střechy stříkanou pěnovou izolací, nové betonové podlahy, rozvody elektroinstalace, příprava koupelny, vyzdění nových příček. Stavba je ve fázi rekonstrukce a přestavby na obytnou budovu s obytnou plochou cca 217 m2 + garáž, altán a sklep. Plány znázorňují budoucí stav. Výhodou je prostorná garáž (44 m2) a přiléhající altán (38 m2), který lze užívat jako další prostor k parkování, dílna atp. či k venkovnímu krytému posezení. Okouzlí Vás i potenciál klenbového vinného sklepa z červených cihel (45 m2).
Výměry:
1.NP - zázemí, koupelna, tech. místnost atp. 66,4 m²
garáž 43,8 m²
altán 38,5 m².

sklep - 45 m²

2.NP - obytná část 3+1 (4+kk) 153 m².

Uskupení budov uzavírá průjezdná stodola - zděná stavba po dílčí rekonstrukci a výměře 142 m². Krov a střešní krytina ve skvělém stavu.

IS: el. 230/400V. Dva zdroje vody: rozvod vody z místního obecního zdroje, veřejný vodovod. Odpad - dvě odpadní jímky (pro RD a budovu v rekonstrukci).

Na pozemku se dále nachází přírodní jezírko, ovocné a okrasné stromy a keře. Výhodou je velký pozemek 3572 m2, jenž nabízí další možnosti využití. Na pozemek jsou dva vjezdy.

Obec Kostelní Střimelice nabízí dokonalé soukromí a klid venkovského života s velmi dobrou dostupností do Prahy – autem cca 30–40 minut po dálnici D1, exit Chocerady - Čerčany.
Bus linka 490 do Ondřejova nebo Stránčic, odkud je možné využít železniční spojení do Prahy, nebo Benešova.
Lokalita je ideální pro turistiku, cykloturistiku, houbaření či odpočinek v přírodě. Nedaleko se nachází také řeka Sázava a řada historických památek.

Koupi nemovitosti lze financovat hypotečním úvěrem, který Vám v případě zájmu rádi vyřídíme na míru.

Pro další informace a sjednání termínu prohlídky volejte.

Parametry domu

Cena
15 900 000 Kč /za nemovitost Spočítat hypotéku
Aktualizováno
25. 10. 2025
Adresa
Stříbrná Skalice, Kostelní Střimelice
ID
0023-NP08659
Stavba
Smíšená
Stav objektu
Velmi dobrý
Druh objektu
Samostatný
Lokalita objektu
Klidná část obce
Užitná plocha
681 m2
Zastavěná plocha
2432 m2
Plocha pozemku
3572 m2
Třída energetické náročnosti
G - Mimořádně nehospodárná
Elektřina
230V, 400V
Odpad
Jímka
Komunikace
Asfaltová
Voda
Místní zdroj vody, Vodovod
Topné těleso
Radiátory, Přímotop, Krbová kamna, Akumulační kamna
Zdroj topení
Elektrokotel, Přímotop, Krbová kamna, Akumulační kamna
Zdroj teplé vody
Bojler - elektro
Garáž
Sklep

Kontaktovat makléře

Máte zájem o tento dům?

Tímto, v souladu s nařízením Evropského parlamentu a Rady (EU) 2016/679, v platném znění, prohlašuji, že mi je alespoň 16 let a uděluji tak svůj souhlas se zpracováním zadaných údajů (jméno, telefon, e-mail, ip adresa) společnosti B3 Technology, s.r.o., IČ: 07330600, se sídlem Novostavby 126/23, 435 11 Lom (správce dat), za účelem předání dotazu z tohoto formuláře Vámi vybranému inzerentovi a zpětného kontaktování mé osoby. Osobní údaje bude správce zpracovávat manuálně i automaticky přímo prostřednictvím svých zaměstnanců. Informace předané tímto formulářem budou uloženy v databázi správce maximálně po dobu 10 let. Odvolání souhlasu s uložením a zpracováním poskytnutých dat lze e-mailem na info@bydlisnami.cz. V případě podezření na neoprávněné použití Vámi poskytnutých údajů máte právo předat podnět k šetření Úřadu pro ochranu osobních údajů. Více informací
Chystáte se prodat nemovitost?
Pomůžeme Vám!

Inzerát si prohlédlo 17 lidí

Prodejce

Jan Frank

Jan Frank

Hlídací pes

Chcete dostávat emailem podobné nabídky prodeje rodinných domů v Stříbrné Skalici?

Podobné nemovitosti