Pronájem bytu 2+1, Štipoklasy, 65 m2

Štipoklasy

14 200 Kč /za měsíc Získejte výhodnou HYPOTÉKU

(+ elektřina 3200 Kč )

Doporučené firmy v Štipoklasech

Informace k bytu

Pronájem útulného bytu 2+1 (65 m2) se soukromou zahradou (650 m2) a pergolou - Štipoklasy

Toužíte po klidném bydlení v krásné přírodě, kde uslyšíte zpěv ptáků místo ruchu města? Hledáte místo, kde budete mít soukromí a možnost trávit čas venku? Pak pro vás máme ideální nabídku.

K pronájmu nabízíme útulný byt 2+1 o velikosti 65 m2, situovaný ve 2. nadzemním podlaží vícegeneračního domu na okraji malebné obce Štipoklasy, jen pár kroků od pramene Vrchlice.
V domě jsou pouze dvě bytové jednotky, z nichž je dlouhodobě využívána pouze tato. Sdílené je jen schodiště, a tak vás čeká mimořádně klidné a soukromé bydlení.

Co vám tento pronájem nabídne?

- Útulný byt s krásným výhledem do přírody
- Prostorná zahrada cca 650 m2 - ideální k relaxu, pěstování, hraní s dětmi či letnímu posezení
- Zděná pergola - perfektní místo pro grilování nebo večerní sklenku vína
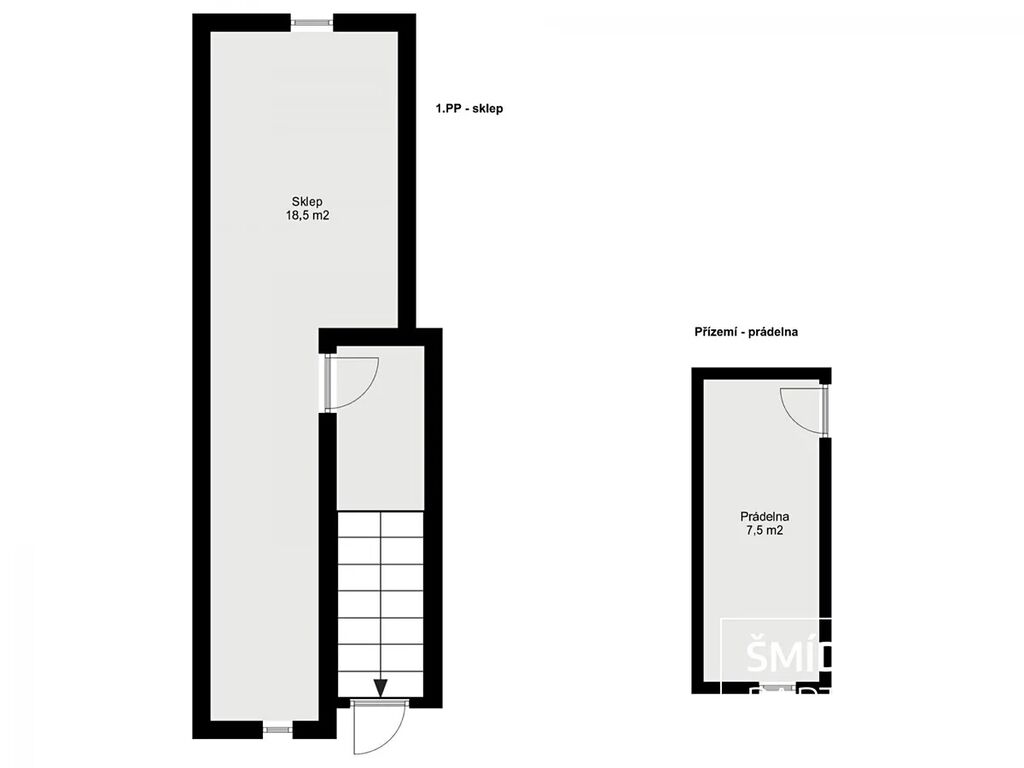
- Uzamykatelný venkovní sklad - skvělé pro kola, sportovní vybavení či nářadí
- Prádelna v přízemí mimo byt - pračka ani domácí potřeby nezabírají obytný prostor

Vytápění a úspora nákladů:

- Vytápění je možné elektrokotlem, kotlem na tuhá paliva nebo novými krbovými kamny v obývacím prostoru, které dodají bydlení kouzelnou atmosféru
- Pokud máte rádi teplo z kamen a nevadí vám občas přiložit polínko, můžete mít výrazně nižší náklady na provoz
- Voda z vlastní, dostatečně vydatné studny
- Odpad řešen jímkou

Krásná lokalita v dosahu města

Štipoklasy jsou okouzlující vesnička obklopená loukami, lesy, rybníky a klidem. V obci se navhází autobusová i vlaková zastávka zajištující perfektní spojení obce s okolím. Základní občanskou vybavenost naleznete v nedalekých obcích Zbraslavice a Červené Janovice.

Města v okolí: Kutná Hora - 15 min, Čáslav - 18 min, Kolín - do 30 min.

Toto místo nadchne všechny, kdo hledají harmonické bydlení v přírodě, přesto s dobrou dostupností větších měst.

Jediné poplatky s tímto bytem jsou platby záloh za elektřinu (aktuálně 3200,-), roční platba popelnice a 2 x ročně vyvezení jímky..

Při podpisu nájemní smlouvy se skládá vratná kauce ve výši - 28 400 Kč, první nájemné - 14 200 Kč a provize RK.
Celkem tedy 60 750 Kč

V případě zájmu o prohlídku či dotazů mne neváhejte kontaktovat.

Parametry bytu

Cena
14 200 Kč /za měsíc
Poznámka k ceně
+ elektřina 3200 Kč
Aktualizováno
25. 10. 2025
Adresa
Štipoklasy
ID
956
Stavba
Smíšená
Stav objektu
Dobrý
Patro
2. z 2
Vybaveno
Částečně
Vlastnictví
Osobní
Užitná plocha
65 m2
Podlahová plocha
72 m2
Elektřina
230V, 400V
Odpad
Jímka
Topení
Lokální tuhá paliva, Lokální elektrické
Komunikace
Asfaltová
Doprava
Vlak, Autobus
Voda
Studna
Topné těleso
Radiátory, Krbová kamna
Zdroj topení
Elektrokotel, Krbová kamna, Kotel na tuhá paliva
Sklep
Bezbarierový přístup
Parkování

Kontaktovat makléře

Máte zájem o tento byt?

Tímto, v souladu s nařízením Evropského parlamentu a Rady (EU) 2016/679, v platném znění, prohlašuji, že mi je alespoň 16 let a uděluji tak svůj souhlas se zpracováním zadaných údajů (jméno, telefon, e-mail, ip adresa) společnosti B3 Technology, s.r.o., IČ: 07330600, se sídlem Novostavby 126/23, 435 11 Lom (správce dat), za účelem předání dotazu z tohoto formuláře Vámi vybranému inzerentovi a zpětného kontaktování mé osoby. Osobní údaje bude správce zpracovávat manuálně i automaticky přímo prostřednictvím svých zaměstnanců. Informace předané tímto formulářem budou uloženy v databázi správce maximálně po dobu 10 let. Odvolání souhlasu s uložením a zpracováním poskytnutých dat lze e-mailem na info@bydlisnami.cz. V případě podezření na neoprávněné použití Vámi poskytnutých údajů máte právo předat podnět k šetření Úřadu pro ochranu osobních údajů. Více informací
Chystáte se prodat nemovitost?
Pomůžeme Vám!

Inzerát si prohlédlo 1 lidí

Prodejce

Bc. Ondřej Titze

Bc. Ondřej Titze

Hlídací pes

Chcete dostávat emailem podobné nabídky pronájmu bytů 2+1 v Štipoklasech?

Podobné nemovitosti