Prodej bytu 3+1, Plzeň, Vojanova, 68 m2

Vojanova, Plzeň, Skvrňany

5 190 000 Kč /za nemovitost HYPOTÉKA od 23 196 Kč /za měsíc

(včetně DPH, včetně poplatků, včetně provize, včetně právního servisu)

Doporučené firmy v Plzni

Podlahy

Stěhovací služby

Informace k bytu

Ve výhradním zastoupení Vám nabízíme k prodeji slunný byt v osobním vlastnictví s dispozicí 3+1 a celkovou plochou 68m2 s lodžií v ulici Vojanova.

Panelový dům je v dobrém technickém stavu. Průběžně procházel revitalizací a díky plastovým oknům a zateplené fasádě je energetická náročnost budovy třídy C, která zaručuje úsporné bydlení. Před rokem byl vybudován nový výtah. Společenství vlastníků skvěle funguje a do budoucna plánuje další modernizace domu.

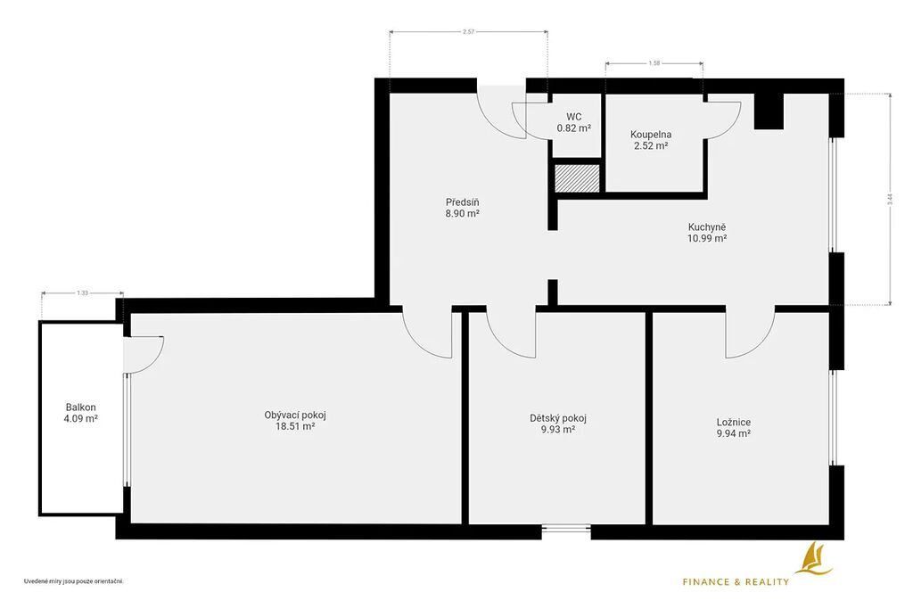
Bytová jednotka se nachází v 5. patře. Přesnou dispozici domu si můžete prohlédnout na přiloženém půdorysu. K bytu samozřejmě náleží sklepní kóje. Před lety byt prošel částečnou rekonstrukcí. Byly zde provedeny nové rozvody elektřiny, vybudováno zděné jádro. Byt je i po úpravách podlahové krytiny. V obývacím pokoji a ložnici bylo položeno nové lino. V předsíni, kuchyni, koupelně a na WC je dlažba. Zhruba před rokem dostal novou plovoucí podlahu i dětský pokoj.

Lokalita nabízí klidné a příjemné prostředí s kompletní občanskou vybaveností. V docházkové vzdálenosti najdete školu, školku, dětská hřiště, supermarket a další obchody a služby. Jistě oceníte i dobrou dopravní dostupnost. Autobusová a tramvajová zastávka je kousek od domu. Jen pár minut chůze se nachází i vlakové nádraží. Díky nově vybudovaném obchvatu se během chvilky dostanete i do ostatních částí města.

Pro více informací nebo sjednání prohlídky mě neváhejte kontaktovat. Rád Vám byt ukáži osobně.
S financováním Vám pomůže náš finanční specialista.

Parametry bytu

Cena
5 190 000 Kč /za nemovitost Spočítat hypotéku
Poznámka k ceně
včetně DPH, včetně poplatků, včetně provize, včetně právního servisu
Aktualizováno
25. 10. 2025
Adresa
Vojanova, Plzeň, Skvrňany
ID
00132
Stavba
Panelová
Stav objektu
Velmi dobrý
Patro
5. z 7
Vybaveno
Částečně
Lokalita objektu
Sídliště
Vlastnictví
Osobní
Užitná plocha
68 m2
Podlahová plocha
68 m2
Třída energetické náročnosti
C - Úsporná
Ukazatel energetické náročnosti
84.6 kWh/m2 za rok
Elektřina
230V
Plyn
Plynovod
Odpad
Veřejná kanalizace
Komunikace
Asfaltová
Telekomunikace
Telefon, Internet
Doprava
Vlak, Silnice, MHD
Voda
Vodovod
Topné těleso
Radiátory
Zdroj topení
Centrální dálkové
Zdroj teplé vody
Centrální dálkový ohřev
Sklep
Lodžie
Výtah

Kontaktovat makléře

Máte zájem o tento byt?

Tímto, v souladu s nařízením Evropského parlamentu a Rady (EU) 2016/679, v platném znění, prohlašuji, že mi je alespoň 16 let a uděluji tak svůj souhlas se zpracováním zadaných údajů (jméno, telefon, e-mail, ip adresa) společnosti B3 Technology, s.r.o., IČ: 07330600, se sídlem Novostavby 126/23, 435 11 Lom (správce dat), za účelem předání dotazu z tohoto formuláře Vámi vybranému inzerentovi a zpětného kontaktování mé osoby. Osobní údaje bude správce zpracovávat manuálně i automaticky přímo prostřednictvím svých zaměstnanců. Informace předané tímto formulářem budou uloženy v databázi správce maximálně po dobu 10 let. Odvolání souhlasu s uložením a zpracováním poskytnutých dat lze e-mailem na info@bydlisnami.cz. V případě podezření na neoprávněné použití Vámi poskytnutých údajů máte právo předat podnět k šetření Úřadu pro ochranu osobních údajů. Více informací
Chystáte se prodat nemovitost?
Pomůžeme Vám!

Inzerát si prohlédlo 36 lidí

Prodejce

Tomáš Kačírek

Tomáš Kačírek

Hlídací pes

Chcete dostávat emailem podobné nabídky prodeje bytů 3+1 v Plzni?

Podobné nemovitosti