Pronájem bytu 3+kk, Praha - Braník, Mezivrší, 118 m2

Mezivrší, Praha, Braník

35 000 Kč /za měsíc Získejte výhodnou HYPOTÉKU

(+ 5000,- služby i energie)

Doporučené firmy v Praze 4

Stěhovací služby

Výkup a prodej starého nábytku

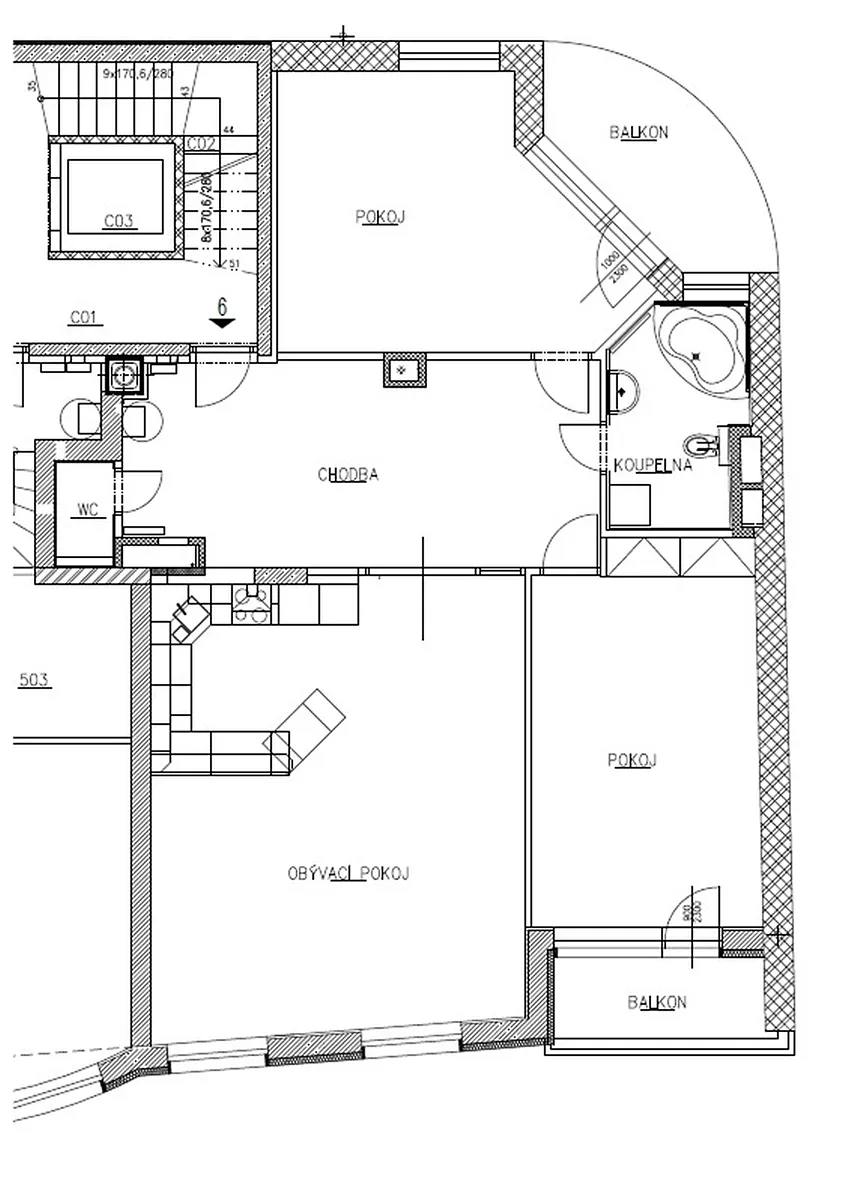
Informace k bytu

Velice pěkný moderní světlý byt v novostavbě s garáží a 2x balkonem 3+kk 118 m2, Praha 4 - Braník, ul. Mezivrší,

obývací pokoj s plně vybavenou novou moderní kuchyňskou linkou s myčkou a lednicí s mrazákem,

2 ložnice každá s balkonem s výhledem do klidné ulice i zahrady,
prostorná hala, světlá koupelna s oknem - podlahové topení, 1x vana a 1x sprchový kout, 2x toaleta, velký zděný sklep, garážové stání,

elektronický zabezpečovací systém, bezpečnostní dveře, domácí videotelefon, TV, SAT, počítačová síť v každém pokoji, euro okna, masivní dveře, vestavěné skříně, dřevěné plovoucí podlahy, vstupní bezpečnostní dveře.

Menší klidný dům s výtahem, pěkná klidná zelená lokalita nedaleko řeky Vltavy. Poloha s výborným dostupem do centra, ale i do dalších částí Prahy – jižní spojka, Barrandovský most a tunel Blanka. PENB:C

Parametry bytu

Cena
35 000 Kč /za měsíc
Poznámka k ceně
+ 5000,- služby i energie
Aktualizováno
25. 10. 2025
Adresa
Mezivrší, Praha, Braník
ID
N07667
Stavba
Cihlová
Stav objektu
Velmi dobrý
Patro
3.
Vybaveno
Ne
Vlastnictví
Osobní
Užitná plocha
118 m2
Třída energetické náročnosti
C - Úsporná
Telekomunikace
Internet, Kabelová televize
Balkon
Garáž
Sklep
Terasa
Výtah

Kontaktovat makléře

Realitní kancelář

HX reality, s.r.o.

Revoluční 724/7, Praha 1

Chystáte se prodat nemovitost?
Pomůžeme Vám!

Máte zájem o tento byt?

Tímto, v souladu s nařízením Evropského parlamentu a Rady (EU) 2016/679, v platném znění, prohlašuji, že mi je alespoň 16 let a uděluji tak svůj souhlas se zpracováním zadaných údajů (jméno, telefon, e-mail, ip adresa) společnosti B3 Technology, s.r.o., IČ: 07330600, se sídlem Novostavby 126/23, 435 11 Lom (správce dat), za účelem předání dotazu z tohoto formuláře Vámi vybranému inzerentovi a zpětného kontaktování mé osoby. Osobní údaje bude správce zpracovávat manuálně i automaticky přímo prostřednictvím svých zaměstnanců. Informace předané tímto formulářem budou uloženy v databázi správce maximálně po dobu 10 let. Odvolání souhlasu s uložením a zpracováním poskytnutých dat lze e-mailem na info@bydlisnami.cz. V případě podezření na neoprávněné použití Vámi poskytnutých údajů máte právo předat podnět k šetření Úřadu pro ochranu osobních údajů. Více informací
Chystáte se prodat nemovitost?
Pomůžeme Vám!

Inzerát si prohlédlo 2 lidí

Prodejce

HX reality

HX reality

Hlídací pes

Chcete dostávat emailem podobné nabídky pronájmu bytů 3+kk v Praze 4?

Podobné nemovitosti