Prodej rodinného domu, Jakartovice, 113 m2 (ID: 2457596)

Jakartovice, Deštné

Cena na vyžádání /za nemovitost Získejte výhodnou HYPOTÉKU
Doporučené firmy v Jakartovicích

Informace k domu

Domy Renard
Exkluzivně nabízíme k prodeji šest domů v lokalitě Jakartovice Deštné.
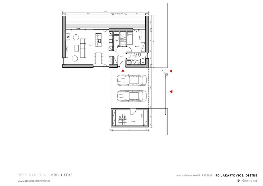
O domech
Představujeme Vám harmonický dům který spojuje moderní architekturu s přírodním prostředím v malebné lokalitě Jakartovice – Deštné.
Tento moderní dům se sedlovou střechou, krytým parkovacím stáním a prostornou zahradou je ideálním místem pro mladé páry i rodiny hledající harmonické bydlení v klidném prostředí. Zároveň nabízí skvělé dopravní spojení do Opavy, která poskytuje výbornou dostupnost všech služeb po celý rok.
Dům poskytuje funkčnost a praktičnost, vyznačuje se čistými liniemi, elegantní kombinací fasádních, dřevěných a kamenných prvků a precizním zpracováním detailů. Jeho minimalistický design se sedlovou střechou a velkoformátovými výplněmi přináší nejen nadčasový vzhled, ale také dostatek přirozeného světla do interiéru.
Dům je orientovaný na jižní stranu, takže na dům po většinu roku může svítit slunce, sníží se tak spotřeba tepla a budete mít mnohem příjemnější a prosvětlený domov.
Hlavní obytná část je orientována do zahrady, kde se nachází krytá terasa s posezením, ideální pro relaxaci nebo setkávání s rodinou a přáteli. Velké prosklené plochy propojují interiér s exteriérem a vytvářejí příjemný, vzdušný prostor.
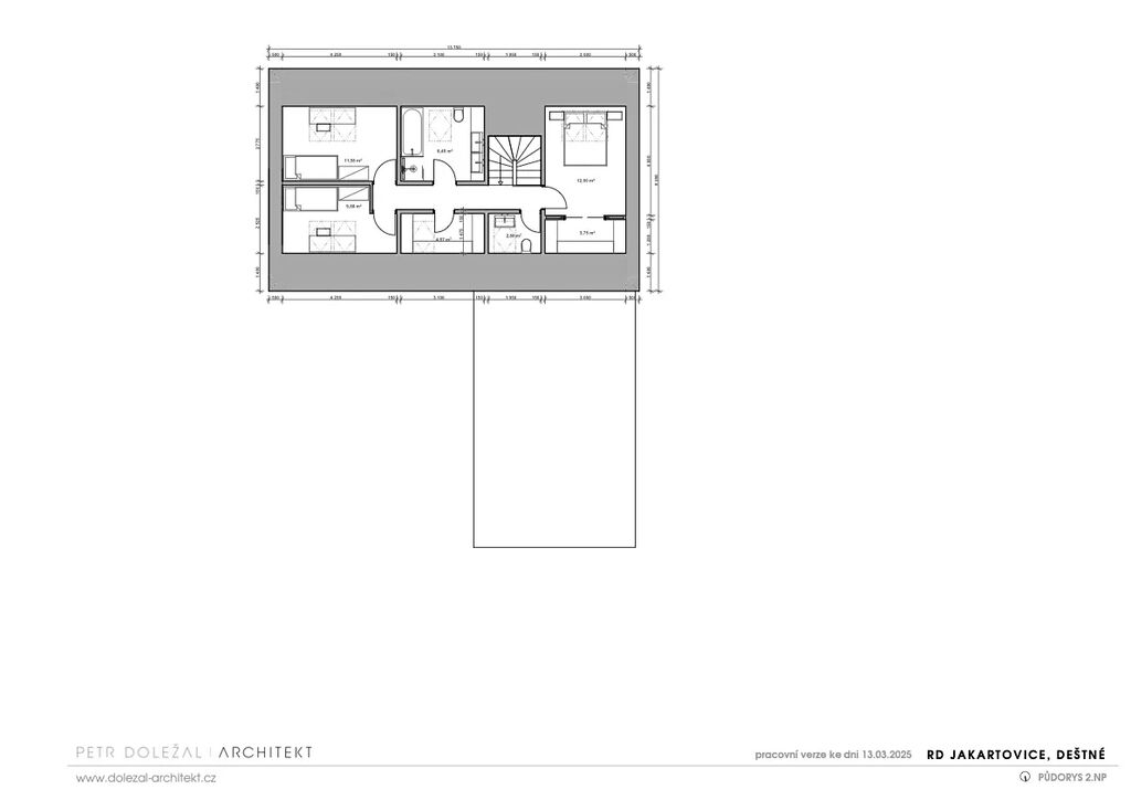
Dispozičně je dům řešen velmi prakticky – nabízí otevřený obývací prostor s kuchyní a jídelnou, které tvoří srdce domu. Součástí jsou také ložnice, koupelna a dostatek úložného prostoru. Moderní technologie a kvalitní materiály zajišťují maximální komfort a energetickou úspornost.
K domu náleží kryté parkovací stání s elegantním břidlicovým obložením, což je typický kámen pro místní krajinu a esteticky tak doplňuje celkový vzhled stavby. Součástí je také technická místnost, kterou lze využít k uskladnění sportovního vybavení a zahradní techniky nebo jako menší dílnu. Pečlivě upravená zahrada a okolní zeleň podtrhují příjemnou atmosféru tohoto moderního bydlení v souladu s přírodou.
Cena domu dle dokončení od 7,5 mil. Kč

Parametry domu

Cena
Cena na vyžádání Spočítat hypotéku
Aktualizováno
27. 10. 2025
Adresa
Jakartovice, Deštné
Stavba
Smíšená
Stav objektu
Novostavba
Užitná plocha
113 m2
Plocha pozemku
635 m2
Odpad
ČOV pro celý objekt
Voda
Vodovod
Parkování

Kontaktovat makléře

Máte zájem o tento dům?

Tímto, v souladu s nařízením Evropského parlamentu a Rady (EU) 2016/679, v platném znění, prohlašuji, že mi je alespoň 16 let a uděluji tak svůj souhlas se zpracováním zadaných údajů (jméno, telefon, e-mail, ip adresa) společnosti B3 Technology, s.r.o., IČ: 07330600, se sídlem Novostavby 126/23, 435 11 Lom (správce dat), za účelem předání dotazu z tohoto formuláře Vámi vybranému inzerentovi a zpětného kontaktování mé osoby. Osobní údaje bude správce zpracovávat manuálně i automaticky přímo prostřednictvím svých zaměstnanců. Informace předané tímto formulářem budou uloženy v databázi správce maximálně po dobu 10 let. Odvolání souhlasu s uložením a zpracováním poskytnutých dat lze e-mailem na info@bydlisnami.cz. V případě podezření na neoprávněné použití Vámi poskytnutých údajů máte právo předat podnět k šetření Úřadu pro ochranu osobních údajů. Více informací
Chystáte se prodat nemovitost?
Pomůžeme Vám!

Inzerát si prohlédlo 1 lidí

Prodejce

Přemysl Tyl

Přemysl Tyl

Hlídací pes

Chcete dostávat emailem podobné nabídky prodeje rodinných domů v Jakartovicích?

Podobné nemovitosti