Vinopalnická, Praha 8
Pronájem reprezentativního kancelářského prostoru o dispozici 5kk, 104 m2, Praha 8 - Libeň, ulice Vínopalnická, 2.NP v cihlovém domě bez výtahu. Dům je velmi klidný a slušný, užívaný pouze firmou samotného majitele domu. Každý prostor má svůj vlastní separátní vchod. Dům je ve slepé, velmi klidné ulici a je zasazen do krásné okrasné zahrady, která je pravidelně udržována zahradníky. Dům i okolí působí velmi klidným a zároveň silným inspirativním dojmem. Ocení ho především ti, kteří ke své práci potřebují kreativitu, vyjímečný klid, soukromí, přátelskou pozitivní energii a atmosféru, která zkrátka v klasických otevřených open-space kancelářích není možná. Orientace prostoru je na východ (2 místnosti, každá má pak i okno na jih nebo sever) a na západ (1 místnost a koupelna).
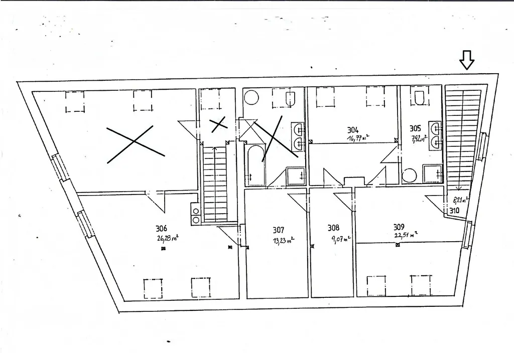
Prostor je po nákladné, právě dokončené rekonstrukci, při které byly vyměněny všechna střešní okna, položen kvalitní vinyl, nainstalována nová kuchyňská linka a proběhla kompletní výmalba. Prostor sestává ze vstupního schodiště (8,21 m2), 4 průchozích místností (22,51 m2, 16,77 m2, 9,07 m2, 13,23 m2), koupelny s WC (7,92 m2) a 1 neprůchozí místnosti, ve které je i klimatizační jednotka (26,28 m2). Prostor je nezařízený nábytkem. K dispozici je nová kuchyňská linka s novými spotřebiči – indukční vařič, lednice a mikrovlnná trouba. V prostorné koupelně je umývadlo, WC, vana i sprchový kout. Na podlaze je nový vinyl a dlažba. Topení je ústřední - kotel na LTO pro celý dům, který je možné ovládat vlastním termostatem. Prostor je možné mít zabezpečený alarmem od společnosti Jablotron, který je napojený na CPO a to za 400 Kč měsíčně.
Parkování je možné pro 2 auta na přilehlém pozemku před domem za 1.450 Kč měsíčně / 1 auto. Výborná dopravní dostupnost do centra - 50 m od domu je zastávka Vínopalnická (bus č. 166) s přímým spojením (2 zastávky) na tram a Metro C - Ládví nebo 1 zastávka Bulovka nebo cca 5 min. chůze tram a bus Bulovka s přímým spojením do samotného centra a na Metro A,B,C. Prostor má nízké měsíční náklady - vytápění 2.000 Kč měsíčně, el. energie 1.700 Kč měsíčně, voda 150 Kč měsíčně / 1 osoba. Vratná kauce je ve výši 32.000 Kč.
Prostor je k dispozici ihned. Majitel by rád uvítal firmu s klidným a tichým provozem.
Protože není v tuto chvíli znám PENB, uvádíme dle zákona nejhorší možnou variantu a to "G", tj. mimořádně nehospodárnou.
 
                                        Olbrachtova 599/8, Mladá Boleslav
Máte zájem o tuto nemovistost?
Inzerát si prohlédlo 1 lidí
 
                                Soňa Kutnohorská
Chcete dostávat emailem podobné nabídky pronájmu kanceláří v Praze 8?