Habartická, Praha 9, Střížkov
Předej řadového dumu 8+1, 354m2, 3x balkon, terasa a zahrada 200m2. Habartická, Praha 9 - Střížkov.
Zajistíme vám americkou hypotéku bez doložení příjmů, možnost převodu do družstva nebo řešení splátek formou nájmu.
Nabídka řadového domu v zánovní novostavbě na prodej v Praze Střížkově, pouhých 5 minut od metra. Dům má 3 nadzemní a jedno podzemní patro. Nabízí 8+1 pokojů. Celková užitná plocha činí 354 m2, s možností využití podkroví.
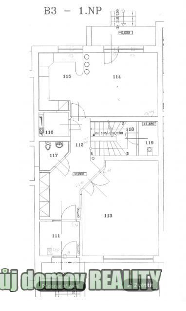
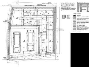
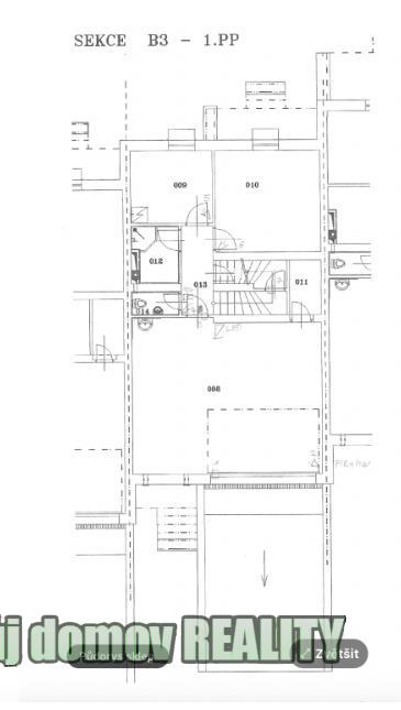
V domě naleznete 4 nadzemní podlaží: snížené přízemí, které má 2 neprůchozí místnosti s okny a oddělené WC. Dále je zde sprchový kout v technické místnosti (kotelna), kde je umístěn plynový kondenzační kotel a elektrický bojler. K dispozici je též prádelna, pokoj vhodný jako kancelář, kumbálek pod schody a garáž pro 2 automobily, kde je umístěno umyvadlo a technická místnost.
Na prvním podlaží se nachází 3 pokoje, vstupní hala, kuchyně s prostorným obývacím pokojem, s nádherným výhledem, vchod na terasu a do zahrady o rozloze 200 m2, kde si můžete užívat rodinné chvíle, grilování nebo postavit bazén s opalováním. Dále zde jsou 2 neprůchozí pokoje, koupelna, WC, komora a balkon.
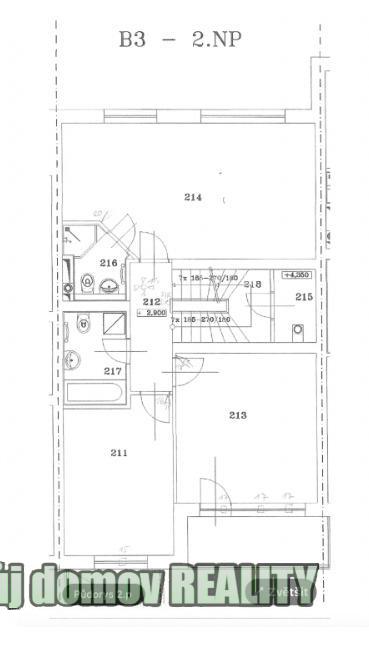
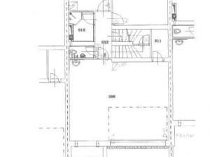
Na druhém podlaží najdete velký pokoj se sprchou a WC, další neprůchozí pokoj a další pokoj s balkonem.
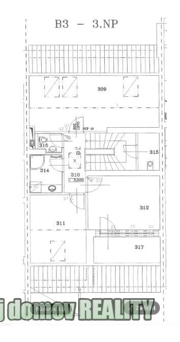
Ve třetím podlaží jsou 3 neprůchozí místnosti, koupelna, samostatné WC a střešní balkon.
Stavba: Cihlová
Stav objektu: Zánovní
Poloha domu: Řadový
Typ domu: Patrový
Podlaží:4 včetně 1 podzemního
Plocha zastavěná:99 m2
Užitná plocha:354 m2
Plocha podlahová:350 m2
Plocha pozemku:380 m2
Zahrada: 2OO m2
Sklep: ano
Parkování: 2 garážovaná místa
Garáž: ano
Datum nastěhování: Ihned
Topení: Ústřední plynové
Plyn: Plynovod
Odpad: Veřejná kanalizace
Energetická náročnost budovy:Třída G - Mimořádně nehospodárná č. 78/2013 Sb. podle vyhlášky
Prodejní cena činí 29 1 00 000 Kč.
Pro více informací a domluvení prohlídky kontaktujte našeho realitního makléře:
Realitní kancelář: Můj domov REALITY
Makléř: Lidiya Savynets
Komunikační aplikace: WhatsApp / Viber / Telegram: @LidiyaSyvynets
Dům má dřevěné parkety a je ideální pro rodinu, firmu a kanceláře, hodí se také jako školka. 
Pokud hledáte pohodlné a klidné bydlení v Praze, a kousek od metra, pak tato nemovitost je přesně pro vás. 
Neváhejte a kontaktujte nás. Těšíme se na vaši zprávu. Děkujeme.
 
                                        Prosecká 527/24, Praha 8
Máte zájem o tento dům?
Inzerát si prohlédlo 1 lidí
 
                                Lidiya Savynets
Chcete dostávat emailem podobné nabídky prodeje rodinných domů v Praze 9?