Pyšelská, Poříčí nad Sázavou
Prodej pozemku pro stavbu RD v Poříčí nad Sázavou. Máme pro vás exkluzivní příležitost – stavební pozemek v atraktivní a klidné lokalitě Poříčí nad Sázavou, která se právě mění v moderní čtvrť rodinných domů.
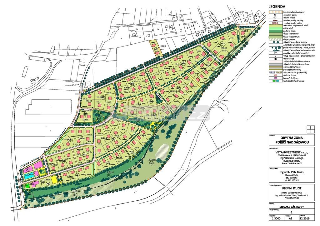
Pozemková parcela č. 193/56
•Výměra: 1.002 m²
•Cena: 2.505.000,- Kč
V ceně nejsou zahrnuty poplatky za připojení na inženýrské sítě.
V rámci rozvoje lokality je však plánována kompletní infrastruktura – elektřina, voda, plyn, kanalizace, komunikace i veřejná zeleň.
Celé území je dle územního plánu určeno k výstavbě rodinných domů – ideální volba pro ty, kteří hledají klidné a pohodové bydlení v zeleni, přitom s dobrou dostupností do Benešova či Prahy.
 
                                        Náměstí Republiky 28, Plzeň
Máte zájem o tento pozemek?
Inzerát si prohlédlo 1 lidí
 
                                Martina Dlouhá
Chcete dostávat emailem podobné nabídky prodeje pozemků pro bydlení v Poříčí nad Sázavou?