Prodej pozemku pro bydlení, Uherský Brod, Josefa Herčíka, 2813 m2 (ID: 2459806)

Josefa Herčíka, Uherský Brod

Cena na vyžádání /za nemovitost Získejte výhodnou HYPOTÉKU
Doporučené firmy v Uherském Brodu

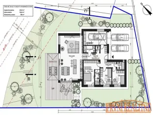
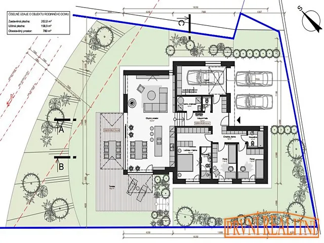
Informace k pozemku

Prodej stavebního pozemku v lokalitě Nad Zámkem
- pozemek má výměru 2813 m²
- šířka pozemku je 22 metrů
- možnost připojení na veškeré inženýrské sítě
- dle územního plánu je pozemek určen k výstavbě bydlení v rodinných domech a v nízkopodlažních bytových domech

Parametry pozemku

Cena
Cena na vyžádání Spočítat hypotéku
Aktualizováno
30. 10. 2025
Adresa
Josefa Herčíka, Uherský Brod
ID
SP 6019
Plocha pozemku
2813 m2

Kontaktovat makléře

Máte zájem o tento pozemek?

Tímto, v souladu s nařízením Evropského parlamentu a Rady (EU) 2016/679, v platném znění, prohlašuji, že mi je alespoň 16 let a uděluji tak svůj souhlas se zpracováním zadaných údajů (jméno, telefon, e-mail, ip adresa) společnosti B3 Technology, s.r.o., IČ: 07330600, se sídlem Novostavby 126/23, 435 11 Lom (správce dat), za účelem předání dotazu z tohoto formuláře Vámi vybranému inzerentovi a zpětného kontaktování mé osoby. Osobní údaje bude správce zpracovávat manuálně i automaticky přímo prostřednictvím svých zaměstnanců. Informace předané tímto formulářem budou uloženy v databázi správce maximálně po dobu 10 let. Odvolání souhlasu s uložením a zpracováním poskytnutých dat lze e-mailem na info@bydlisnami.cz. V případě podezření na neoprávněné použití Vámi poskytnutých údajů máte právo předat podnět k šetření Úřadu pro ochranu osobních údajů. Více informací
Chystáte se prodat nemovitost?
Pomůžeme Vám!

Inzerát si prohlédlo 1 lidí

Prodejce

Horenská Ivana

Horenská Ivana

Hlídací pes

Chcete dostávat emailem podobné nabídky prodeje pozemků pro bydlení v Uherském Brodu?

Podobné nemovitosti