Prodej pozemku pro bydlení, Petrovice, 602 m2 (ID: 2460331)

Petrovice

1 970 346 Kč /za nemovitost HYPOTÉKA od 8 806 Kč /za měsíc
Doporučené firmy v Petrovicích

Informace k pozemku

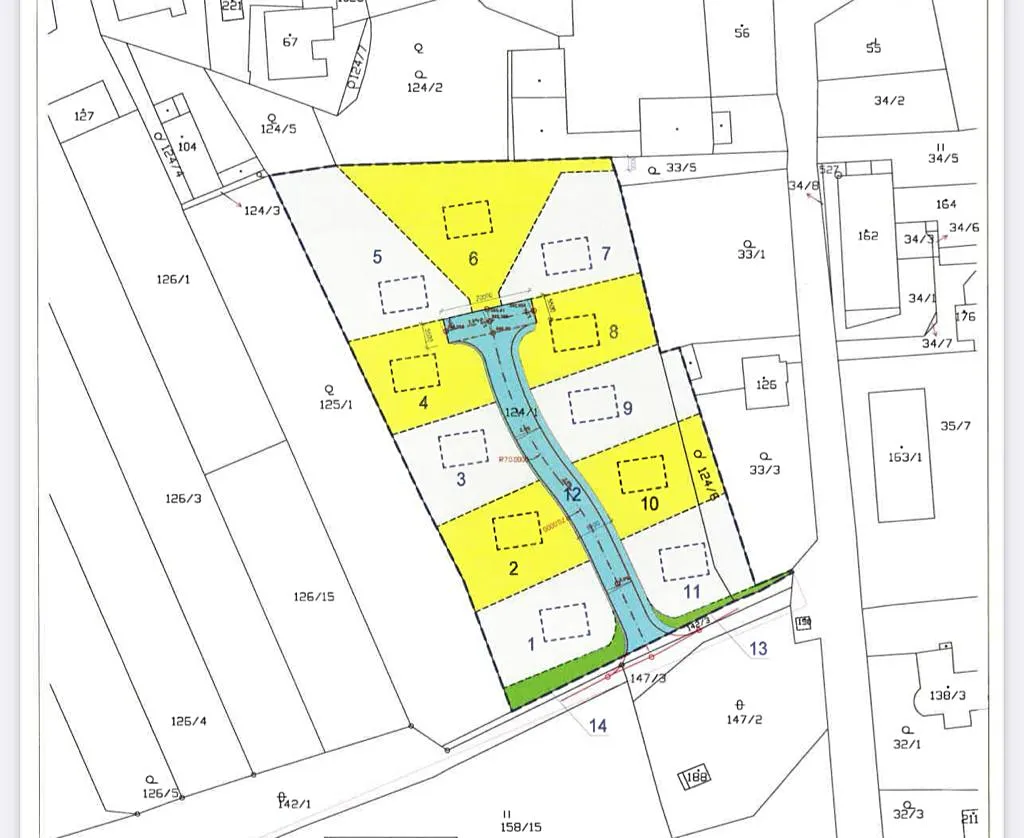
Nabízíme prodej jedenácti stavebních pozemků, ve fázi před zasíťováním a definováním stavby rodinného domu. To znamená, že si samy vyberete, jak bude Váš dům vypadat.

Petrovice jsou klidným vesnickým místem k celoročnímu bydlení i k rekreaci.
Pozemky jsou schované od hlavní silnice, v klidné lokalitě, nacházející se pod loukou , která navazuje na zahrady a les. Nachází se v nově vzniklé neprůjezdné ulici, viz. fotodokumentace.

Pozemky jsou již prokazatelně, od dotčených orgánů, schváleny k výstavbě rodinného domu, vesnického typu, s přízemím a obytným podkrovím (2. patrové).
Dle územního plánu není regulace procentuálního zastavění pozemku, je tedy pouze na Vás, jak velkou stavbu na svůj pozemek budete chtít umístit.

Přípojka el. energie bude připravena na okraji pozemků.
Kanalizace a obecní voda budou také připraveny na kraji pozemků. Dále je možnost čerpání vody z vlastní studny. Vše již v kupní ceně pozemků.

Dne 16. června 2025 bylo vydáno pravomocné stavební povolení na vybudování inženýrských sítí. Jako investor zahájíme výstavbu do 30 dnů od vydání povolení, tedy přibližně v polovině července. Dokončení realizace inženýrských sítí (elektro, voda, kanalizace) plánujeme na konec října 2025.


CENA POZEMKŮ:
1. 656 m2, Cena = 2 147 088 ,- K DISPOZICI
2. 554 m2, Cena = 1 813 242 ,- PRODÁNO
3. 516 m2, Cena = 1 688 868 ,- PRODÁNO
4. 516 m2, Cena = 1 688 868 ,- PRODÁNO
5. 882 m2, Cena = 2 886 786 ,- K DISPOZICI
6. 932 m2, Cena = 3 050 436 ,- PRODÁNO
7. 583 m2, Cena = 1 908 159 ,- PRODÁNO
8. 508 m2, Cena = 1 662 684 ,- PRODÁNO
9. 602 m2, Cena = 1 970 346 ,- K DISPOZICI
10.552 m2, Cena = 1 806 696 ,- K DISPOZICI
11.587 m2, Cena = 1 921 251 ,- K DISPOZICI


Dopravní dostupnost od pozemků je přívětivá. Obyvatelé Petrovic dojíždí za prací i školou linkovým autobusem PID, který jezdí každou hodinu ze středu obce. Cestou autem do města Rakovník je časová náročnost 8 minut, 40 minut Kladno, Plzeň a Praha 45 min, řeka Berounka 17 minut.

Zájemcům na vyžádání prokážeme získaná povolení od dotčených orgánů.

Nabízíme zajištění financování nákupu pozemků, za aktuálně nejvýhodnějších podmínek.

Můžeme nabídnout služby architekta s projektantem pro vytvoření projektu Vašeho domova, až do získání stavebního povolení.
Nebo také možnost na vybraném pozemku provést stavbu na klíč, dle Vašich požadavků.

Budeme se těšit na osobní prohlídku.

Parametry pozemku

Cena
1 970 346 Kč /za nemovitost Spočítat hypotéku
Aktualizováno
30. 10. 2025
Adresa
Petrovice
Plocha pozemku
602 m2
Odpad
Veřejná kanalizace
Komunikace
Zpevněná, Štěrková, Šotolina
Doprava
Dálnice, Silnice, MHD, Autobus
Voda
Místní zdroj vody, Studna

Kontaktovat makléře

Máte zájem o tento pozemek?

Tímto, v souladu s nařízením Evropského parlamentu a Rady (EU) 2016/679, v platném znění, prohlašuji, že mi je alespoň 16 let a uděluji tak svůj souhlas se zpracováním zadaných údajů (jméno, telefon, e-mail, ip adresa) společnosti B3 Technology, s.r.o., IČ: 07330600, se sídlem Novostavby 126/23, 435 11 Lom (správce dat), za účelem předání dotazu z tohoto formuláře Vámi vybranému inzerentovi a zpětného kontaktování mé osoby. Osobní údaje bude správce zpracovávat manuálně i automaticky přímo prostřednictvím svých zaměstnanců. Informace předané tímto formulářem budou uloženy v databázi správce maximálně po dobu 10 let. Odvolání souhlasu s uložením a zpracováním poskytnutých dat lze e-mailem na info@bydlisnami.cz. V případě podezření na neoprávněné použití Vámi poskytnutých údajů máte právo předat podnět k šetření Úřadu pro ochranu osobních údajů. Více informací
Chystáte se prodat nemovitost?
Pomůžeme Vám!

Inzerát si prohlédlo 1 lidí

Prodejce

Andrea Ulrichová

Andrea Ulrichová

Hlídací pes

Chcete dostávat emailem podobné nabídky prodeje pozemků pro bydlení v Petrovicích (okr. Rakovník)?

Podobné nemovitosti