Pronájem bytu 2+1, Kladno - Kročehlavy, Havanská, 51 m2

Havanská, Kladno, Kročehlavy

16 000 Kč /za měsíc Získejte výhodnou HYPOTÉKU

(kauce 16.000.-, služby 4.000.-/ měs. provize 16.000 + DPH)

Doporučené firmy v Kladně

Informace k bytu

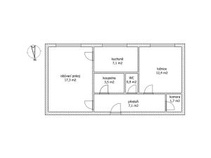
Nabízíme k dlouhodobému pronájmu byt 2+1 v 5. patře panelového domu v ulici Havanská v Kladně. Jednotka prošla kompletní a zdařilou rekonstrukcí, má dřevěné interiérové dveře a zárubně, plovoucí podlahy a v celém bytě žaluzie.

Obytné místnosti jsou světlé, orientované na jih a poskytují hezký výhled do okolní zeleně; přímo za domem je dětské hřiště. Byt se pronajímá kompletně vybavený. V ložnici se nachází manželská postel a velká vestavěná skříň, v předsíni další vestavěná skříň. Obývací pokoj je zařízen sedací soupravou, konferenčním stolkem, PC stolem a úložnými skříňkami. Kuchyně je vybavena lednicí, vestavnou troubou, indukční varnou deskou, mikrovlnnou troubou, digestoří a kuchyňskou linkou na míru. Koupelna má vanu a pračku. WC je samostatné. Vstup do bytu zajišťují bezpečnostní dveře.

Dům je po celkové revitalizaci – má nová plastová okna, modernizované výtahy, zateplenou fasádu a střechu a vyměněné stoupací vedení. Lokalita patří k vyhledávané části Kladna směrem na Prahu a nabízí výbornou dopravní dostupnost do metropole. V bezprostředním okolí je kompletní občanská vybavenost včetně školy, školky a obchodů, zároveň je blízko do lesa a k trasám pro volnočasové aktivity. Byt je připraven k okamžitému nastěhování; prohlídky jsou možné po dohodě.

Parametry bytu

Cena
16 000 Kč /za měsíc
Poznámka k ceně
kauce 16.000.-, služby 4.000.-/ měs. provize 16.000 + DPH
Aktualizováno
2. 11. 2025
Adresa
Havanská, Kladno, Kročehlavy
ID
17824
Stavba
Panelová
Stav objektu
Velmi dobrý
Patro
6. z 7
Vybaveno
Ano
Lokalita objektu
Sídliště
Vlastnictví
Osobní
Užitná plocha
51 m2
Zastavěná plocha
1235 m2
Plyn
Plynovod
Odpad
Veřejná kanalizace
Doprava
Vlak, Dálnice, Silnice, MHD, Autobus
Voda
Vodovod
Sklep
Výtah

Kontaktovat makléře

Realitní kancelář

Logo QARA, s.r.o.

QARA, s.r.o.

Šafaříkova 201/17, Praha

Chystáte se prodat nemovitost?
Pomůžeme Vám!

Máte zájem o tento byt?

Tímto, v souladu s nařízením Evropského parlamentu a Rady (EU) 2016/679, v platném znění, prohlašuji, že mi je alespoň 16 let a uděluji tak svůj souhlas se zpracováním zadaných údajů (jméno, telefon, e-mail, ip adresa) společnosti B3 Technology, s.r.o., IČ: 07330600, se sídlem Novostavby 126/23, 435 11 Lom (správce dat), za účelem předání dotazu z tohoto formuláře Vámi vybranému inzerentovi a zpětného kontaktování mé osoby. Osobní údaje bude správce zpracovávat manuálně i automaticky přímo prostřednictvím svých zaměstnanců. Informace předané tímto formulářem budou uloženy v databázi správce maximálně po dobu 10 let. Odvolání souhlasu s uložením a zpracováním poskytnutých dat lze e-mailem na info@bydlisnami.cz. V případě podezření na neoprávněné použití Vámi poskytnutých údajů máte právo předat podnět k šetření Úřadu pro ochranu osobních údajů. Více informací
Chystáte se prodat nemovitost?
Pomůžeme Vám!

Inzerát si prohlédlo 1 lidí

Prodejce

Ing. Marek Kotík

Ing. Marek Kotík

Hlídací pes

Chcete dostávat emailem podobné nabídky pronájmu bytů 2+1 v Kladně?

Podobné nemovitosti