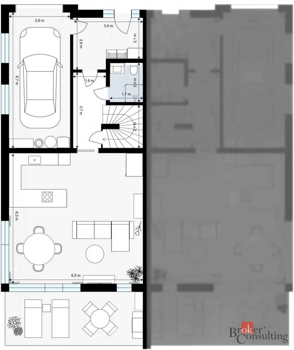
Prodej rodinného domu, Milovice - Mladá, Tyršova, 160 m2 (ID: 2462796)

Tyršova, Milovice, Mladá

11 999 000 Kč /za nemovitost HYPOTÉKA od 53 628 Kč /za měsíc

(provizi hradí prodávající)

Doporučené firmy v Milovicích

Pojištění a finance

Informace k domu

Prodej novostavby rodinného domu/bytu 5+kk, 160m² plochy s garáží, z roku 2026, 30 minut východně od Prahy.


- KOUKNĚTE PROSÍM ZDE V INZERCI NA VIDEO-PROHLÍDKU.


Ve Středočeském kraji, v klidné části města Milovic, východně od Prahy, stojí moderní novostavba, která nabízí spojení výhod rodinného domu se zahradou a bytu s terasou.


Parametry a vybavení:

• Novostavba domu z r. 2026
• 30 minut od Prahy - stanice metra Černý Most
• Dispozice 5+kk
• Pozemek 331 m²
• Interiér plocha 160 m²
• Terasa z obývacího pokoje situována na jih
• Příprava na krbová kamna na dřevo v obývacím pokoji
• Tepelné čerpadlo
• Podlahy interiéru - keramická dlažba
• Okna - trojskla
• Podlahové vytápění v 1.NP včetně garáže a v 2.NP
• Prostorná garáž s elektrickým pojezdem
• Schodiště z masívu s nerezovým zábradlím
• Venkovní elektrické žaluzie oken v 1.NP i v 2.NP
• Obecní přípojka vody a kanalizace
• Zásuvka pro RYCHLÉ nabíjení EV v garáži
• PENB = B

V dosahu Mladé Boleslavi a Poděbrad nabízím samostatnou polovinu domu, každá s podlahovou plochou 160m² včetně garáže, se vstupem přímo do domu, vždy s pozemkem o celkové rozloze 331m².
Stylová dřevostavba s prostornými místnostmi, kvalitním vybavením, nešetřilo se na materiálech, například u všech dveří domu, na značkové sanitě, u oken s trojskly použité hliníkové parapety a venkovní žaluzie, vše s důrazem na detail je připraveno k nastěhování. Kuchyni si vyberete podle vlastního vkusu, zahradu podle návrhu architekta. Díky přípravě na fotovoltaiku a kamerový systém získáte komfortní a úsporné bydlení. Sezónní věci snadno uložíte například v zateplené půdě domu.

Nový domov přebíráte po kolaudaci, již od 3Q2026. Můžete si jej díky tomu zařídit podle svých představ – moderně, útulně, ale i s důrazem na rodinné tradice.
Vaší jistotou je, že vybraná stavební firma studovala tento typ postupu přímo v Kanadě, má za sebou už více než šedesát úspěšných projektů převážně v místní lokalitě a středních Čechách.

Milovice nabízejí plnou občanskou vybavenost a okolí vašeho domova je rájem aktivit, které zpříjemní volný čas. Rezervace divokých koní a pratůr je v pěší vzdálenosti. Milovické tůně lákají na romantické procházky a nedaleký zábavní park Mirakulum patří k největším v zemi.

Nový domov, který spojuje prostor, pohodu a jistotu budoucí hodnoty.


Stav:

• Kolaudace: 03Q/2026
• K nastěhování: 03Q/2026


Příprava na domě:

• Fotovoltaika
• Kamerový systém
• Kuchyně
• Krbová kamna
• Přípojka plynu na hranici pozemku
• LAN systém v každé místnosti a možnost propojení s vysokorychlostním internetem a chytrou domácností
• příprava elektřiny pro pojezdová vrata v předu
• příprava elektřiny i v zadní části pozemku pro zahradní domek

Uvedené výměry jsou orientační. Veškeré zveřejněné údaje obsažené v tomto inzerátu mají pouze informativní charakter a nejsou nabídkou ve smyslu § 1731 nebo § 1732 občanského zákoníku, ani se nejedná o veřejný příslib dle § 1733 občanského zákoníku.

Domluvte si prohlídku a přesvědčte se sami.

Parametry domu

Cena
11 999 000 Kč /za nemovitost Spočítat hypotéku
Poznámka k ceně
provizi hradí prodávající
Aktualizováno
3. 5. 2026
Adresa
Tyršova, Milovice, Mladá
ID
75639
Stavba
Dřevěná
Stav objektu
Novostavba
Vybaveno
Částečně
Typ objektu
Patrový
Druh objektu
Řadový
Vlastnictví
Osobní
Užitná plocha
160 m2
Plocha pozemku
331 m2
Třída energetické náročnosti
B - Velmi úsporná
Elektřina
230V, 400V
Plyn
Individuální
Odpad
Veřejná kanalizace
Topení
Ústřední elektrické
Komunikace
Betonová
Telekomunikace
Internet
Doprava
Vlak, Dálnice, Silnice, MHD, Autobus
Voda
Vodovod
Garáž
Terasa
Parkování

Kontaktovat makléře

Realitní kancelář

Logo Broker Consulting, a.s.

Broker Consulting, a.s.

Jiráskovo náměstí 2684/2, Plzeň

Chystáte se prodat nemovitost?
Pomůžeme Vám!

Máte zájem o tento dům?

Tímto, v souladu s nařízením Evropského parlamentu a Rady (EU) 2016/679, v platném znění, prohlašuji, že mi je alespoň 16 let a uděluji tak svůj souhlas se zpracováním zadaných údajů (jméno, telefon, e-mail, ip adresa) společnosti B3 Technology, s.r.o., IČ: 07330600, se sídlem Novostavby 126/23, 435 11 Lom (správce dat), za účelem předání dotazu z tohoto formuláře Vámi vybranému inzerentovi a zpětného kontaktování mé osoby. Osobní údaje bude správce zpracovávat manuálně i automaticky přímo prostřednictvím svých zaměstnanců. Informace předané tímto formulářem budou uloženy v databázi správce maximálně po dobu 10 let. Odvolání souhlasu s uložením a zpracováním poskytnutých dat lze e-mailem na info@bydlisnami.cz. V případě podezření na neoprávněné použití Vámi poskytnutých údajů máte právo předat podnět k šetření Úřadu pro ochranu osobních údajů. Více informací
Chystáte se prodat nemovitost?
Pomůžeme Vám!
Theleadway banner

Inzerát si prohlédlo 93 lidí

Hlídací pes

Chcete dostávat emailem podobné nabídky prodeje rodinných domů v Milovicích (okr. Nymburk)?

Podobné nemovitosti