Pronájem bytu 6+kk a větší, Praha - Staré Město, Dušní, 218 m2 (ID: 2463738)

Dušní, Praha, Staré Město

125 000 Kč /za měsíc Získejte výhodnou HYPOTÉKU
Doporučené firmy v Praze 1

Stěhovací služby

Výkup a prodej starého nábytku

Informace k bytu

Praha 1 - Staré Město, Dušní ul. – nachází se v klidné ulici v nejprestižnější lokalitě v Praze, v těsné blízkosti Staroměstského náměstí a nábřeží Vltavy, jen pár kroků od Pařížské ulice.

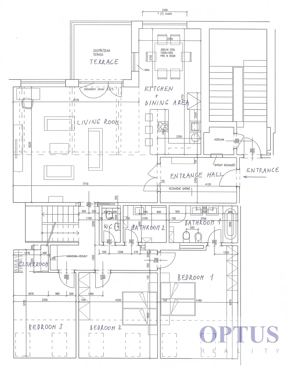
Unikátní nový mezonetový byt 6 + kuchyňský kout (celkem cca 218 m2) + terasa 8 m2 situovaná do dvora; byt prošel kompletní nadstandardní rekonstrukcí a nachází v 5. patře zrenovovaného secesního domu s výtahem; žádný z bytů v domě není určen pro krátkodobé ubytování. V suterénu domu je k dispozici luxusní privátní wellness centrum včetně vnitřního bazénu (10 x 3.8 m), sauny a prostoru na jógu/fitness. Wellness je určeno výhradně pro rezidenty tohoto domu, vstup je bezplatný na základě samostatné smlouvy o užívání uzavřené s majitelem domu a nájemce si může každý den rezervovat časový úsek pro soukromé užívání celého wellness.

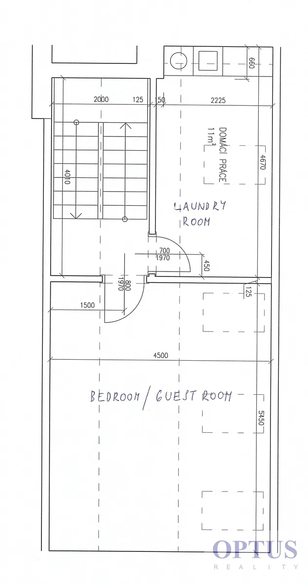
Byt tvoří prostorný obývací pokoj o velikosti cca 67 m2 propojený s kuchyňským a jídelním koutem, s lihovým krbem a se vstupem na terasu situovanou do rozlehlého dvorního traktu, dále jsou v bytě 4 ložnice (o velikosti cca 2x 24 m2, 20 m2 a 15 m2) - hlavní ložnice má vlastní koupelnu, pracovna 11 m2 (s pračkou a sušičkou), 2 koupelny, samostatná toaleta, prádelna, komora a vstupní chodba se skříní.

Další vybavení bytu: plně vybavená moderní kuchyně, pračka, sušička, skříně, příprava pro vysokorychlostní internet (optický kabel v domě) – v bytě je ethernet, klimatizace, plovoucí podlahy a dlažba; byt je vytápěn podlahovým vytápěním - tepelným čerpadlem.

V ceně nájmu je rovněž zahrnut sklep v suterénu domu, k dispozici je rovněž prostor pro uložení kol ve dvorním traktu.

Byt je nabízen jako částečně zařízený, je však možný i nezařízený nebo jej vybavit dalším nábytkem při navýšení ceny.
Minimální doba pronájmu jsou 2 roky.

Cena 125.000 Kč/měsíc + poplatky za služby včetně energií a vysokorychlostního internetu fixně 10.000 Kč/měsíc + provize RK ve výši 1 měsíčního nájemného.
Požadovaná peněžní jistota (kauce) činí 2 měsíční nájmy.

Realitní kancelář nemá k dispozici energetický štítek, a proto uvádíme třídu energetické náročnosti budovy G.

Parametry bytu

Cena
125 000 Kč /za měsíc
Aktualizováno
3. 11. 2025
Adresa
Dušní, Praha, Staré Město
ID
B15038
Stavba
Smíšená
Stav objektu
Po rekonstrukci
Patro
6. z 6
Vybaveno
Částečně
Lokalita objektu
Centrum obce
Vlastnictví
Osobní
Užitná plocha
218 m2
Podlahová plocha
226 m2
Třída energetické náročnosti
G - Mimořádně nehospodárná
Plyn
Plynovod
Odpad
Veřejná kanalizace
Komunikace
Dlážděná, Asfaltová
Doprava
Silnice, MHD
Voda
Vodovod
Topné těleso
Podlahové vytápění
Zdroj topení
Tepelné čerpadlo
Zdroj teplé vody
Tepelné čerpadlo
Sklep
Terasa
Výtah
Bazén

Kontaktovat makléře

Realitní kancelář

OPTUS Reality

Za mlýnem 1596/3, Praha, Braník

Chystáte se prodat nemovitost?
Pomůžeme Vám!

Máte zájem o tento byt?

Tímto, v souladu s nařízením Evropského parlamentu a Rady (EU) 2016/679, v platném znění, prohlašuji, že mi je alespoň 16 let a uděluji tak svůj souhlas se zpracováním zadaných údajů (jméno, telefon, e-mail, ip adresa) společnosti B3 Technology, s.r.o., IČ: 07330600, se sídlem Novostavby 126/23, 435 11 Lom (správce dat), za účelem předání dotazu z tohoto formuláře Vámi vybranému inzerentovi a zpětného kontaktování mé osoby. Osobní údaje bude správce zpracovávat manuálně i automaticky přímo prostřednictvím svých zaměstnanců. Informace předané tímto formulářem budou uloženy v databázi správce maximálně po dobu 10 let. Odvolání souhlasu s uložením a zpracováním poskytnutých dat lze e-mailem na info@bydlisnami.cz. V případě podezření na neoprávněné použití Vámi poskytnutých údajů máte právo předat podnět k šetření Úřadu pro ochranu osobních údajů. Více informací
Chystáte se prodat nemovitost?
Pomůžeme Vám!

Inzerát si prohlédlo 12 lidí

Prodejce

Ing. Andrea Kublová

Ing. Andrea Kublová

Hlídací pes

Chcete dostávat emailem podobné nabídky pronájmu bytů 6+kk a větší v Praze 1?

Podobné nemovitosti